枇杷博物馆位于塘栖古镇景区内,塘栖镇地处京杭大运河水路要津,是杭州市北部的水上门户。“运河开筑,随塘而栖。枇杷野果,渐成佳品。”塘栖枇杷始种与隋朝,历史悠久,塘栖枇杷是塘栖镇最重要的产业之一,如今枇杷产业已经成为了塘栖镇当地农业的名片。本项目受塘栖镇政府及合作机构的委托,在塘栖文化古镇中为枇杷产业打造一个展览馆,使之成为塘栖古镇文化旅游的重要节点之一。该博览馆是对古镇内一处既有建筑的改造,总建筑面积1153.2平方米,西面毗邻何思敬纪念馆,南面是主街道,北面是内庭院。原建筑的二层是玻璃顶有天光进入,一层则较为封闭昏暗,一二层之间相互独立仅由一个消防楼梯连接。
由于建筑处于塘栖大运河古镇文化带中,因此对建筑外部风貌的处理在尊重原有古镇立面的统一性中进行了部分的有机更新:设计上保留了立面上半部分的传统风貌,二层对外的花格门窗都被完整保留;而一层部分则使用了更现代的“类斗拱式”的当代转译木构搭接成入口雨廊,在其背部用打孔铝板绘制了枇杷果实的剪影。上一半属于过去,下一半属于未来,它们共同建立了一种对传统古镇风貌回应的态度。而在这个古镇立面表皮的内部,则呈现出了一个与外部完全差异的另外一番天地,我们希望博物馆内部是一个沉浸式的、异于外界的乌托邦。因此,在这个内部空间中我们打破一二层相互隔绝的状态,置入了一个贯穿了一二层空间的装置艺术体,并将它命名为——“重环”。
△原建筑
△建造过程:新的钢结构和原有框架结构
△左:一层空间原始的昏暗状况;右:二层玻璃顶中庭
重环”之“环”:环形中庭“重环”是一个纯白色的多层的套环系统,它由一系列不同高度、不同大小的椭圆层层相套而成。“重环”创造了一个内部的环形中庭,由于“重环”对空间的塑造,使得体验者可以循着空间的轨迹渐渐发觉,建立了一种环形游历的过程。一如中国古老的传统画卷,观察的展开是非常缓慢且流畅的,人们会在游动的过程中带着对未知的疑问展开和探索空间。环形中庭可以让游览者在密集的展览内容过后长舒一口气,从长时间密集的阅读中解脱出来,转而投入对空间、自然、光线的感知中。环形平面结构的展览空间是一种特征强烈的空间原型,我们讨论过赖特的古根汉姆美术馆及巴埃萨的格拉纳达博物馆等环形中庭处理方式的对展览流线梳理的有效性,环形展厅可以通过一个环形上升的中庭,将层与层之间以一个平缓的道路连接起来,而展览空间则可以沿着周界布置,参观流线清晰且明确。
在枇杷博物馆中的挑战是:我们试图将一种原型空间运用到对既有空间的改造中。由于原有建筑结构的存在,环形中庭的建立并非从零开始,它是被既有结构所限制的,它需要建立在一个被结构的秩序和尺度所定义的环境中。反而这种限制带来了新结构与老结构更有魅力的一种对话关系:原本顺畅的环形上升路径必须要面对老的结构梁和柱有所反馈,这迫使路径与环形中庭的贴合关系需要作出改变,正因如此也使我们可以更多的挖掘这种原型空间背后潜藏的可能性,使我们更开放的去解读它。
多样的理解方式大致可以分为三个层面:第一层是“顺势”。“顺势”是环形中庭最基础的读解关系,它是顺延着弧形的壁面缓缓前行的过程。“重环”之所以称之为“重”是一种错位关系的体现,“重”并非在原地无意义的重复,而是一种“复影”系统,“重”的错位与偏转带来了一系列的空间缝隙,这些缝隙打破了两层空间的界限,建立起了多个维度的联系,让气息可以流通。“重”是一种人为创造的“美妙的误差”,它赋予了形态背后更多的可能性,也是赋予椭圆这种简单的几何形体以生命的过程。由于“重环”自身的错位系统,使得参观者的行进路线与环形并非完全贴合,有些环形会离开我们的路径渐渐远去,而有一些则从远处向我们慢慢靠近,这使得简单的环绕过程变得更具有诗意。参观者亦可以透过这些缝隙,与即将到来或是已然走过的空间对望,瞥见未来与过去的片段。一些片段的消失则预示了其从另外一个维度的再现,这种“复现”的片段与之前的消失的部分在空间的维度上又建立起了对位关系。因而在参观的过程中,“重环”复合了一系列推进与远离的过程,又通过消失与再现建立起了一种记忆上的回溯, 便形成了一种独特的,熟悉而陌生的空间感受。
第二层是“穿越”。“穿越”是路径与“重环”间垂直穿越的关系。“重环”界面的多重性产生了一种层叠状态,“环”不再是一层单一的表皮,而是由缝隙与空间构成的,因此“穿越”的关系也便有了意义。在不断地穿越多个墙体的过程中,参观者会得到一种完全陌生的空间感知,墙体的厚度,墙体间的缝隙,看不见尽头的空间,都在这个穿越过程中开始显现。在参观的路径中,我们顺着环形的墙体上升到1.2米的高度后,开始水平向的行走在半空的廊道,并开始穿越这些墙体。与参观者一同穿越的还有原建筑结构,当行走的高度被抬升以后,人和梁的高度已经接近通过的极限,此时参观者已经非常的接近梁的高度,参观者可以清晰的在这一高度看到梁穿越弧形墙体的过程,这一瞬间都被定格成了画框。在看似“埃森曼式”的结构中,老结构与新构造被漆上共同的白色,消灭了他们在材质上的差异,进而单纯地保持其在几何形态上的碰撞和辨别力,建立起一种“白描”式的纯粹对话,让原有结构的力量感和新结构的力量感被同时强化了出来。
第三层是“顿挫”。创造“顿挫”的是“关节”,即对界面的开孔,这超越了一般的原型的范畴,是追求完整性的传统环形中庭中不常见到的。在“重环”中,“关节”一方面通过开孔关系的调节使新的系统可以与原始框架适配;另一方面,“关节”也是空间的叙事结构主动设计的结果。它们既是物理结构的画框,同时也是空间结构的画框。“顿挫”保留了空间流线中短暂停留的可能性,这些孔隙是让参观者可以在“重环”的孔隙中穿越——消失——又从另外一个地方重现、回望。这种体验的复杂性让我们看到:“重环”不像纯粹的环形中庭可以一览无余,相反地,它是一种片段式的叙事结构。当参观者身处建筑内部的时候,没有任何一个视点可以让人看清整个装置的全貌,所以其营造的是一系列经验之间的关系,是一种片段性的行进过程的集合,而不是对整体的感知。因此,“重环”种最重要的是身体体验的问题,不断出现的陌生感增加了人的期待,创造了空间的可游历性,让参观者可以不断品赏空间中的意外之处,而到达特定的视点之后,从洞口回望,层叠的环形在视野种同时展开,来时的路径也穿插其中,参观者不由产生一种远眺“群山”的感触。
因此这种观看方式更接近于园林中对空间的理解,通过窗体进行框景、借景。在园林中,假山是一种实体的庭院,而“重环”也可以说是一种“假山化”的中庭,在并不空旷的空间内,以上升到顶点的体量感占据了成了实体,同时将光线最大化的收缩其内侧,在而错综复杂的内部空间中营造出一种“抽象的自然”。更诗意的在于所有的叙事结构都在结束处达到高潮,当参观者经历了完整的空间感知后,真实的自然和绿意与明亮的光线都随着弧形的路径缓缓地在眼前扑展开来,通透的玻璃界面使参观者置身于超时空的自然切片中,让窗外何思敬纪念馆的一角也被带入整个参观的一部分,两个展馆如此隔空相望,一瞬间时间、空间、真实、抽象都在此碰撞开来。
项目图纸
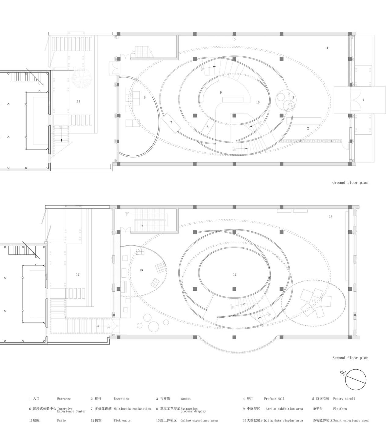
△平面图
△剖面图
△剖面图
△嵌入建筑内部环形中庭——“重环”_
△钢结构
△建筑内部展开结构关系
项目信息
建筑设计: 田之间建筑
面积 : 1153 m²
项目年份 : 2021
摄影师 :Zhou Fang, 陈颢
厂家 : Aluminum Canton Building Materials, Dongpeng ceramic tile, Zhengfeng Stone Co., Ltd
主创建筑师 : 方润武、王明皓
设计团队 : 方润武、王明皓、樊江南、郗慧敏、麻智超、徐大伟
委托方 : 杭州市余杭区塘栖镇人民政府
施工方 : 浙江东欣建设集团有限公司, 龙邦建设股份有限公司
合作方 : 天尚设计集团有限公司, 杭州博乐工业设计股份有限公司
地点 : 中国,杭州

BIM建筑网




































