政大学公企中心以提供优质学习环境及创新内容之课程著称,并已成为公务人员、企业主管及各界社会人士重要的在职进修管道。改建后的公企中心不只是实质空间的扩大,更针对在地独特的城市文化及都市魅力,融合出「小区共享」的国际聚落。
透过空间特性的分析,各种单元的配置形式及使用机能可以被分类及定位,创造出效率且趣味的空间质量。建筑量体主要分为两区块,分别是具有演讲厅、会议室、教室、研讨室的会展区及具有100个住宿单元的住宿区。两区块间透过一个通透的玻璃量体链接室内公共区域动线、流光中庭及楼层;清亮、多层次的挑空将外部商圈活络氛围延揽入室。
使用者经过明亮的大厅与公共走道,到达30公尺高的流光中庭挑空区,再藉由流光中庭连结会议室、教室等主要空间。挑空区悬挂的玻璃盒研讨室增加了空间的戏剧性,也加深使用者经验及空间张力。阳光自天窗漫入,室内光线随日照变化明暗,夜幕则与户外灯影辉映,创造戏剧性效果。
植栽绿化由地面层延伸至各层露台及屋顶,创造出城市的生态跳岛及优质的户外生活,提供师生休憩、学术研讨、及学员交流等功能。地面层保留既有老树并新植大量原生乔木及复层植栽,创造出天然的绿色围篱及充满绿荫的景观。西南角则留设了超过1000㎡的大型户外开放广场,营造出明确的入口意象,更扮演了邻里公园的角色,提供休憩、举办活动等功能。
项目图纸
△改造前后对比图
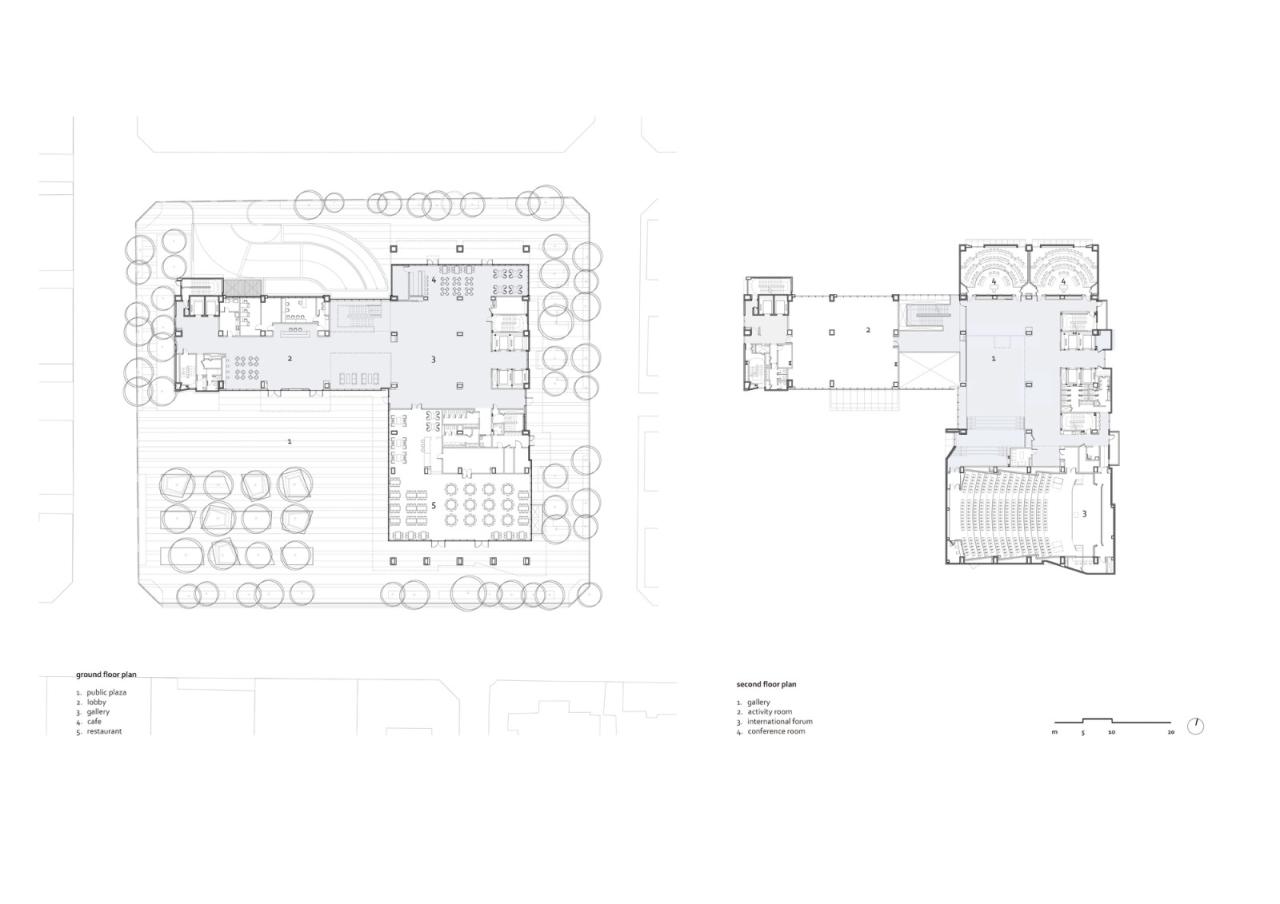
△一层、二层平面图
△五层、十层平面图
△细部大样图
△细部大样图
△分析图
△分析图
△剖透视
项目信息
建筑设计:JJP Architects & Planners
面积 :26949m²
项目年份 :2021
摄影师 :铉琉工作室
主持建筑师 :苏重威
设计团队 :潘冀、王文錤、马法耶、叶胜钿、翁源彬、郑泑如、苏楠泽、黄诗芳、杨家琳、沈可航、唐伟哲、魏名妤
地点 :中国,台北

BIM建筑网





































