漂浮总部位于成都麓湖生态城的北部湖岸半岛,由十一座独栋办公楼宇和它们围合出的三个院子构成。在这个项目中,我们希望用空间的方式向人们发出邀请,让更多的自然与公共空间为高密度办公建筑及它所承载的生活方式带来新的可能。我们认为,城市街区最生动的地方在于公共空间里人与人的相遇或交流——这种真实而偶然的际遇,正是当代城市生活最重要的迷人特征。
在空间操作上,方案主要从水平和垂直两个方向进行系统性规划设计。在水平方向上,我们采用围合状的院落式布局,为使用者创造出具有归属感的内向型空间。三个院子由北向南依次展开并相互贯通,立面采用统一的“格构系统”,建立起建筑群在城市中的结构基调和风貌。我们进一步根据每个建筑立面所面向的具体城市空间属性,在“格构系统”内定义不同的立面单元类型。
北侧邻接城市的 “立体院子”采用更为工业化的铝幕墙和混凝土砌块作为城市街道空间界面的主要材料,并设置丰富的垂直交通与下沉庭院空间,将城市的活力与多样性引入,完成从城市公共街区到相对私密的办公空间的过渡。
中部的 “树院子”是建筑群落中面积最大的开放绿色空间,立面主要采用木质板材,结合幕墙垂直绿化与更为自然的空间氛围相呼应。
场地南侧是依循地势向下叠落的“水院子”,属性更为静谧,因此我们选择了对光线更为敏感、灵透的玻璃砖回应水的意象。架空层底部是大面积的开放水域,建筑漂浮于不同标高的水面之上,微风带起涟漪的同时,也有助于调节建筑空间的微气候。
在垂直方向上,整个建筑群落在地面层采取大面积架空及下沉的策略,十一栋总部办公楼宇有如漂浮于地面之上。架空的操作不仅消解了围合体量的封闭感,也模糊了建筑的边界,在吸纳城市脉络的同时,创造出了一系列对城市与使用者充满欢迎姿态的公共空间。同时,我们在传统定义中相对消极的山墙之间建立了一套 “绿色生长空间系统”,以化解疏散楼梯往往被当作剩余空间处理的问题。
设计思考的起点是最大化各层可用面积,在相邻建筑山墙面之间设置一部共用的室外疏散楼梯,在满足消防疏散功能的同时,结合室外平台和垂直绿化建立起一套立体的公共空间系统。
“生长空间”贯串起地下及地面层的开放绿化空间,沿着建筑山墙面,向上攀爬至11座建筑的屋顶。人们将会在这里相遇——人与人,人与城市,人与自然的关系由此被延伸。
项目图纸
△模型图
△一层平面图
△二层平面图
△三层平面图
△屋顶平面图
△立面图
△剖面图
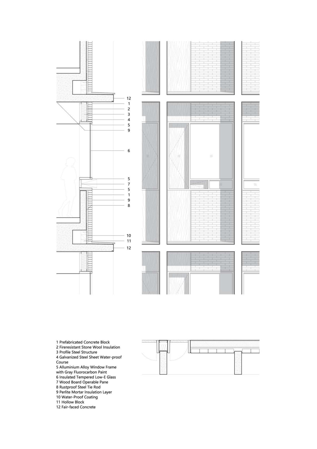
△细部大样图
△细部大样图
△细部大样图
△细部大样图
△细部大样图
△剖透视
△细部结构图
△手绘图
△手绘图
△手绘图
△手绘图
△手绘图
△手绘图
△手绘图
项目信息
建筑设计:直向建筑
面积 :70463m²
项目年份 :2021
摄影师 :陈颢,存在建筑,张阳
主持建筑师 :董功
项目建筑师 :冯超颖
驻场建筑师 :黄天植
施工管理 :赵亮亮、李锦腾
设计管理 :刘晨、张恺、王楠、孙栋平
项目成员 :马小凯、张益修、涂单、艾心、王艺祺、张菡、陈周杰、张钊、赵丹、滕晓彤
结构设计(初步设计) :肖从真、储德文、马宏睿、李义龙
机电设计(初步设计) :张鹏(水)、陈亚楠(暖)、李辉(电)、李晓飞(电)
合作设计院(施工图设计) :四川蜀泰建筑设计有限公司
合作设计院项目建筑师(施工图设计) :张崇陵
合作设计院建筑师(施工图设计) :高杰、刘飞
结构设计(施工图设计) :钟鸣、郭高华、何林
机电设计(施工图设计) :尹福林(水)、林艳(水)、龚波(暖)、赵丹(暖)、刘伟(电)、梁小维(电)
委托方 :成都万华投资集团有限公司、成都万华新城发展股份有限公司
幕墙设计 :深圳市科源建设集团股份有限公司
景观设计 :广州怡境景观设计有限公司长沙分公司
灯光设计 :清华大学建筑学院张昕工作室
室内设计 :四川盛邦建设股份有限公司
施工方 :中建三局集团有限公司
标识设计 :北京象塑品牌科技有限公司, 上海柏熙标识有限公司
地点 :中国,成都

BIM建筑网




















































