严迅奇建筑师事务所为宝安文化综合体操刀设计的旗舰建筑表演艺术中心,已于9月17日于中国深圳隆重开幕。表演艺术中心位于文化综合体的南侧边界,紧邻滨海区,俯瞰前海湾和南海,面积达28,000平方米,除了拥有深圳首个配置达到国际级的歌剧表演厅,还设有一个600座场馆和排练设施,可举办歌剧、舞蹈、交响乐和戏剧等多种表演。
表演艺术中心的设计灵感源自紧邻海湾的狭长基地。中心的底部是一个低层建筑,其波浪形态沿园区主轴打造出节奏感和动感,外立面的细腻穿孔设计则让人联想到中国传统工艺木雕和牙雕。立面设计为中心带来闪烁的视觉效果,就像是阳光照耀下闪闪发光的大海一样。功能上,立面设计能适度调节中心不同内部空间的通透度,比如包裹大堂等公共空间的立面通透开扬,而剧场和排练空间等密闭空间则善用立面较为不透明的部分。立面设计在外观和技术上都显得创新前卫,同时也紧扣中国传统建筑概念,如屏风和影壁等元素。
一个垂直倾斜15度的塔楼结构是整座建筑的焦点设计,令中心顿时成为园区的瞩目地标。塔楼与主建筑之间以天桥连接,桥上是俯瞰海湾美景的绝佳地点。中心底部设有高架柱廊式公共空间和聚集空间,而斜坡结构连接广场一端则设有一家餐厅,使中心向外伸延,与园区空间融为一体。
中心入口是一个楼高三层的高耸大堂,外立面的波浪形设计进一步延伸到大堂空间,除了设有巨大的弧形楼梯和木条饰面的弧形墙壁,日光也从穿孔立面照进室内,形成光影交错的动感空间。
主表演厅适合各种大型制作,包括歌剧、古典音乐和芭蕾舞表演等。具有雕塑感的墙壁不单突出表演厅的几何形状,也能通过背景降噪和强化音质为表演提供最佳的音响效果。舞台上设有六个双层升降机,能在十米范围内任意升降,为舞台制作开创了崭新的可能性。伴奏乐团的区域可以提升至主舞台的高度,方便扩充舞台。
中心还设有一个600座的剧院,与主表演厅不同,剧院空间设计灵活,适合各种实验性制作。舞台和座位可以因应需要轻松改动,如时装秀、四面舞台、深浸式和互动式戏剧体验。
项目图纸
△总平面图
△一层平面图
△二层平面图
△三层平面图
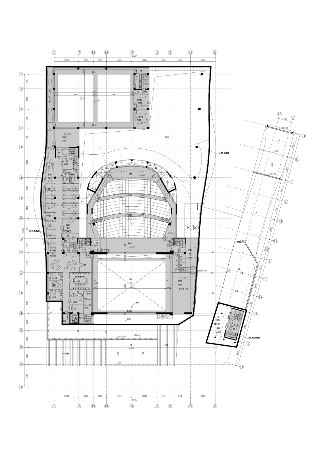
△四层平面图
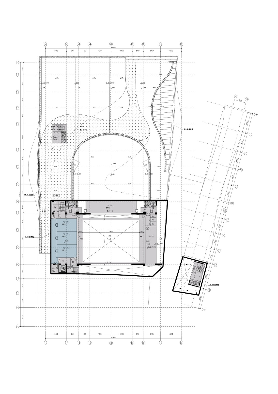
△五层平面图
△六层平面图
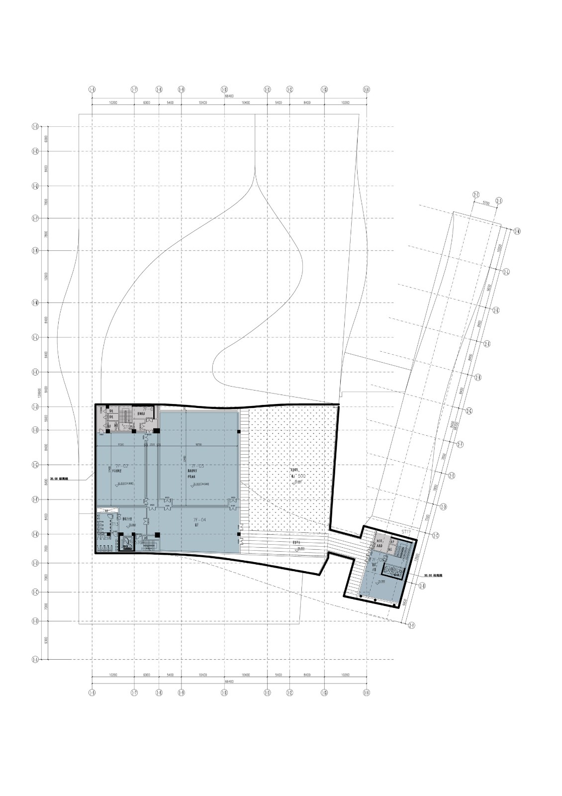
△七层平面图
△剖面图
△剖面图
△分析图
△分析图
△分析图
△分析图
△分析图
△分析图
△分析图
△分析图
项目信息
建筑设计 : 严迅奇建筑师事务所
面积 : 28000 m²
项目年份:2021
摄影师:ZC Studio
设计团队 : Rocco Yim , Derrick Tsang, William Tam, Herbert Hung ,Martin Fung, Lucia Cheung, Stephen Chan, Simon Ho, Calvin Chung, Ivy Yung, Zachary Wong , Zhu Yi, Seah lee, Jans Liang, Leo Zhou, Chen Lan, Amber Wang, Yang Shi Pei
业主 : OCT
当地设计院 : 北京市建筑设计研究院有限公司
立面顾问 : BuroHappold
景观设计 : SWA
地点 : 中国,深圳

BIM建筑网









































