文化礼堂园·舍一直致力于打造景观建筑一体化的文化场所。2019 年我们接受台州市路桥区蓬街镇人民政府的邀请,主持了其典型村落小伍份村的文化改造提升。文化礼堂作为乡村文化建设的核心载体,承载着村落的文化标签和精神符号。但在实际建造中往往因时间关系,缺乏对村落文化特征的充分挖掘。同时建设的复杂性也使得设计不仅仅是单纯的建筑或景观的营造,更像是对村落文化的挖掘和特征的重塑。
文化挖掘小伍份村位于台州蓬街镇。相传最先有五户人家到此地落户,聚集成村而得名,延续至今。不同于浙江常规礼堂的大开间尺度,设计之初团队便深挖“伍份”特征,将建筑体量分成五个开间,协调村落周边建筑的小体量尺度,构成沿街错落的五间民宅。
场地&功能场地呈”L"形单侧靠河展开,设计利用这一特性进行拉伸,放置门厅/楼梯/过厅和交互空间,上盖流动飘逸的曲线游廊,成为整个场地的精神堡垒。
功能上建筑分三个部分,多功能礼堂居中,两侧分置便民服务和村委办公。多种功能整合于同一屋檐,节时举办红白喜事,充当戏台/祠堂/和宴厅,闲时作为村委所在地提供便民服务,茶余饭后又成为村民纳凉休憩之所。相比于浙江大多数礼堂刻板且长期空置的使用现状,使其成为一个实则融多重生活场景为一体的“乡村文化综合体”。在流动的屋面之下构建出多样的乡村聚落生活。
材料&构造“乡村文化综合体”以当地乡土石材为墙,以传统木构饰面为窗,覆以现代流动的钢构屋面和通透玻璃,通过游离于传统和现代的风貌之间的手法,探讨本土化乡村现代建筑的可能性。
实践&探索
乡村建设项目的兴起,是对城市化带来一系列问题的反思。文化礼堂作为乡建项目的针灸实践,其意义在:通过对 “文化礼堂”这类乡村精神场所的再定义,重新描绘出一副乡村美丽生活的烂漫愿景,唤醒人们对城乡返流的观念转变。
地域的文化性建筑,是团队这几年一直在实践探索的领域。这类项目本身存在的矛盾性特征,恰恰能为项目戏剧性的成果展现提供舞台。传统与现代,流动与方正,在讲述故事性的建筑之时,探索团队在未来创作道路上的前路和标签。
项目图纸
△总平面图
△鸟瞰图
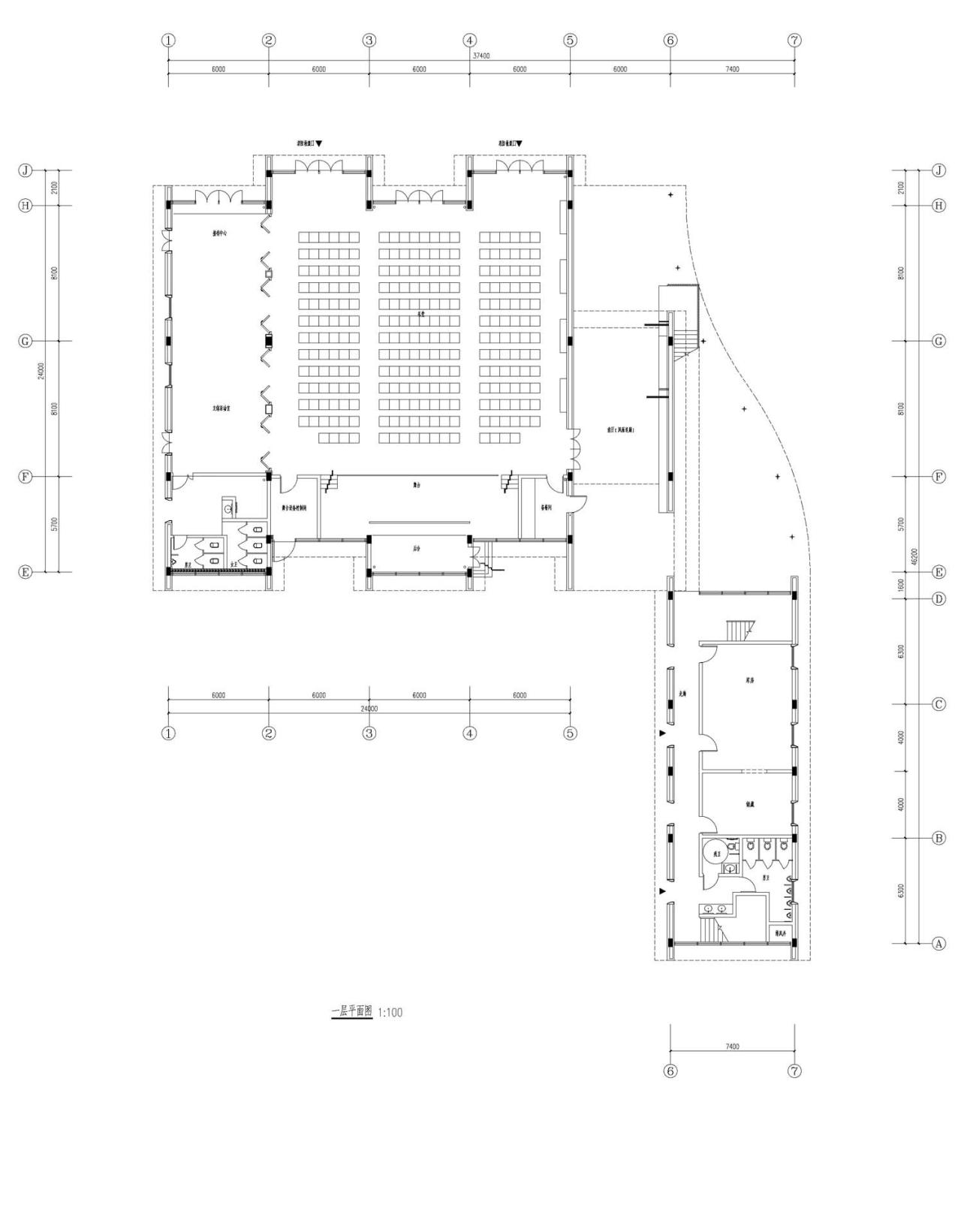
△一层平面图
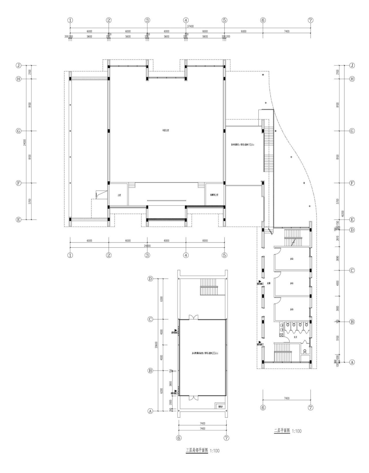
△二层、三层平面图
△剖面图
△生成图
项目信息
建筑设计 :One Design
面积 :1200m²
项目年份 :2020
摄影师 :直译建筑摄影
主创建筑师 :应王波
设计团队 :曹蓦、郝星汉、陈科润、章敏敏
业主 :台州市路桥区蓬街镇人民政府
结构设计 :CUC同构
景观设计 :南京尺木景观工程有限公司
地点 :中国,台州

BIM建筑网































