Samrudhhi 住宅位于苏拉特市最近开发的郊区住宅区。Samruddhi 是古吉拉特语,意思是繁荣,这是为一个三代同堂的家庭设计的房子,他们都倾向于拥有一个有 "家 "的感觉。设计理念试图创造性地解决一个住所非常简单但必不可少的需求,实现其功能性的同时实现可持续发展。该设计通过以庭院、自然光和可渗透的外墙作为关键组成部分,理解并回应气候和环境,实现了可持续住宅的理念。
本项目场地仅有190平方米,但需要容纳大约10个不同的空间功能,因此建筑的占地面积必须最大化。由于地块面积的限制,很明显建筑需要做到四层,那么如何要留其简单的尺度并避免出现低层公寓的典型立面将是设计中的一个挑战。更重要的是,要在住宅中整合一个双层高的庭院,作为自然光和空气的来源,并使其成为一个有凝聚力的家庭空间,这是一个相当大的挑战。根据客户的要求,所有的服务设施都必须放置在正面(入口),最终使建筑师希望实现的视觉和体验联系变得复杂。
建筑师试图在空间设计中将功能空间环绕布置在庭院周围,旨在将功能空间的物理和视觉联系延伸到三楼。在庭院周围安排私人和半私人空间时,这一设计也优先考虑到了隐私问题。开阔的庭院被战略性地安置在东北侧,连接起居空间、餐饮空间、较高一层的 Pooja 空间以及高层的学习区和家庭办公室。考虑到 "Vastu shastra(有关印度传统建筑体系的文本) "的规范要求,厨房和起居室被放置在平房的南侧,有一个功能性缓冲空间。这个创造出来的缓冲区被一个砖砌屏风所包围,提供了所需的隐私、通风以及南部外墙的被动冷却功能。
建筑空间向外开放并将树带入住宅内部,代表了将自然作为生活体验不可缺少的一部分的设计意图。建筑选用了非常简单的材料——砖和裸露的混凝土,以其最真实的样貌来解决这个简陋住所的结构、气候和审美需求。尽管使用了传统的材料搭配,但通过探索形式和改变其排列,使它们成为内部和外部的美学画布。一块半的佛兰芒砖就是在这种想法下的一个尝试,可以通过其空腔和厚度实现被动冷却。
建筑中还使用了印度白石地板,其传统的纹理和颜色同时能给人一种现代的感觉。砖是立面的主要用材,同时在塑造一些室内元素方面也发挥了重要作用,如门把手和百叶窗。院子里巨大的通风北立面有一个机械系统,使其立面通风得以实现。这个带有多扇百叶的玻璃大窗系统是通过具有锥齿轮和叉形旋转开启器技术的手动齿轮操作的。
项目图纸
△基地示意图
△一层平面图
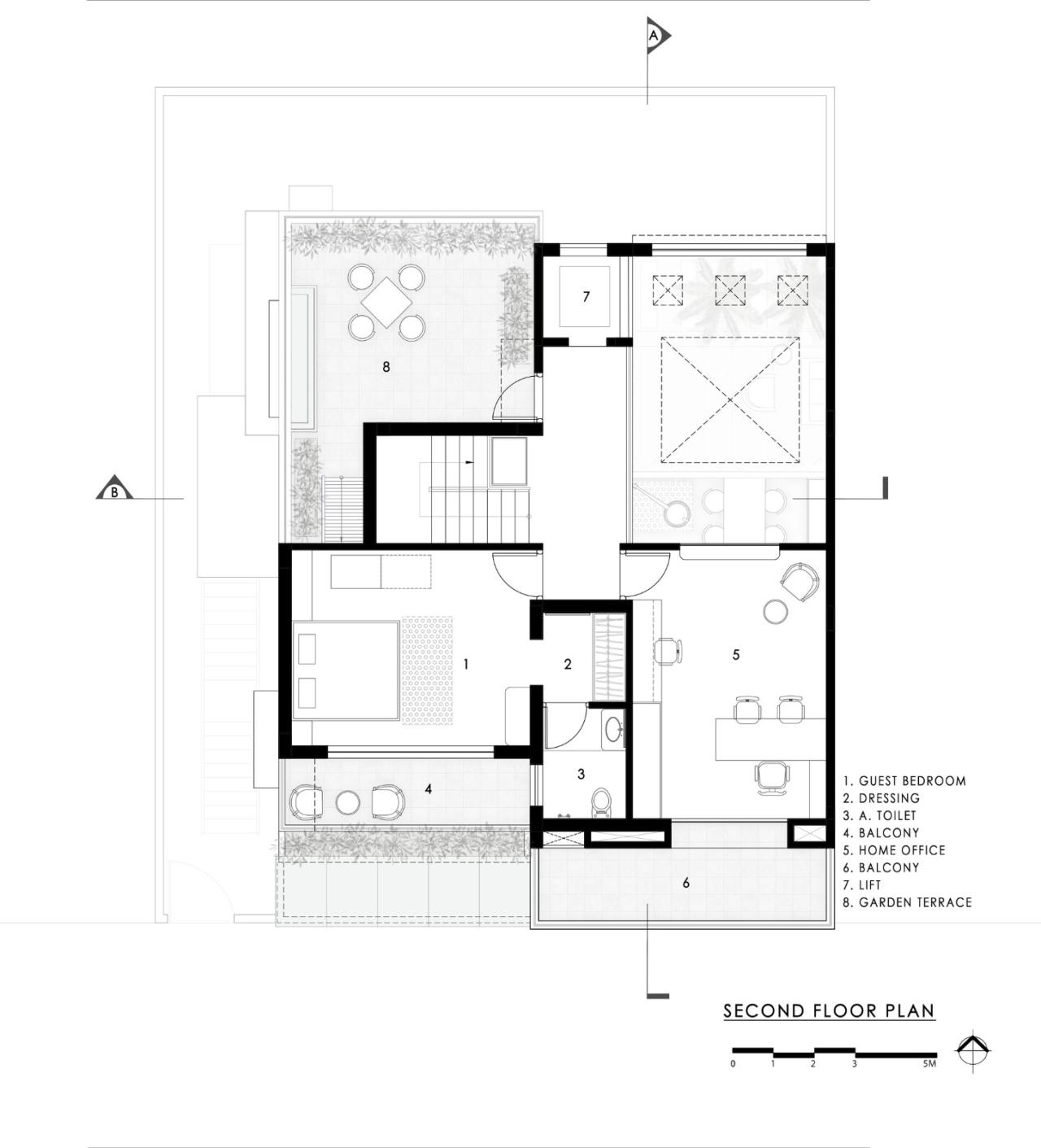
△二层平面图
△三层平面图
△四层平面图
△立面图
△立面图
△剖面图
△剖面图
△生成过程图1
△生成过程图2
项目信息
建筑设计:AANGAN Architects
面积:430m²
项目年份:2021
摄影师:Pratikruti09
厂家:Kohler,AltraTech Cement,Armano Tiles,Astral Pipes,Futura Lights,Jay Jalaram Brick Works,Legrand,Mitsubishi,New Age Lifts,Rajveer Corporation,Solarium Green Energy LLP,Technal,TechnoFab,Telesia Windows,Yale Locks
主创建筑师:Vishal Shah, Vishal Desai
项目建筑师:Payal Lukhi
项目工程师:Jigar Ariwala
制图负责人:Ishita Bardolia
景观建筑师:Niti Shah
地点:印度,Surat

BIM建筑网



























