项目位于昆山锦溪计家墩村,曾经为村委办公大楼,后经改造作为“村民”的公共活动空间。承载餐饮、展示与接待功能。一楼为展示、接待等功能、二楼则作为餐厅在使用。如今因为功能使用调整,场所将重新进行改造与更新。建筑师接到任务时,使用方要求建筑上不要做太大的拆改,希望能够在满足所需功能及美学的前提下最大化利用原有材质及墙体。在勘查场地后建筑师对于原有建筑多处既内且外、既彼又此及所营造的室内与室外交织、建筑与自然交织的空间体验印象深刻。决定在建筑外立面改造上尽可能保留原有建筑形式,以一种微介入和局部更新的方式进行改造,同时将重心围绕原有多处既内且外的景观中庭空间来展开。
01/形式追随功能经过梳理后建筑师将空间重新分配,以便满足使用方所需的各类会议及使用要求。首先重新定义入口,原建筑所营造的房子、墙和庭院绵延交错的布局。让建筑没有内外界限,可以从任何一个方向进入的同时但也弱化了主入口的机能。入口处通过院墙的开口营造的院落空间,因为过于曲折及尺寸过小,则没有明显的主入口标识性。而此时建筑功能改变为会议功能使用时,则需要一个清晰而具有引导性的进入方式。所以建筑师拆除了原南面众多具有趣味及曲折的院墙及开口,在封堵了局部廊道的同时扩宽了进入主体建筑的道路空间,原水池的廊桥也做了扩宽处理,以此来凸显主要入口的辨识性。
其次将空间重新进行了分配。在保留原二楼餐厅的同时,将大小不一,需求不同的会议空间重新做了搭配与布局,以便能满足不同会议需求使用。同时也结合庭院空间将茶水、咖啡、休憩、办公等空间进行融合。北侧原作为半户外廊道使用的空间则被收纳进室内,以此来满足作为大会议及多功能活动空间的使用机能。
02/会议的多种形式作为在乡村中的会议活动空间,建筑师希望打破很多既定的会议使用模式,希望通过不同的空间形式或使用方式来营造一种比较有趣、随性、舒适及放松的会议空间氛围。
03/动线的重新梳理原建筑在二层的两处屋顶平台与空中连廊之间形成了室内外的游走环线。该环线同时连通了室外的一系列天井和二层室内平台,本来是希望制造一种迷宫似的漫游体验。但因为原一楼展示大厅变更多功能会议活动室环线被打断,同时置于原展示厅区域的空中廊道与上下垂直楼梯被拆除。而原来二楼要通过室外露台再串联室内的动线也变的有点不便捷,所以建筑师重新规划了空间动线。重新在中庭处结合景观新增了垂直楼梯,其余上下动线仍然保留。二楼原来需要穿行户外露台进入室内的动线,则通过开窗架梯的形式让其直接进入二层室内。主入口则在进入前厅后分成三个方向。往前进入多功能会议活动室、往左通过景观中庭进入办公室区域或二楼的会议室空间,往右则进入咖啡厅和二楼餐厅区域。在制造主动线的同时仍然保留原来空间的游走体验。
04/灰空间的重塑原建筑空间多个既内且外走道及庭院空间,在经过分析后将其分别塑造成不同观感与功能的灰空间,在最大限度保留原有状态的同时让其更自然的形成过度及融合。
室内外与自然交织室内与室外交织、建筑与自然交织。建筑师最大限度的保留了原来交织在建筑中的呼吸空间及自然植物,用既隔绝又交融的方式通过制造框景与互动的方式进行并置。
看与被看的视角在功能被重新分配后,建筑师不希望空间被相互隔绝与独立。希望可通过多功能会议室与中庭之间产生更多关联。而且在实际勘查中发现中间的这堵墙厚度超乎异常的厚重,足足有60公分厚。于是建筑师决定通过上下或横向开孔的形式,制造不同视角的取景框,企图让各个空间在结合景观、对景的形式下产生一种“看与被看”的视觉感,同时也希望让空间可以更为流动与交织。
光的空间原有采光中庭的空间,建筑师在保留的同时通过设计干预分别赋予了他不同的空间光感及表现形式。
05/制造冲突与新旧并置粗糙的水泥柱与老旧的木头原本计划拆除或重新修葺,但是在建造过程中发现有些痕迹也不需要去掩饰与更新,于是便保留了下来。粗狂的混泥土柱子与细腻天花所呈现出的冲突与对比感,旧木柜体与周边新墙体之间的时空对话感。这种原始与细腻、新与旧并置状态下呈现出的冲击与视觉,反而好像更具有一种意想不到的观感、美感与复杂性。
项目图纸
△原始一层平面图
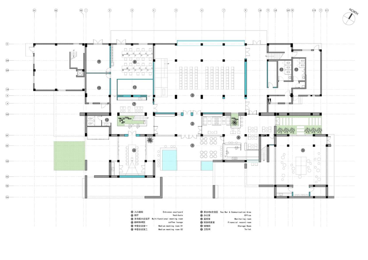
△改造后一层平面图
△原始二层平面图
△改造后二层平面图
△剖立面
△剖立面
△鸟瞰轴侧
△动线分析图
△功能分布轴测图
△会议模式轴侧分析图
△多功能室演示示意图
△原始动线分析图
项目信息
建筑设计:y.ad studio
面积:2188 m²
项目年份:2021
摄影师:Peter Dixie, Yang Yan
设计委托:昆山乡伴计家墩文化发展有限公司
地点:中国,苏州

BIM建筑网








































