Hisao & Hiroko Taki广场位于东京工业大学的入口,它既是打开校园生活的全新门户,也是可以容纳各式学生活动的“平台”。Hisao & Hiroko Taki 广场的建筑大部分位于地下,且仅在地面上露出郁郁葱葱的“小丘”,以此它与周边景观可以无缝融合,并保有了人们从入口处看向东京工业大学重要地标“钟楼”的清晰视野。
“小丘”屋顶由阶梯式的绿化和看台组成,并由此与相邻图书馆绿色斜墙相互呼应。这两栋建筑共同营造了一个绿色的山谷。而“绿谷”作为一个全新的绿色空间,还将为学生们带来清新的活动和生活。
屋顶阶梯式的景观不断向周边攀爬,并延伸至建筑物之中,从而使得室内空间和外部景观之间的界限变得模糊。同时,这样的设计也让公共学习和联合研讨会等活动可以同时在不同楼层举行。此外,Hisao & Hiroko Taki广场建筑间并没有明显的空间划分,以此在视觉、触觉等方面更好地营造了观览者的感官体验。
此外,由于场地中有许多复杂的现状,因此建筑师在设计之初,就确定了“小丘”屋面在建筑剖面中的形态,由此让阶梯景观可以沿着“小丘”扇形延展。这一设计也使得建筑整体形态仿佛“流淌入”校园之中,构筑了入口处的川河三角洲。同时,建筑将支撑屋顶的“扭曲”架构暴露在外,从而使得室内空间可以产生一定的流动性。也由此,外部和内部的景观自然地产生、交织,并以一种和谐的方式相互紧密相连。
项目图纸
△总平面图
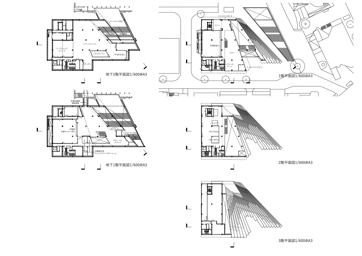
△平面图
△立面图
△剖面图
△剖面图
△细部大样图
△结构示意图
项目信息
建筑设计:隈研吾建筑都市设计事务所
面积:4879m²
项目年份:2020
项目团队:名城俊樹、渡邉啓太、田中浩介、叶子萌、金子史弥
微信公众号:xuebim
关注建筑行业BIM发展、研究建筑新技术,汇集建筑前沿信息!
← 微信扫一扫,关注我们+

BIM建筑网
























