绍兴黄酒历史悠久,黄酒文化深深扎根于这片土壤,而本项目所处的东浦镇自古以来便是绍兴酿酒业的中心,素有“绍兴老酒出东浦,东浦十里闻酒香”之誉。基址原是一间生产黄酒的作坊,现保留有红砖砌筑的烟囱,项目前期作为绍兴黄酒展示体验馆,包含黄酒文化体验展示、书屋、花店等功能,后期将改造为包含三间餐饮和一间书店的滨水商业建筑。
场地周边水网密布,古时便是绍兴漕运的航道,东侧直面大树江,具有良好的景观条件。设计中充分利用这一优势,三层建筑体量由南向北逐层叠退,形成多处可以俯瞰大树江的屋顶露台空间,为后期餐厅使用创造更多的可能性。面江的一侧底层退出一跨形成面向景观面的灰空间,作为室内空间的外延和过渡,模糊和柔化了室内外的边界,和水面形成直接的联系。
△道路原貌
△场地原貌
△场地原貌
△植被原貌
△植被原貌
由于存在不同时期的功能转换,且在转换时要避免大规模土建拆改,这就需要建筑空间划分必须灵活可变,借鉴传统木构架建筑和多米诺建筑体系强大的功能适应性,方案确定以4.8mX4.8mX4.8m的立体方格作为建筑的基本模数,这个模数可以同时适应展览、铺面、餐厅、卫生间、楼电梯间等基本空间的平面及层高需求,较小跨度也可以取得较高的室内净高,同时满足展示体验与商业经营的要求。
这个基本模数单元完全映射到建筑的形体和立面,重复的模数单元形成独特的建筑气质。而在建筑物的外墙再增加一榀构架,让室内实体空间退进,形成一个有深度、有层次的立面,取意于江南民居支摘窗的遮阳棚进一步增加了立面的深度和层次。
模数化空间与模数化形体高度统一,带来的是可最大程度的快速预制和安装,也契合快速建造和成本控制的实际要求。最初方案拟采用木结构,考虑到项目的周期紧以及大规模木结构建筑的防火规范,同时结合江南气候多雨,木结构耐久性差、后期维护要求高等因素,最终放弃了木结构形式,采用更为快捷可控的钢框架结构形式。
通过对各类材料的考察比对,外立面装饰以再生竹木作为外墙主材:再生竹木以原竹为原料,具有取材便利、加工工艺简单,绿色环保的特点,竹木板在工厂预加工成L型构件,减少了现场拼装工作量和接缝处理,提高了建造速度和现场安装的精度。暖色的木质感材料和小尺度的单元空间,共同塑造了一个姿态谦逊、具有亲和力的、充满活力的滨水开放空间。
此次项目是设计团队在模块化设计建造方面的一次尝试,从中国传统建造方式展开联想,以统一的模数化设计语言回应了复杂的功能建造诉求,回应场地与历史,为千年古镇注入时代活力,让黄酒文化以一种充满活力的方式传承下去。
项目图纸
△模型图
△模型图
△模型图
△总平面图
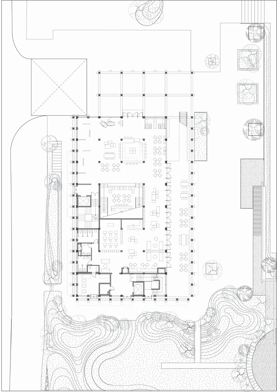
△一层平面图
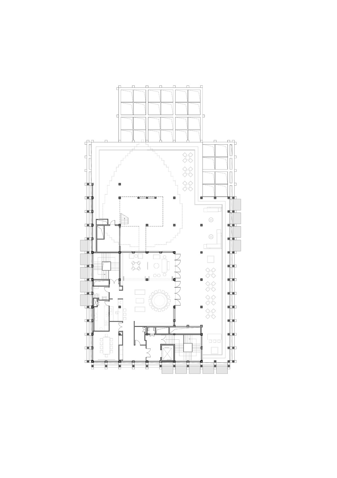
△二层平面图
△三层平面图
△立面图
△剖面图
△生成图
△墙身大样图
项目信息
建筑设计:gad
面积:2113m²
项目年份:2021
摄影师:YAOLI STUDIO
厂家:Moso Bamboo www.moso-bamboo.com MOSO Elite Pavimento,旗滨玻璃,飞虎特斯林
项目总监:张微
项目主创:吴克锁
建筑设计团队:王毅然、孙晓宇、马成龙、蔡恒屹、杨方圆、安於欣
结构设计:孙殿宇
给排水设计:张莲、黄琪
暖通设计:李芳芳
电气设计:陈国平
业主:融创中国东南集团浙中公司
照明设计:BPI碧谱照明设计公司
室内设计:内建筑
景观设计:广州观己景观设计
施工图设计:gad
幕墙设计:经典装饰
地点:中国,绍兴

BIM建筑网





































