【摘要】西部某高速铁路项目设计时速250km/h,横跨三省十一县,正线长度约515km,其中特大桥14座,特长隧道180座,总桥隧长度约405km,桥隧比81%,线路跨越中国西南山区的崇山峻岭,地形和地质条件都非常复杂,设计和施工难度很大。
一、项目背景
1、项目名称: 西部某高速铁路三维设计
2、项目设计单位: 中国中铁二院工程集团有限责任公司
中国中铁二院工程集团有限责任公司(简称“中铁二院”),原名铁道第二勘察设计院,成立于1952年9月。现隶属于世界500强企业——中国铁路工程集团有限公司。中铁二院是全国大型综合性勘察设计咨询企业,公司持有勘察、设计、咨询、监理、环境评价等资质证书和对外经营资格证书四十多项,是全国首批获得设计资质综合甲级的八家单位之一,也是国内公路系统外首家获得公路“四甲”资质证书的单位。设有线路、轨道、地质、路基、桥梁、隧道、站场、建筑、环保、通信、信号、电力、及航测等四十个专业。依托铁路,目前业务已拓展到公路、城市轨道交通、市政工程、区域综合规划、轮渡码头、工程总承包、工程监理、岩土工程施工、房地产、产品产业化、冶金矿山等各类领域。
3、相关软件应用:
Autodesk Revit Architecture
Autodesk Revit Structure
Autodesk Revit MEP
Autodesk Navisworks
Autodesk Ecotect
Autodesk 3dsMax Design
AutoCAD Civil 3D
4、BIM应用评价与反馈:
Autodesk Revit作为BIM的重要技术支撑平台,实现了设计成果的平立剖三维互动,提供了强大的“多任务”能力,对铁路站房设计观念和方法带来了新的变革。
——中国中铁二院工程集团有限责任公司信息中心总工程师董凤翔
通过欧特克公司的三维设计软件,让业主能够更加直观生动地了解设计成果的最终形态,在汇报交流过程中,极大地减少了沟通障碍,得到了业主的高度认可。
——中国中铁二院工程集团有限责任公司信息中心总工程师 董凤翔
AutoCAD Civil 3D强大的参数化铁路路基建模和动态更新的特性给我留下了深刻印象,它能够帮助线路和路基专业设计人员高效率地完成设计工作。
——中国中铁二院工程集团有限责任公司交规院副总工程师胡光常
通过在Autodesk Revit Structure中构建自定义三维桥梁结构族,创建中将结构参数暴露给用户灵活修改,给桥梁三维建模带来了一种新思路,让桥梁设计变更更加直观、简洁、高效。
——中国中铁二院工程集团有限责任公司桥梁专业工程师杨咏漪
二、正文
BIM技术在高速铁路设计中的应用
——西部某高速铁路三维设计
项目概况
西部某高速铁路项目设计时速250km/h,横跨三省十一县,正线长度约515km,其中特大桥14座,特长隧道180座,总桥隧长度约405km,桥隧比81%,线路跨越中国西南山区的崇山峻岭,地形和地质条件都非常复杂,设计和施工难度很大。
中铁二院将BIM技术应用于站前多专业的协同设计,三维设计周期为2012年1月到6月。
项目挑战及解决方案
作为一个高速铁路项目,本项目面临的挑战包括:项目整体线路较长,在平面选线和路基横断面设计上的影响因素很多,工作量很大。与此同时,项目设计周期却相对较短,只有大约6个月,与同等规模的项目相比,只占其50%。项目中的一大挑战就是要在有限的项目设计周期内完成多个方案的比选,并生成高质量的横断面设计图纸,且业主期望以更为直观的方式获取设计最终效果。
基于以上项目挑战,中铁二院组建了一支BIM设计小组,将BIM技术应用于该项目,从而实现了专业之间数据的协同与共享,提高工程设计质量,为业主提供更为直观的交付方式。
BIM技术在线路、路基协同设计的应用
本次三维设计首先运用基于三维GIS平台的空间选线系统,规划铁路的线路通道,为后续设计研究奠定基础。系统利用三维GIS平台,获取地形高程数据、影像数据及相关地理信息,直接进行铁路线路规划设计,并进行方案综合展示、构建沿线铁路三维场景及线路方案比选。

图1 进行线路交互式定线

图2 设置纵断面变坡点

图3规划车站、桥梁和隧道的位置
在线路规划完成后,设计人员将线路平、纵数据直接导入AutoCAD Civil 3D软件,并根据初步选定的装配,快速创建铁路路基三维模型。AutoCAD Civil 3D强大的参数化铁路路基建模和动态更新的特性帮助线路和路基专业设计人员高效率地完成了工作,通过对路线平纵断面的调整,可以实时地观察到路基模型的更新和土方量的变化。

图4添加路基模型生成三维路基
由于线路穿越山区,地形起伏很大,因此横断面的变化也很多。在传统的设计手段下,这部分的工作通常需要花费大量时间和人力。一般来说,10km的路基横断面需要大约5天。利用AutoCAD Civil 3D的智能路基横断面部件,如条件判断部件等组成的装配可以很容易地应对横断面的变化。同时在AutoCAD Civil 3D中的横断面图纸和路基模型动态关联,任何对于线路平纵断面和路基装配的修改,都可以实时精确地反映到横断面图纸上。

图5三维路基模型与横断面图对应关系 图6根据三维路基模型自动生成二维横断面图
这就使设计人员可以集中精力在设计本身上。在本项目中,160km的铁路路基设计上,设计人员花了大约10天时间来研究横断面的坡度、挡土墙和排水沟等细部问题,而只用了一小部分时间修订图纸。
BIM技术在桥梁设计的应用
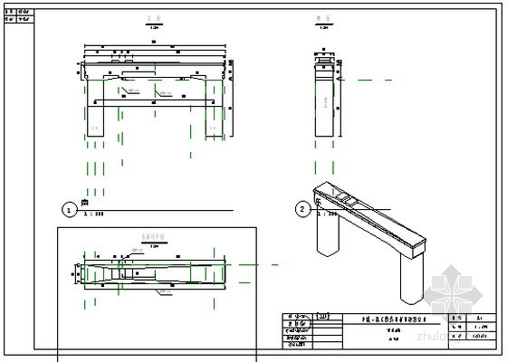
在铁路桥梁设计方面,设计人员使用Autodesk Revit Structure建立了大量的参数化桥梁结构族库,并定制了相关的视图样板和明细表模板。根据测绘、地质、线路等基础数据,设计人员利用参数化的族库,拼装成三维桥梁模型之后,便可快速得到二维图纸和混凝土工程量。同时,借助Autodesk Revit的API,桥梁工程师还开发出了桥梁下部结构的参数化钢筋配置模块,为每一种不同类型的桥墩和桥台快速布置实体钢筋,以便于钢筋图的生成和钢筋数量的统计。


图7三维刚架墩模型(参数集) 
图8钢架墩二三维图纸
BIM技术在车站设计的应用
在车站设计上,设计人员采用了基于BIM理念的Autodesk Revit系列软件。在传统工作方式下,不同专业之间的设计人员采用二维平面图进行交流,既不直观又容易出现不协调的情况。而设计中一个小小的专业间的碰撞就有可能在施工中带来巨大的成本追加。在本项目的车站设计中,设计人员使用Autodesk Revit的工作集和链接管理,将多专业的Autodesk Revit模型进行整合和冲突检测。其中的一个车站设计,总共发现管道系统和结构构件之间5处碰撞。根据碰撞结果,设计人员重新进行管线综合,在施工之前将错误避免,同时也为业主提供了更为直观的最终成果展示手段。
图9 通过Autodesk Revit软件设计的车站三维模型

图10 通过不同视角对三维模型进行切割
在完成设计之后,整个车站的模型被导入Autodesk NavisWorks进行四维施工模拟,以便施工项目经理和业主更好地了解项目建造过程和控制施工进度。

图11 四维模拟施工一

图12 四维模拟施工二
BIM技术与成果展示
在展示交流方面,一方面设计人员将AutoCAD Civil 3D创建的三维铁路路基模型和地形通过AutoCADCivilView导入Autodesk 3dsMax Design进行铁路轨道线路的可视化展现,以便于方案沟通。之前,建模工作需要在Autodesk 3dsMax中完成。路基的台阶式边坡和高度变化的挡墙通常需要花费大量时间和人力,而且模型精度不高,只是一种示意。现在,AutoCAD Civil 3D精确的三维模型可以无缝地导入到Autodesk 3dsMax Design中来,并使AutoCAD Civil 3D模型和Autodesk 3dsMax模型保持一致的更新关系。不仅真实地反映了工程,更省去了重复建模的时间。多媒体制作人员可以集中精力完成后期的渲染表现和动画制作,而不是在建模工作上。

图13 在Autodesk 3dsMax导入的道路局部模型
另外一方面,项目完成之后,多媒体部门将欧特克软件生成的路基、桥梁和车站等信息都导入到自主研发的可视化系统中,并结合测绘、地质等基础数据,进行整个项目全线的展示汇报,以及相应的设计数据管理。

图14 高精度三维虚拟地形场景

图15 精细三维桥梁模型
在该高速铁路项目上,项目团队使用了欧特克工程建设行业的大部分主流软件。在项目的各个不同阶段开展工作,应对设计挑战,在有限的项目设计周期内高质量地完成了设计任务。同时,由于应用了BIM技术,各个阶段的设计数据也得到了有效地传递和继承,为后期的建设施工和运营维护提供了宝贵的资料。

BIM建筑网


