时尚是一种表象,空间的内在是人,要让人在空间里感知到舒适。
可以享受到自然的光线、自然的风景。⼈与环境,有交流有互动,和谐共生。—— 申俊伟Junwei Shen
项目所在地长春,是中国东北地区中心城市之一,是中国最早的汽车工业和电影制作基地。亚泰集团作为吉林省最大的房地产开发商,决定升级长春商业环境,亚泰新动力应运而生。
原建筑废弃已久,它被灰暗的大理石包裹,前面有高架环绕,带给人一种封闭、压抑的距离感。设计师申俊伟先生认为商业应该是开放的,与人有亲密感的,所以要把她打开,变得通透与友好。基于这座北国春城的浪漫情怀,决定为长春首创一个爱情地标。以爱之名,以钻“界”为设计构想,让亚泰新动力像一颗钻石一样镶嵌在二道区的交通要道上,为全城追求高端生活品质的人群打造一个潮流、时尚的生活方式提案中心,在这里体验被爱的感觉!
新建筑的主立面采用晶莹剔透的玻璃幕墙,宛如一个精心切磨的钻石镶嵌在两栋塔楼之间。钻石一样的空间,精致,璀璨,通透,拉近了建筑与周边环境的关系,让人愿意接近她。开放的视野模糊了室内外的边界,并向室内引入充足的阳光,获得了都市风景。
为了让顾客拥有独特的空间体验,设计师打破建筑内部原有的单一中庭结构格局,横向动线上利用钻石切割面的韵律,形成不规则的环形动线,创造出有效的退台关系;设计上采用大量钻石折射面的构成,颜色和材质在不同空间里呈现的变换,给顾客留下一个突出的视觉记忆。
在垂直动线的设计上,用观光电梯把负二层至六层打通,用扶梯将一到三层、三至六层连通,让室内空间“呼吸”起来,变得开放与亲密。观光电梯表面是30米高的LED冰屏,让悬浮的影像直达天际,并与地面“钻石”屏互动,创意与前沿科技在这里融合,玩出无限想象!
主中庭用了760颗像钻石一样的光源来模拟自然光,让原本封闭的顶层天花呈现了如日光般的自然状态,同时带来感官上的震撼。
整个十万方的购物中心,七个商业楼层分为五大主题空间:时空之旅Time Travel、城市客厅City Parlor、爱情城堡Love castle和天空桥Sky Bridge、钻食食集Diamond Food。在寒冷的长春,阳光显得格外重要,整个购物中心与阳光直接接触的有两个地方:时空之旅和城市客厅,大面积的木色和阳光营造了自然气息,也是设计师一直在倡导的生态时尚设计理念的传达。
在时空之旅的台阶上拾级而上,穿越绿意盎然的植物墙和数字艺术装置带来的科技感,生态与科技在这里碰撞;亦或是坐在大台阶上,沐浴阳光,享受城市的风景。
另一侧的城市客厅同样洒满阳光,贯穿整个空间的大面积的木色、金色,无不感觉到被爱意暖暖所包围,连贯二楼到六楼的巨大书柜,不但引导了这里的垂直动线,更增添了这里的人文气息,百米长的临窗吧台为人们提供了读书、休憩的地方,大人带上孩子可以在这里阅读、学习,聚会。
位于高区的爱情城堡和天空桥则延续了爱情这一主题,让空间充满了浪漫色彩和唯美的气氛,是希望给爱与被爱的人制造惊喜之地,更是将这浓烈的气氛渲染至顶点,让爱无处不在。
连接城堡的“天空桥”是这座购物中心的情感纽带。站在廊桥上,眼前的爱情城堡绚丽夺目,邀你心爱的人在这里许下心愿,记录下这浪漫的瞬间!
地下一层与地铁2号线无缝接驳,这也为钻食食集这个美食楼层提供了客流和人气,整个钻食食集的设计灵感源自“寻味十九克拉”,以此来传达“唯有爱和美食不可辜负”,空间里大面积的炽烈橙色“钻石”天花形成强烈的视觉冲击,刺激你的味蕾和感官,让人仿佛置身于一个美食宝藏,迫不及待的开始你的寻“宝”之旅。
亚泰新动力不同场景的营造,开创了长春购物中心最大最多的共享空间,也是商业空间更加注重人文关怀的一种体现。
整个空间提取自然界的元素:钻石,木,光;大量环保、可循环再利用材料的应用,以此来传达「生态时尚」的设计理念,时尚是一种表象,空间的内在是人,要让人在空间里感知到舒适, 可以享受到自然的阳光、自然的风景。⼈与环境, 有交流有互动,和谐共生。
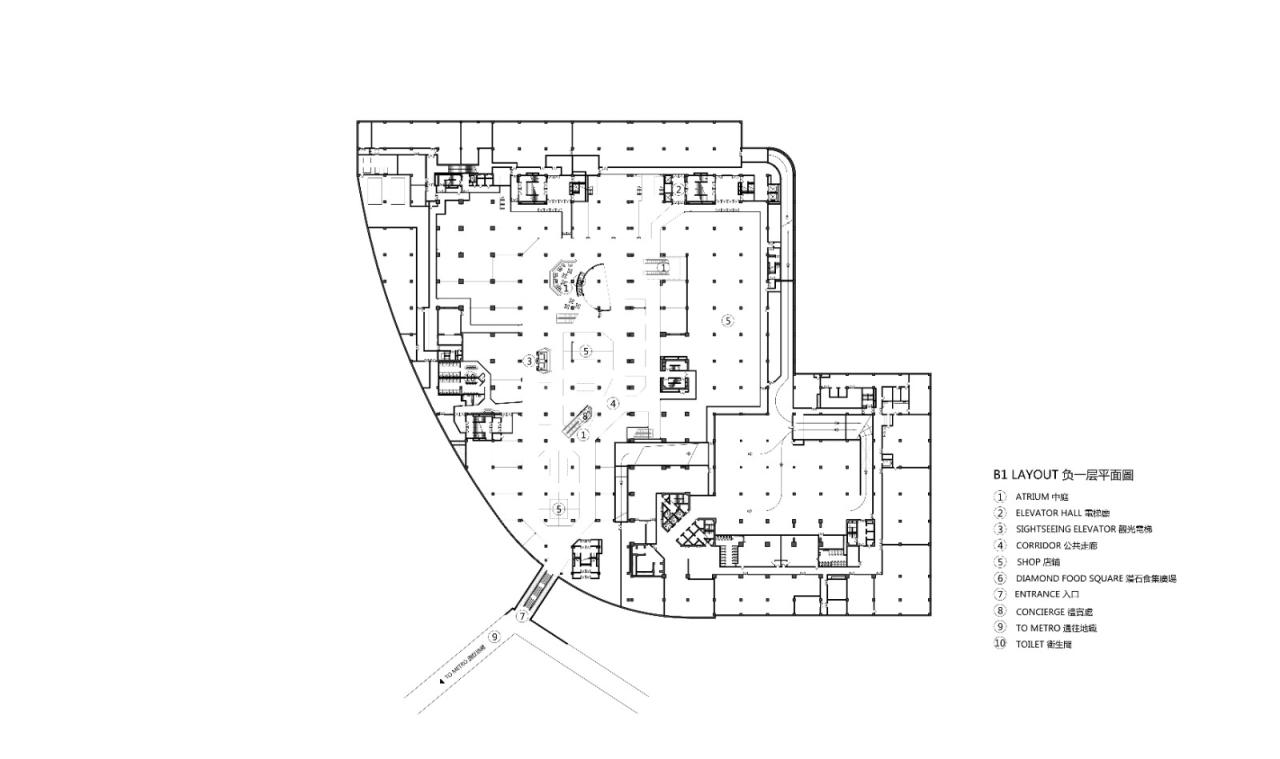
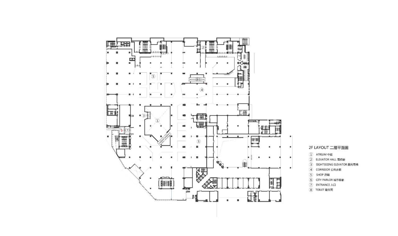
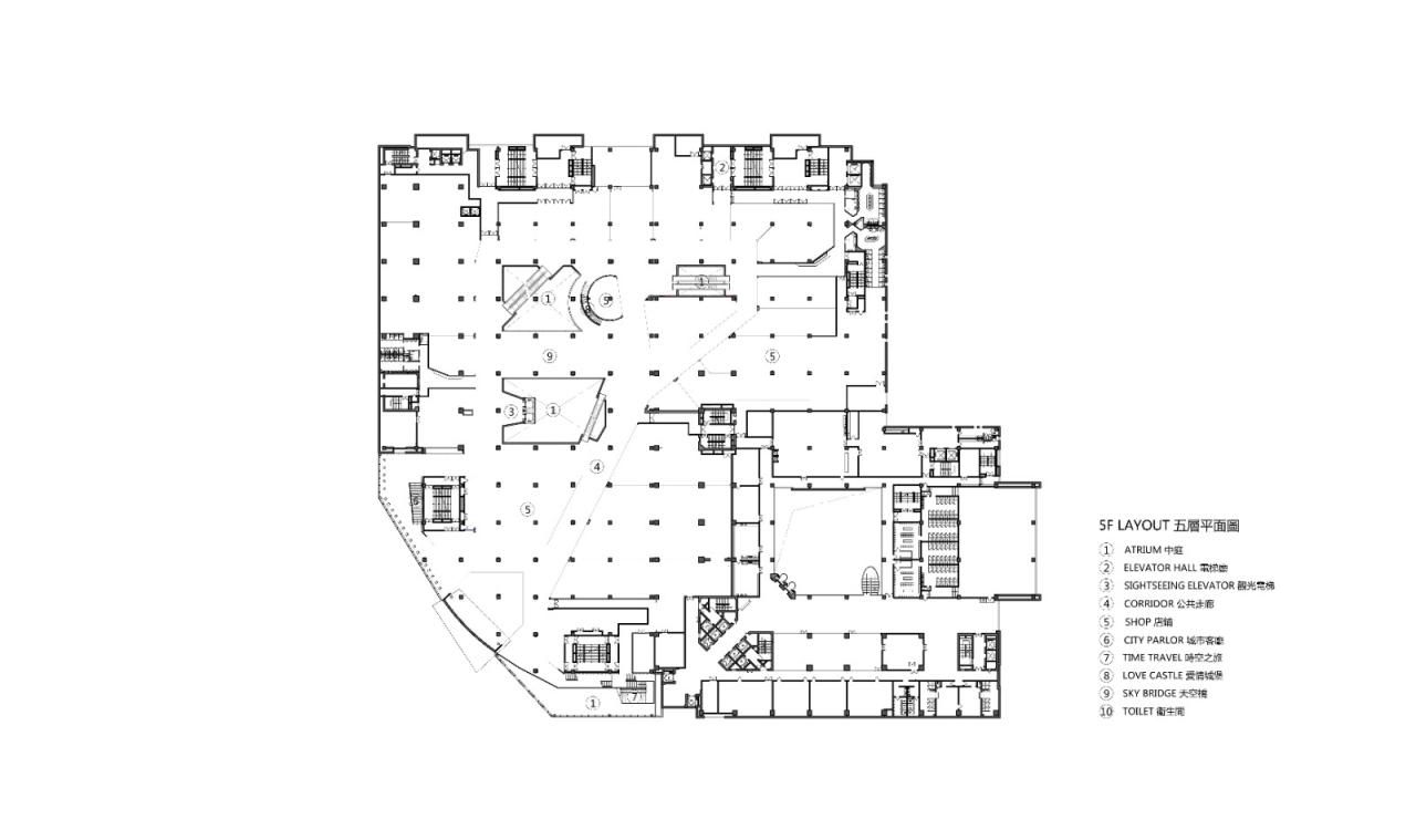
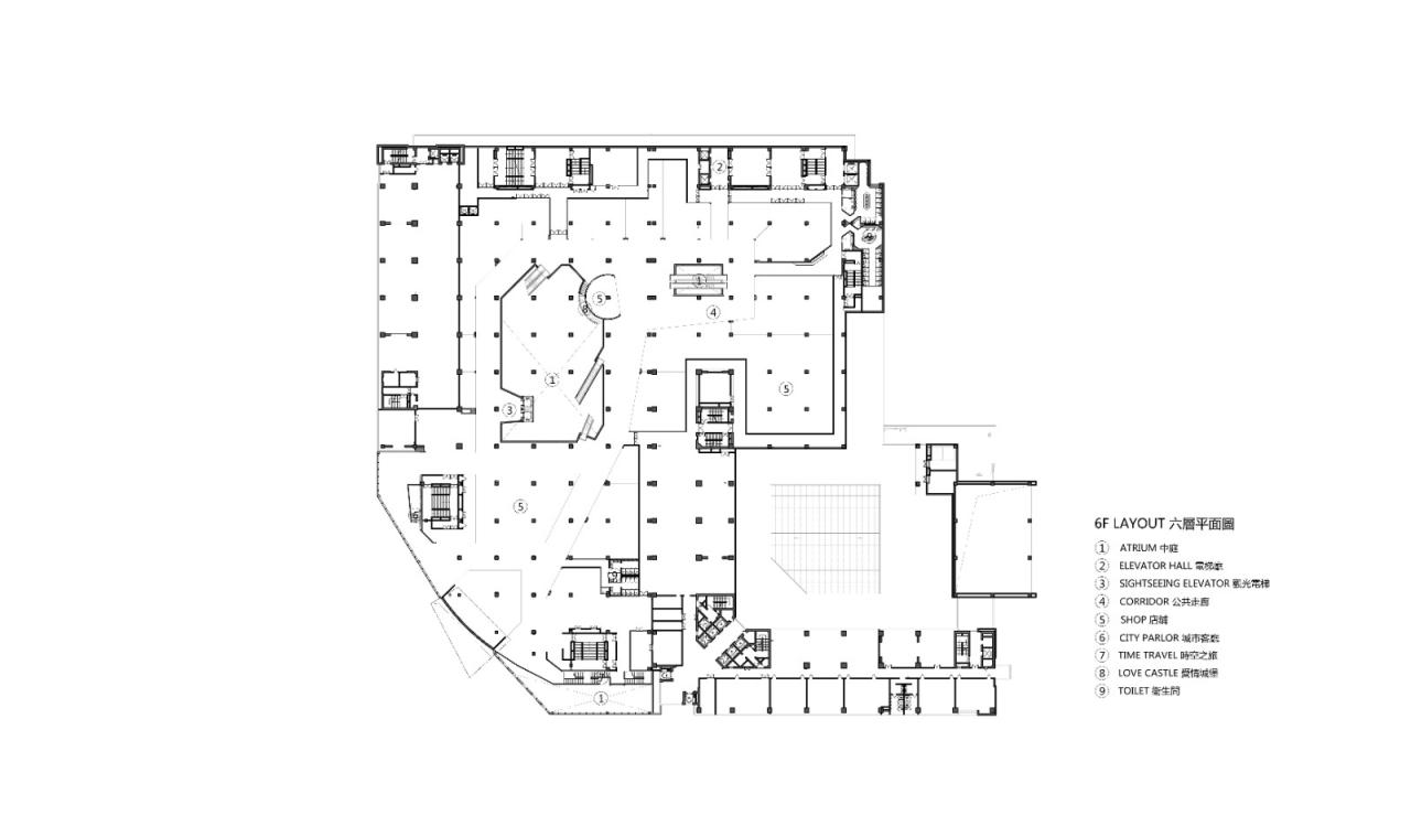
项目图纸
△负一层平面图
△一层平面图
△二层平面图
△三层平面图
△四层平面图
△五层平面图
△六层平面图
△剖面图
△立面图
△场景区位图
△城市客厅构想
△钻界构想
△时空之旅构想
△灵感来源
△灵感来源
项目信息
项目名称:亚泰新动力
项目地址:中国.长春
主设计师:申 俊伟
联系邮箱: ELSONSHEN@163.COM
公司网站: www.arizon.com.cn
建筑设计:乾正设计
室内设计:乾正设计
导视设计:乾正设计
商业美陈:乾正设计
完工时间: 2020.12.30
项目面积: 108,380㎡
客户:亚泰集团Yatai Group
施工方:吉林亚泰恒大装饰工程有限公司
类别:购物中心
室内摄影: Dirk weiblen
建筑摄影:存在建筑摄影arch-exist
视频:张铎/钛洺文化 Timing Picture

BIM建筑网











































