1975年建于波城的" Complexe de la République "位于法国西南部,对面是比利牛斯山脉。由于其有盖市场的破旧状况并相邻着破旧不堪的矮小办公楼,这座建筑多年来一直在衰落。AmellerDubois 工作室在一场国际性竞赛中通过提出一系列的规划被评为获胜者,包括形象、用途、设计施工和城市规划,致力于为波城居民服务,从而取得这次项目的负责权。该项目的特殊位置被重新发掘,因为它是城市发展的一部分,也是为了让社区恢复生机,重新焕发活力。
新的综合楼将摊位式商业大厅,生产商所用楼层,和修复后的办公楼通过一个高广场接连在一起,提供了一种同质化的感知,赋予了强大而有意义的身份特征,结合了该项目的所有元素。
新商业大厅采用简洁大方的平面布局,外立面和屋顶都采用了统一的覆层,由带有各种穿孔的白色金属网组成。它被设计成一个没有任何支柱的空间,以促进零售商和游客之间的交流,而宽敞的走道则汇聚在中央双层高的中庭周围。建筑一楼的夹层由一个木制露台自然延伸,成为项目中的一大亮点。部分白色结构覆盖到容纳户外品尝的用餐区,全玻璃立面和横向交叉的底部将生产商的楼层和摊位式商业大厅以相同的形式结合在一起。
修复后的办公大楼保留了其为公民服务的使命(市政警察/城市服务)。它两个部分的建筑处理被刻意区分却又显得互补。塔楼的新轮廓分别抬高了8 米和 4 米,展现得更为纤细。综合楼的东部与另一端的市场大厅都用相同的白色结构覆盖着,相比之下,露台一侧的部分采用了折叠穿孔的青铜色垂直面板,随风而动。
这种黑色和白色褶皱的金属覆层将建筑物分成两部分,在对比和互补的作用下赋予其更纤细的形象。该项目的翻新工程是分三个阶段进行的,以确保原有场地的正常运行。
项目图纸
△总平面图
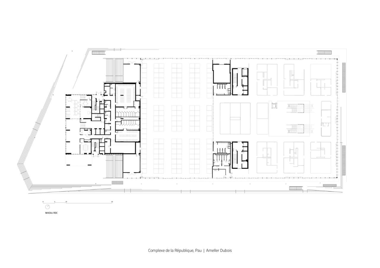
△平面图
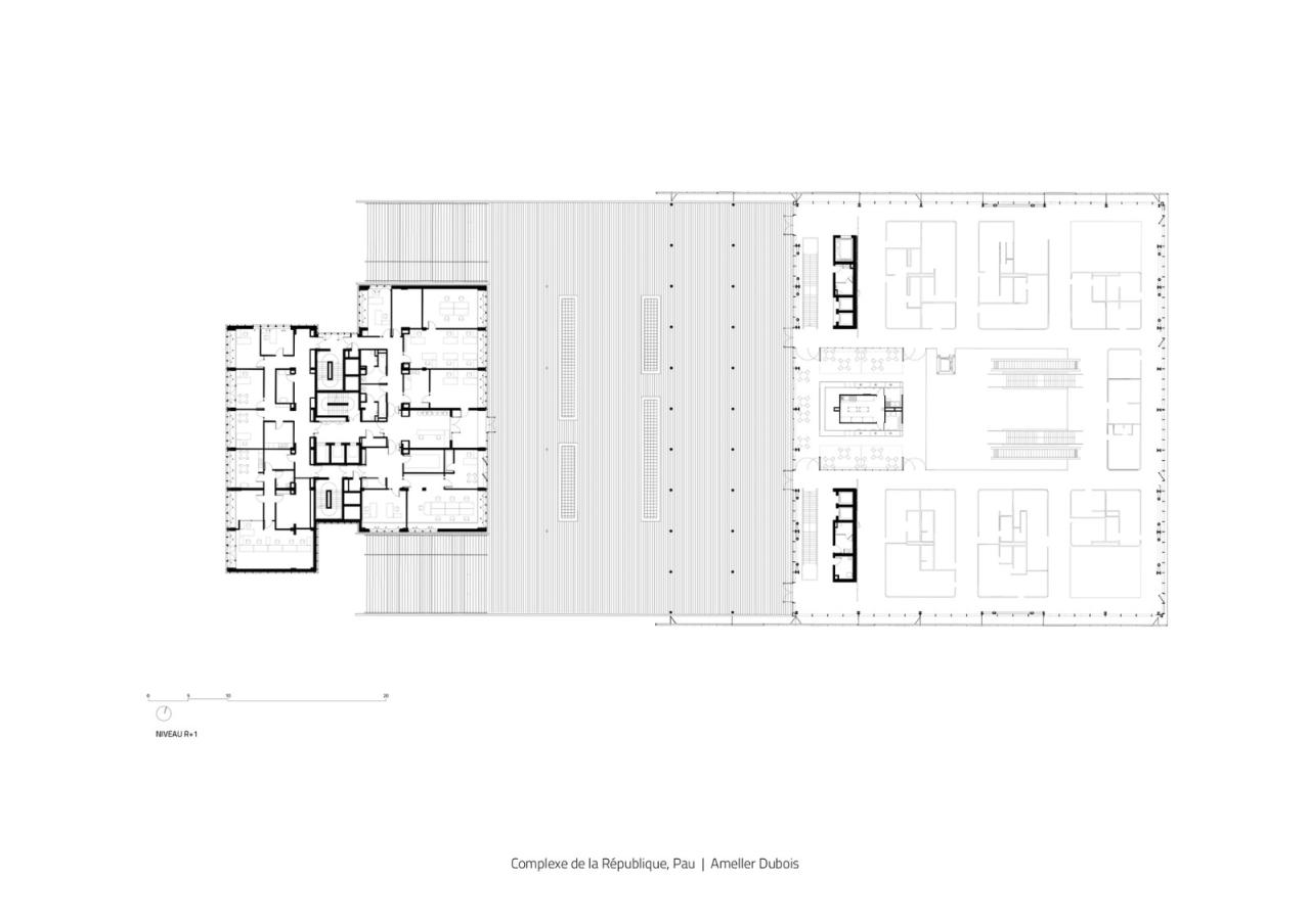
△平面图
△平面图
△剖面图
项目信息
建筑设计:Ameller Dubois
面积:16400m²
项目年份:2021
摄影师:© Franck Brouillet,© JF Tremege
厂家:Jansen,Gerflor,HIGHT POINT,HIMFLOOR,KONE,La Seigneurie,OPTILED,Philips,Saint-Gobain,Schueco
主创建筑师:Ameller Dubois
建筑竞赛:Grégoire Seidel
研究:Lotfi Amara, Émilie Marx
建造方:Vincent Hubert
地点:法国,巴黎

BIM建筑网






















