Zip Cinema 是韩国首屈一指的电影工作室,以2019年作品田禹治:道教巫师(JeonWoochi :The Taoist Wizard)、2013年作品冷眼(Cold Eyes)和2015年作品牧师(ThePriests)等众多大片而出名。他们正在制定计划建设一个新的总部。 设计师与业主都致力于同一个目标:zip,这是工作室的名称,在韩语中也是“房子”的意思。这使得与业主的第一次会面友好地开始了。然而,在过去10年间制作了10部电影的Zip Cinema 决定与一家仅拥有十年历史的相对较新的建筑公司合作,起初听起来可能有些出人意料。 搬离首尔的主要商业区江南,将总部迁至坡州。京畿道对于一个崭露头角的电影工作室厂来说是一次大胆的举动。
电影业已经与企业界,尤其是金融业建立了牢固的联系。因为它对资本和发行的依赖成为其成功不可或缺的一个方面。尽管面临租金高、停车位紧张和办公室布局缺乏想象力等诸多不利因素,大多数电影制片厂还是将总部设立在江南,因为他们必须与商业和宣传合作伙伴保持密切联系。 Zip Cinema 的总裁 Eugene Lee 做出了一个违背常规的行政决定,在首尔以外的坡州出版中心(Paju Publishing Complex)找到了一个新址。 因为她知道在一个由男性主导的行业中建立事业的风险。 更重要的是,她想通过一个欣赏和激发创造力的环境来认可和奖励她的员工,因为他们的奉献和承诺是工作室地成功不可或缺的一部分。
除了上述背景,在设计过程中,电影工作室的实际需求也被仔细考虑。 第一个主要业务领域涉及会议,其中很多是用于处理场景和头脑风暴会议。 当然,另一个主要业务是制作和发行电影。为了这两个目的,两个独立的多功能厅被分别放在建筑的两侧。两层楼挑空的宽敞大厅在不使用时营造出令人神清气爽的开放感,但在预定电影上映时,它可以被充分用作首映、宣传活动或演员采访的背景。
对于需要不断接触媒体的业务性质而言,这是一个完全满足他们需求的必要且不可或缺的空间。 此外,不受容积率要求的开放和宽敞空间也是业主决定离开人口稠密的首尔的原因。 坡州的 ZipCinema 总部被设计为四层,高度15米,是法规所允许的最高限高。 咖啡厅和多功能厅位于一楼来迎接游客。 咖啡厅被设计成半沉没于地下1米,作为除主走廊外的下沉空间。 当工作室的工作人员在咖啡馆与编剧或其他访客会面时,下沉空间降低视线,可以带来舒适和安全感。 增高的天花板高度是其所带来的另一个受欢迎的效果。 毗邻咖啡馆的多功能厅则用来举办各种大型活动,包括首映和采访等电影发行活动。
同时,一楼以上的楼层则专供工作人员和编剧等工作室人员使用。 东翼多功能厅位于二楼,是个双层挑空空间,供员工休息放松或舒展筋骨。 空间的开放性也使其成为所有员工参加工作室每周例会的理想场所。 办公空间的布局和朝向是根据最大效率和效果所设计的。 例如,朝西的办公室使用高而窄的墙壁覆盖了一半以上的立面来阻挡午后的烈日。 墙壁犹如百叶窗一样,其角度方向有效地控制了阳光进入室内空间。 朝北和朝南的办公室坚持了建筑的整体设计理念,以保持一致和轻松的外观。 最能象征 ZipCinema 的空间元素被设体现在南立面。
喜欢在尺度合适的空间是人类的天性。这就是为什么我们会看到人们喜欢待在角落和舒适的空间,而不是宽敞的宴会厅。出于同样的原因,在办公室茶水间或楼梯平台上进行“饮水机对话”是企业生活中不可或缺的一部分。为此,南立面采用了“微”空间的概念。与以墙壁所定义的房间不同,建筑空间是通过将室外的阳台与室内的角落相融合而形成。 舒适轻松的空间氛围有助于员工在休息时远离工作场所的压力, 可以喝咖啡或进行友好交谈。四楼的一部分是专为编剧设计的,设有淋浴间、厨房和宿舍。让他们的创意思维可以在总部“生活和工作“。如果他们需要休息或呼吸新鲜空气,他们也可以轻松走到有休息区的屋顶。
项目图纸
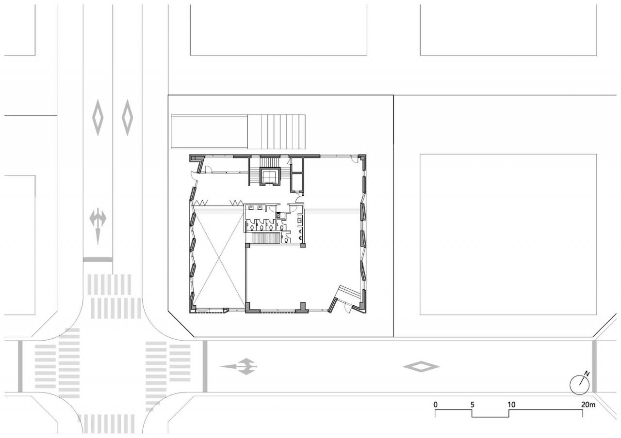
△一层平面图
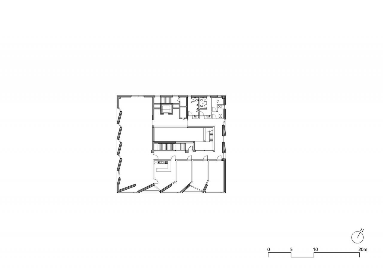
△二层平面图
△三层平面图
△四层平面图
△立面图
△立面图
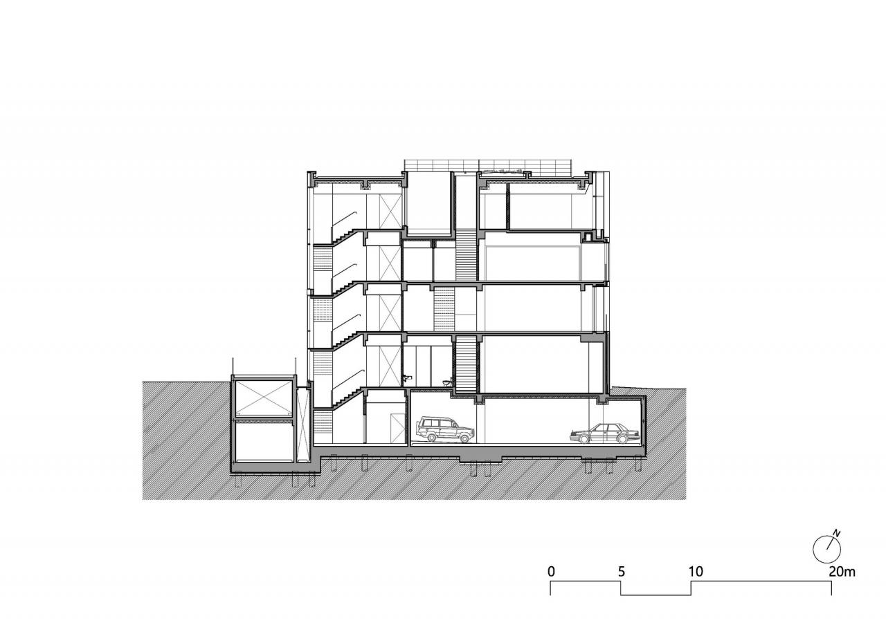
△剖面图
△剖面图
项目信息
建筑设计:poly.m.ur
面积:2503 m²
项目年份:2017
摄影师:KyungsubShin
主持建筑师:Homin Kim
地点:韩国

BIM建筑网






















