知者乐水,仁者乐山;知者动,仁者静;知者乐,仁者寿。
——《论语》雍也篇
多业态发展格局
本项目为凤凰谷·乐活小镇一期,凤凰谷·乐活小镇屹立于新乡市山、水、林、田、湖、草一体化生态城,占位新乡市后花园,位于凤凰山下、大运河畔、生态一体化新城核心区域。小镇积极倡导健康、环保、可持续的生活方式,以及自然、精致的生活态度,追寻生活本源。小镇整体规划中,将打造五大核心板块即旅居养生园、文化创意园、婚庆产业园、运动休闲园、特色农业园,五大产业融合共生,同时配备完善的基础设施及配套,成为多业态发展的南太行休闲旅居圣地。本项目位于小镇的旅居养生园板块。
△项目整体规划分析图
△小镇主入口
项目距离新乡市中心15千米,距离凤泉区政府4.2千米,项目环绕愚公泉、凤凰山景区,南侧为云龙山儿童公园及南水北调河,具有优越的生态宜居潜力,其背山面水的风水格局更是本项目得天独厚的地理优势及环境资源优势。项目住宅规划用地总建筑面积约16.5万平方米,包含商业、住宅、幼儿园、邻里中心等,住宅产品以洋房和低层住宅为主要类型。
△项目规划分布图
△一期项目鸟瞰实景图
慢行生态谷&流水别墅
智者乐山,仁者乐水。临水而居,自古以来都是人们追寻自然的诉求。场地北高南低,南北高差达14米,设计利用高差形成台地院落、台地别墅的理念,使空间层次丰富,景观视线延伸,洋房区形成“慢行生态谷”的特色景观体验;低层住宅区自北向南从邻里中心到商业地块酒店,以一条溪流贯穿始终,缓缓而下,打造出“流水别墅”的设计理念,私享生态景观,远离繁城与喧嚣,在此感受一份静谧。
住宅规划形态灵活曲折,富有韵律。低层住宅区与洋房区被生态谷和溪流分成若干组团,分区明确又不乏紧密联系。
康养社区
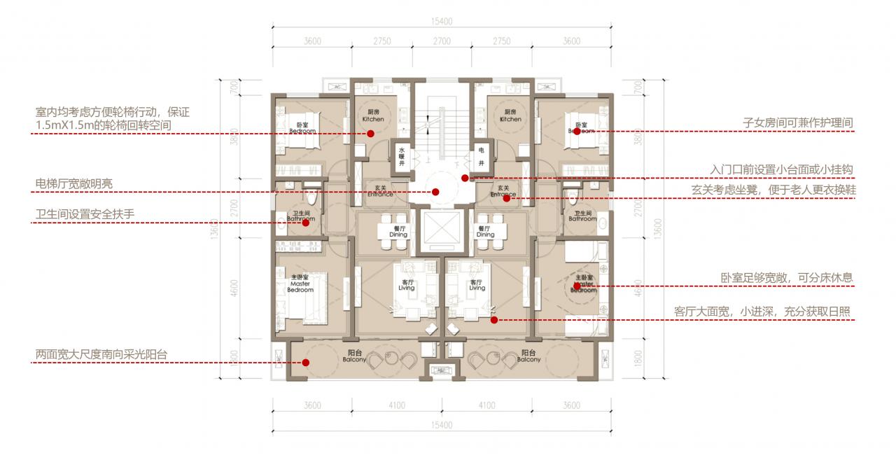
得天独厚的地理优势及环境资源优势为小区提供了便捷的交通和优良的自然环境,通过对老年人群体心理和生理研究,我们在规划布局、建筑、户型等方面进行适老化精细化设计。在规划上分区明确,功能完善,以低多层建筑为主,在所有住宅建筑及配套设施中设有电梯,在所有区域布置无障碍步行道、无障碍防滑坡道等。
△适老化户型设计
△社区邻里中心
社区配有康娱设施——邻里中心,内设有社区图书馆、社区食堂、老年大讲堂、老年康复健身室、老年活动室以及休闲茶座等,保证老年人的身心健康;景观上结合慢行生态谷中的步行园路、流水别墅水系景观、健身和养老服务设施场地、四季分明的植被绿化、人性化的导视系统等,共同打造康养花园社区;在空间规划上,从建筑公共空间、室内空间、便捷设施等方面充分考虑了老年人的居住体验。
海绵城市
通过海绵城市建设,综合采取“渗、滞、蓄、净、用、排”等措施,将70%的降雨就地消纳和利用,即年径流总量控制率不低于70%。规划注重可持续雨水管理,通过收集净化雨水来冲洗广场、停车场,浇灌绿地和为景观水体补水;通过绿色基础设施与社区开放空间、道路、建筑和水景观进行整体性规划设计,减少雨水设施的占地面积和成本,提高雨水系统的总体效益。
△海绵城市方案分析图
东方雅韵
采用的是新亚洲及中国风建筑风格,并结合汉唐传统建筑风格特点,通过对传统文化的理解和提炼,将现代元素与传统元素相结合,以现代的审美需求来打造富有传统的建筑韵味。
外立面整体采用三段式处理手法,由石材、真石漆、深灰瓦等作为立面的主要装饰材料,增加建筑的庄重感。中式错落的大挑檐屋顶、以及墙面浮雕的中式元素,表达对清雅含蓄、端庄丰华的东方精神境界的追求,体现历史风貌特点。
结语
凤凰谷乐活小镇一期项目通过简洁精炼的建筑语言,描绘了具有中式雅致内涵的诗意居所。最大化的保留了原生态景观,以绿色技术实现天然能源的合理循环,让建筑与自然进行有机对话,以绵邈沉丽的生态景致,勾勒出静谧、闲适的山水庭院。揽一景之芳华,筑一城之乐居。
项目信息
项目名称:凤凰谷乐活小镇(云龙山)一期
项目规模:16.5万㎡
业主单位:诚城集团
设计单位:天友设计集团地产事业部郑州分公司
设计内容:建筑设计
项目负责人:葛超
设计团队:李涛、张成有、仝锁、胡明月
设计时间:2017年
建成时间:2021年
景观设计:深圳市城市空间规划建筑设计有限公司
项目摄影:心造文化

BIM建筑网























