阿姆斯特丹英国学校成立于1978 年,为900名3至18岁的儿童提供英国国际教育。学校位于阿姆斯特丹Oud-Zuid,由三个部门组成:小学、中学和高中。学校遵循英国国家课程,学生在关键阶段1和2中参加 SAT考试。在高中,学生参加 GCSE 和 A-Level考试。学校作为英国海外学校被英国政府认证,是英国国际学校理事会(COBIS)的成员。
在2016 年,Atelier PRO 与 Hoogevest 建筑事务所和 Buro Sant en Co 一起赢得了为阿姆斯特丹英国学校建造新址的委托。英国学校已经发展壮大,在阿姆斯特丹的三个不同地点都有校区。但它始终保持着将所有学生聚集在一个地方——理想情况下,一个将性格、历史与充足的户外游乐空间相结合的地方的愿景。
为了将这一愿望变成现实,学校收购了阿姆斯特丹的前监狱之一Havenstraat 6 。这座建筑是在 1888 年至 1891 年间按照政府监狱建筑师 W.C. Metzelaar 的说明设计和建造的,代表了学校对新建筑的愿景。
新址加强了学校卓越的声誉及其在英国国际教育前沿的地位。学校和建筑师在规划和设计方面富有野心,创造了以原创和富有想象力的方式激发学习和快乐的建筑。学校室内和室外都美丽而独特。建筑以无缝的最先进技术和一流的支持服务为支撑,弘扬了学校高质量、积极、以学生为中心的学习方式的特质。
从我们的角度,我们希望这座建筑成为一个被植物环绕的充满荣光的城市街区。通过绿色的灌木篱墙,我们使人回忆起旧的回忆墙。在它后面,是一个能够鼓励人们在树下休息,做适合任何学校的游戏和运动的区域。
我们将一个荒凉的监狱转变成一个富有表现力的儿童世界,在这里,四个独立的学校区域被统一成一个整体。英国学校的DNA是明显的。每一部分都表现出特定性格,与其年龄组学生相匹配。而这些计划并不完全适合现有建筑,这就是添加新结构的原因。
原来的建筑有四个侧翼,因此不难想到为每所学校都分配一个侧翼,从而使每所学校都可以将旧部分与一个新部分合并。通过利用每所学校翼楼的底层,为该年龄组类别的特定个人身份和性格奠定了基础。这在新旧之间形成了挑衅性的对比。
教室在旧建筑的尺度和结构内被很好地组织,这有助于加强新建筑的潜力。智能结构。学习环境的新区域是面向未来和可持续的智能结构设计。它们以在社交动态区域和安静的教室之间存在自然流线的分区方式进行分区,以促进深入思考和专注。
每个年龄段的组别都有自己的空间来支撑社交活动,其中充满了英国学校熟悉和安全的氛围。一所学校有三个身份。首先一所英国学校被发展起来,而与此同时,每所独立的学校都能在一个框架内保持自己的个性。
项目图纸
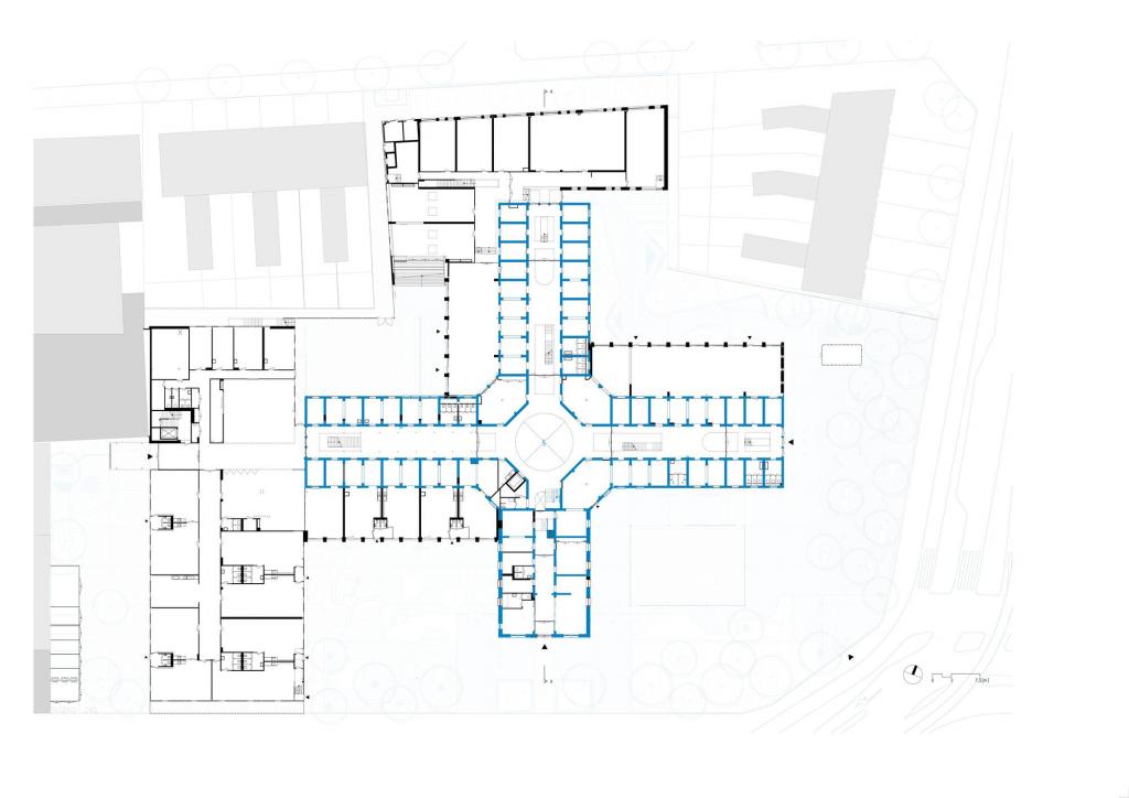
△总平面图
△一层平面图
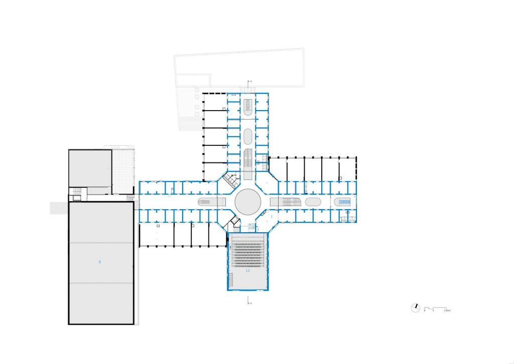
△二层平面图
△三层平面图
△剖面图
项目信息
建筑设计:Atelier PRO architects
面积:14123m²
项目年份:2021
摄影师:Eva Bloem
厂家:Aesy Liften,Bosan,Forbo,Fuse & Change,Houtmolen,Hutten metaal,Kawneer,Mosa,ODS Jansen,Orona Pecres,Philips,Van der Wijngaard,Vande Moortel
主持建筑师:Dorte Kristensen, Lisette Plouvier, Evelien van Beek
室内建筑师:Amal Habti
项目主管:Coen Bouwmeester
设计团队:Alba Calvo Balcells,André van Veen,Bart Dessens,Corine Jongejan,Hatice Kilinc,Priet Jokhan,Raymond Wernet,Tobias Thoen
项目资金:€23.000.000

BIM建筑网




























