秦厂村党建综合体位于河南省焦作市修武县城关镇秦厂村党群活动中心东侧,是秦厂村党群活动中心建筑群项目的二期。相较于西侧党群活动中心非营利性质的社区服务功能,东院引入了经营性质的在地农产品和文创产品展销、餐饮、咖啡厅等社区小微商业及图书馆、画廊和体育设施等文化娱乐业态,希望以空间为载体和“发生器”,为村民提供潜在的就业岗位和创业机会,探索一种“可持续”的、以乡村公共建筑建设带动乡村经济、文化振兴,为社区注入活力的模式。
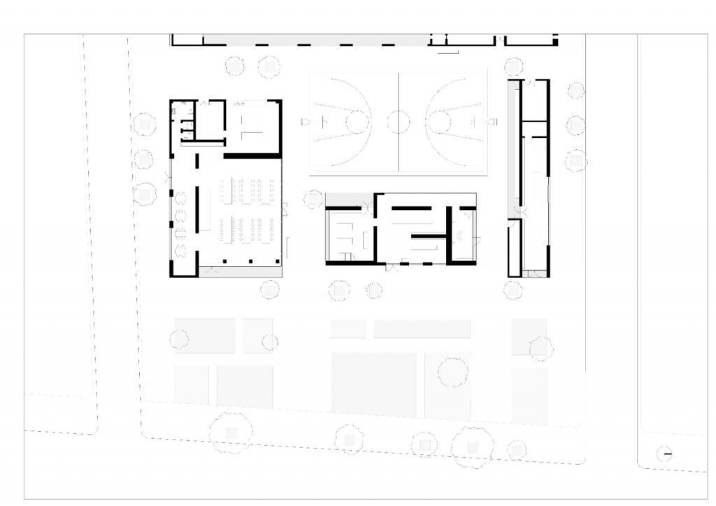
东侧建筑群延续了西侧以院落为中心的空间布局策略。相较于西侧党群活动中心回廊院的整体性、仪式感和对称性,东院布局更日常、轻松,建筑体量被打散为三栋一、二层高的“小房子”,采用不对称布局,错落分布于场地的三边,延续并强化街道界面。内部自然围合而成的三合院落与西侧回廊院产生互动,延续了西侧场地的多孔性、可达性:小建筑单体间留有多个近人尺度的院落入口,方便村民到达、停留或穿行。庭院形成的多功能室外场地也为不同年龄层的村民提供了聚集、社交和活动空间,是对西院富有仪式感院落的补充、平衡和丰富。
体量最大的单层建筑位于东南角,临近村主街;平日这里是对外营业的村民大食堂,也可用于举办婚宴、寿宴等大型活动。东侧二层小建筑兼具书吧、咖啡厅和展廊功能,面向街道和庭院双向开门,孩子们课余时间可以来此通过智能系统扫码借书阅览,游客也可以在咖啡厅小憩。北侧条形的单层建筑是展览、销售当地农产品和文创产品的商铺,对北侧、东侧的村镇街道开门营业;在其南侧面对院落设有半室外拱廊和长凳,既可作为篮球场的观众席,也是室外大型活动的天然舞台背景。
在修武调研的过程中,我们发现县里所有的公共篮球场无论条件优劣,都对村民(特别是青少年)充满吸引力;除极端恶劣的天气外,村里的篮球场总是人声鼎沸。因此在设计初期,我们也建议在院落中保留篮球场这一功能。项目落成后,由平面设计师精心打造的彩绘篮球场平时极受青少年欢迎,北侧的长凳、西侧和东侧建筑的二层屋面公共平台则自然形成观众区,提供全方位“观战”角度。此外,户外篮球场也成为村里最重要的公共活动场地,可举办婚庆典礼、贺寿仪式及户外流水席,供全村人同时进餐。
建筑采用现浇混凝土结构。与西侧党群活动中心相呼应,秦厂党建综合体也延续、再现了当地传统半地下民居中常见的“拱”这一意象,并基于此几何原型和模数抽象、衍变,形成适应不同建筑功能和空间。
项目图纸
△场地平面图
△一层平面图
△二层平面图
△餐厅平面图
△商铺剖面图
△展廊剖面图
项目信息
项目地址:中国河南省焦作市修武县城关镇秦厂村
完工时间:2021年
建筑面积:892㎡
项目业主:河南省焦作市修武县城关镇秦厂村民委员会
建筑及室内设计顾问:Studio 10
主管合伙人:周实
项目团队:Cristina Moreno Cabello,黄嘉颖,黄子夏,莫纯煇, 郑鑫, 包嘉晓(项目助理),陈菲菲(项目助理),汤鸣(项目助理),贾若希(实习)(首字母拼音序)
特别顾问: 韩帅君,陈鹏飞,薛海涛
平面设计顾问:SURE Design
灯光设计顾问:深圳玛特照明设计顾问有限公司
施工图团队:郑州开物景观规划设计有限公司
施工团队:安徽丰阳建设工程有限公司,河南创辉建筑装饰工程有限公司
摄影师:张超
Studio 10微信&微博&Instagram: studio10design

BIM建筑网



































