风之诊所是位于泰国乌汶府(Ubon Ratchathan)市中心的一家美容诊所。诊所以钢结构作为主要结构,以玻璃砖作为主要外墙材料。
Bas 医生需要这栋建筑能够吸引路过这个路口的路人,并且建筑不能太热。由于这座建筑面向西面,我们需要保正自然采光和“玻璃砖”项目内的空间。因此,我们选择玻璃砖作为主要材料,因为它可以解决我们的许多问题,我们也希望我们的项目具有自然采光区域。
项目区域内的树木需要自然光,同时内部又不能很热。在下午,阳光中的闪光会照到建筑上,使建筑可以像业主需要的那样引人注目。
这个项目的设计或许算是我们尝试新想法的实验,它可以将有创造性的想法和业主的主要需求联系在一起。顾客进入诊所并且感到舒适,他们不会觉得自己来的是一间普通的诊所。
我们希望当他们进入这个空间、这个项目、树木和花园连接的空间时能够感到放松,使这个建筑内外都很出色,成为一个很好地满足客户和业主需求的新美容诊所。
项目图纸
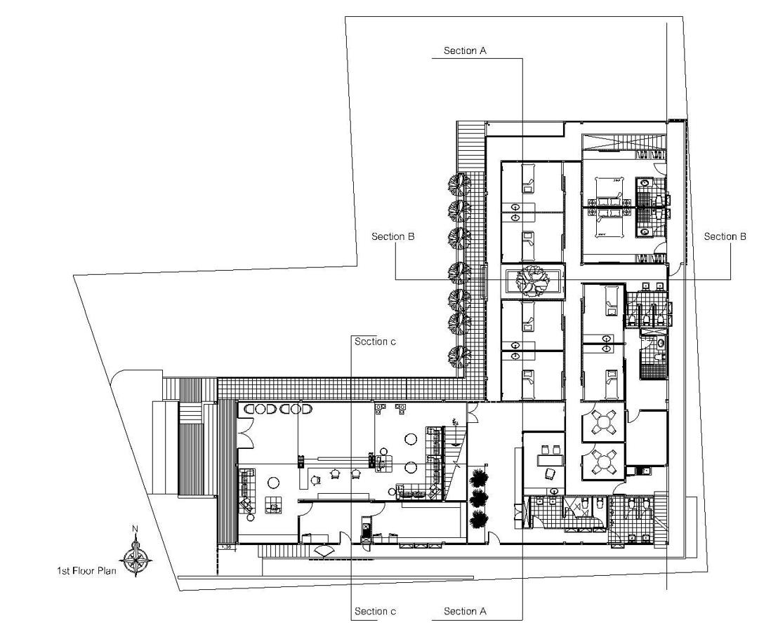
△一层平面图
△二层平面图
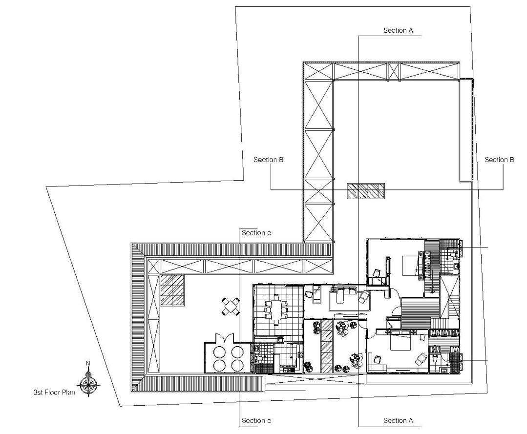
△三层平面图
△四层平面图
△剖面图
项目信息
建筑设计:Sute Architect
面积:1200 m²
项目年份:2021
摄影师:Issira Tonehongsa
厂家: COTTO, SCG, bangkokcrystal
地点:泰国
微信公众号:xuebim
关注建筑行业BIM发展、研究建筑新技术,汇集建筑前沿信息!
← 微信扫一扫,关注我们+

BIM建筑网







































