△远看©唐徐国
△远看1©苏圣亮
△远看2©苏圣亮
△远看2©唐徐国
△远看3©唐徐国
△远看A©唐徐国
△远看B©苏圣亮
△远看B©唐徐国
形式是建筑学最重要的内容之一,也是建筑师表达设计理念的最直接的建筑学载体。建筑形式生成的驱动力,由诸多因素共同决定。在建造技术革新缓慢的当下,对于文化的探索和表达,是近几年来国家战略中迈向文化自信的重要探索。
模山范水
在中国古代,文人对于理想世界的想象一直是通过多种艺术手段进行连续的刻画和探索,从文学到山水画再到园林,从文字到图像再到建筑空间。人与自然的关系,是中国传统哲学中比重极大的观念。这些观念的影响之大,一直潜藏在我们的血液之中,以至于我们对山、石、林、泉有着西方文化不曾具备的与生俱来的感受力和鉴别力。
△“模山范水”的设计研究©唐铭
△《东山丝竹图》要素的提取©唐铭
△洞房草图©唐铭
△洞房效果图©唐铭
△洞口©苏圣亮
△俯瞰©唐徐国
于是,“模山范水”是传统艺术创作的基本手法。2015年建成的“深深·深宅”是我第一次意识到这种观念的潜藏。2016年,我在某高校带毕业设计时,便带领学生做了这样一个“模山范水”的设计研究。模范的图像原型便是山水画——这个被艺术精炼过的理想世界。建筑师的作为则是将原自然之物的形式规律反馈并应用到实际的物理实体当中。
△复现©唐铭
△阁房草图©唐铭
△阁房效果图©唐铭
山涧房
2018年,终于有机会将这个原型研究的一部分进行了实际的建造,便是山涧房。基地位于浙江省桐庐县一个山涧之谷中,背靠山坡,面向一条溪涧。在整个山涧房的构思过程中,除了如何“拟山”这个形式问题之外,建筑形式承载了什么样子的意义空间是思考的重点。在一个类似于山体的非规则形态中,如何组织空间,功能和流线并非是重点,而是建筑“拟山”,人居于“洞”中的场景塑造是研究的基本构想。混凝土框架结构是最适合在地营造的建造体系,以至于形成高低错落的体量关系,是原型研究中的逻辑和结果。
△基地鸟瞰1©来建筑
△基地鸟瞰2©来建筑
△局部©廖启贤
△局部©唐铭
△局部2©廖启贤
△局部2©唐铭
△局部3©苏圣亮
△局部9©苏圣亮
三远之意
在实际项目的落地过程中,由具体的使用需求,场地中形成了三栋建筑单体,同时也是三个不同姿态的“山”。因场地红线的限制,呈三角形布局。前山平缓,横向舒展。后山高耸,扑面而来。侧山则卧于一侧。角落一圆形“月塘”,成为实际功能中的泳池。自河对岸远望,前山后山形成“深远”之势,自内庭仰看后山,如“高远”而望,气势突兀,山势逼人。对山而望,三个人造山同背后自然远山层峦叠嶂,以崇山复岭,密树深溪的景象形成“平远”之意。山涧之间,遥望一间木屋,屋下仿佛有瀑布跌入溪涧,是画意中点睛之笔。
△立面A©苏圣亮
△立面A©唐徐国
△立面A2©唐徐国
△立面C©苏圣亮
△立面C©唐徐国
△立面C2©唐徐国
居于洞穴
山可游而洞可居,山形构成之后,山之空处是安放身体的庇护空间。意为“居于洞穴”,洞穴之中,用瓦片来产生居所的暗示。为了让此意变得妙趣,在侧山的雅集之处将瓦片内外反置,将树影投于吊顶,产生一种内外置换的布景。恍惚中,内与外身不知何处。
△鸟瞰1©苏圣亮
△鸟瞰1©唐徐国
△鸟瞰2©苏圣亮
△鸟瞰2©唐徐国
△室内A©苏圣亮
△室内A1©唐徐国
△室内A2©唐徐国
△室内B©苏圣亮
△室内B©唐铭
△室内C1©唐徐国
△室内C2©唐徐国
△室内餐厅©苏圣亮
△室内雅集©苏圣亮
△室内雅集2©苏圣亮
尾声
山涧房已然建成数年,对于自然之物本身的模拟和转译是建筑师形式操作的最直接操作,但同时不免过于形式主义,除了单纯的形式表现,建筑需要承载更加丰厚的艺术修养,才是内秀的建筑艺术。克制的形式,肆意的情绪是更加充沛的建筑表现。但至少,从形式出发,是建筑师的起点。
△树房草图©唐铭
△树房效果图©唐铭
△亭房草图©唐铭
△亭房效果图©唐铭
△亭内©苏圣亮
△庭院1©苏圣亮
△庭院1©唐徐国
△庭院2©苏圣亮
△庭院2©唐徐国
△庭院3©苏圣亮
△庭院3©唐徐国
△庭院4©苏圣亮
△庭院6©苏圣亮
△五房要素提取©唐铭
△沿路看©苏圣亮
△沿路看2©唐徐国
△元代 《东山丝竹图》
△云房草图©唐铭
△云房效果图©唐铭
技术图纸
△总平面图
△前山地下一层平面图
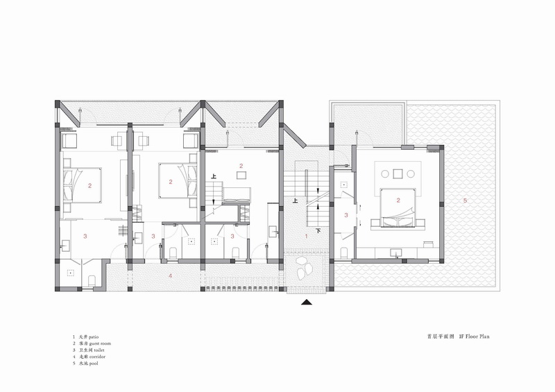
△前山首层平面图
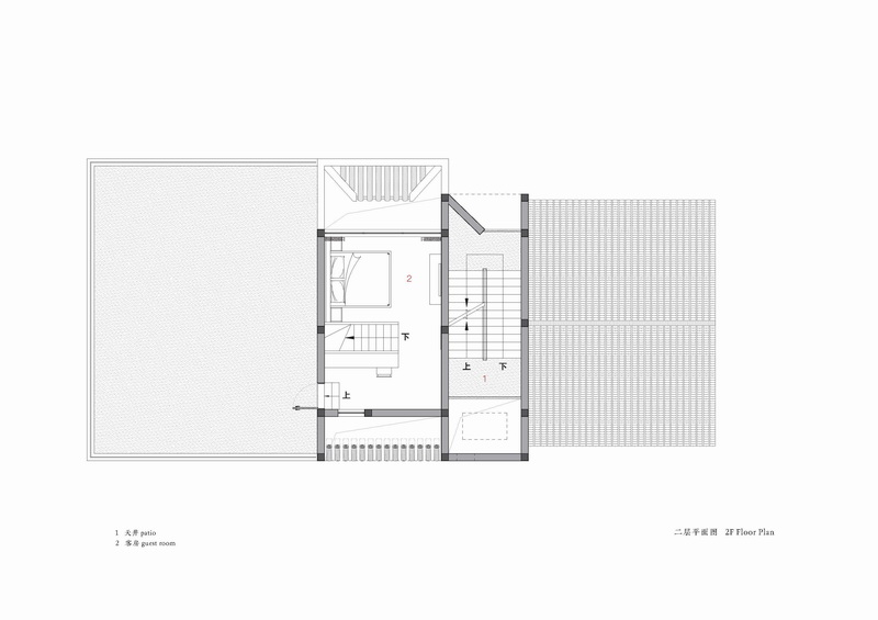
△前山二层平面图
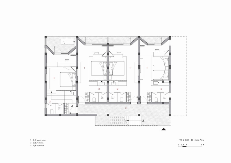
△后山首层平面图
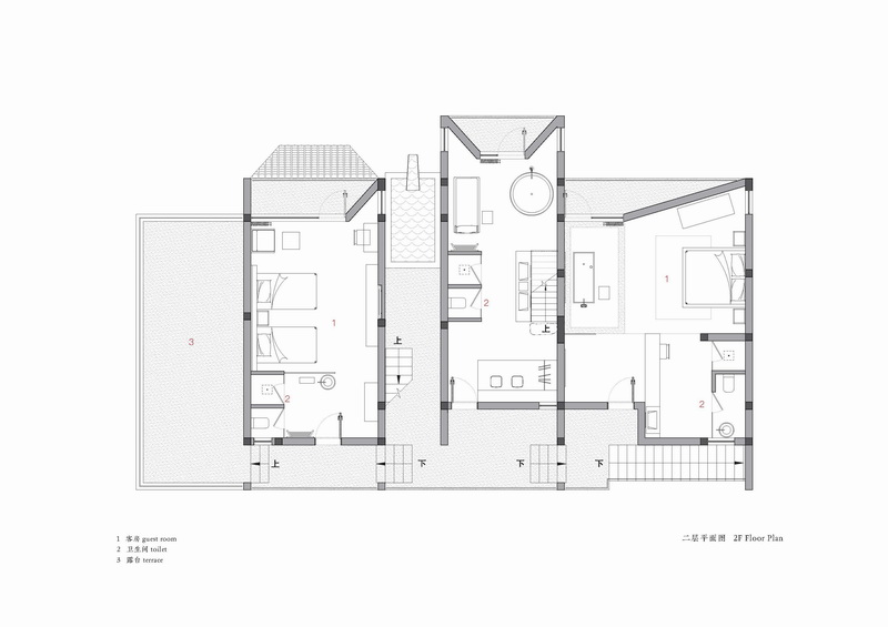
△后山二层平面图
△后山三层平面图
△侧山首层平面图
△侧山二层平面图
△前山立面图
△后山立面图
△侧山立面图
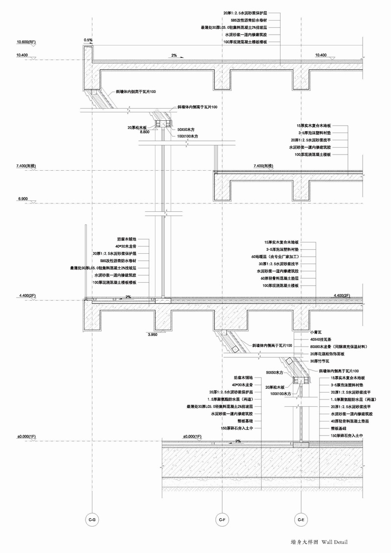
△墙身大样图
项目信息
项目名称:山涧房
业主:桐庐县富春江镇山涧房民宿
设计方:来建筑设计工作室
项目类型:民宿酒店
地理位置:浙江省,杭州市,桐庐县,富春江镇
主持建筑师:马岛
方案原型研发:唐铭
设计团队:唐铭,谢佳辰,康瑾, 陈峻,朱松
摄影: 苏圣亮、唐徐国
结构:钢筋混凝土框架结构
用地面积:1541 m²
建筑面积:1256m²
设计周期:2017年1月-2018年9月
建设周期:2017年10月-2019年1月

BIM建筑网















































































