医务人员临时空间 ( TPHW ) 是一个模块化的临时住房项目,由墨西哥建筑与技术办公室在新冠疫情大流行的背景下创建,并得到了当地及全球公司作为捐助者的支持,此外还有法国-墨西哥工商会( Franco-Mexican Chamber of Commerce & Industry )、国家林产品进出口协会( National Importers and Exporters of Forest Products Association )和国家木材与家具工业供应协会( National Suppliers of the Wood and Furniture Industry Association )等。在许多城市,成百上千的新冠病毒医护人员在完成轮班后,睡在他们的汽车或其他不安全的空间中,试图避免回家或乘坐公共交通工具,使得其家人与所生活的社区暴露在传染病中。
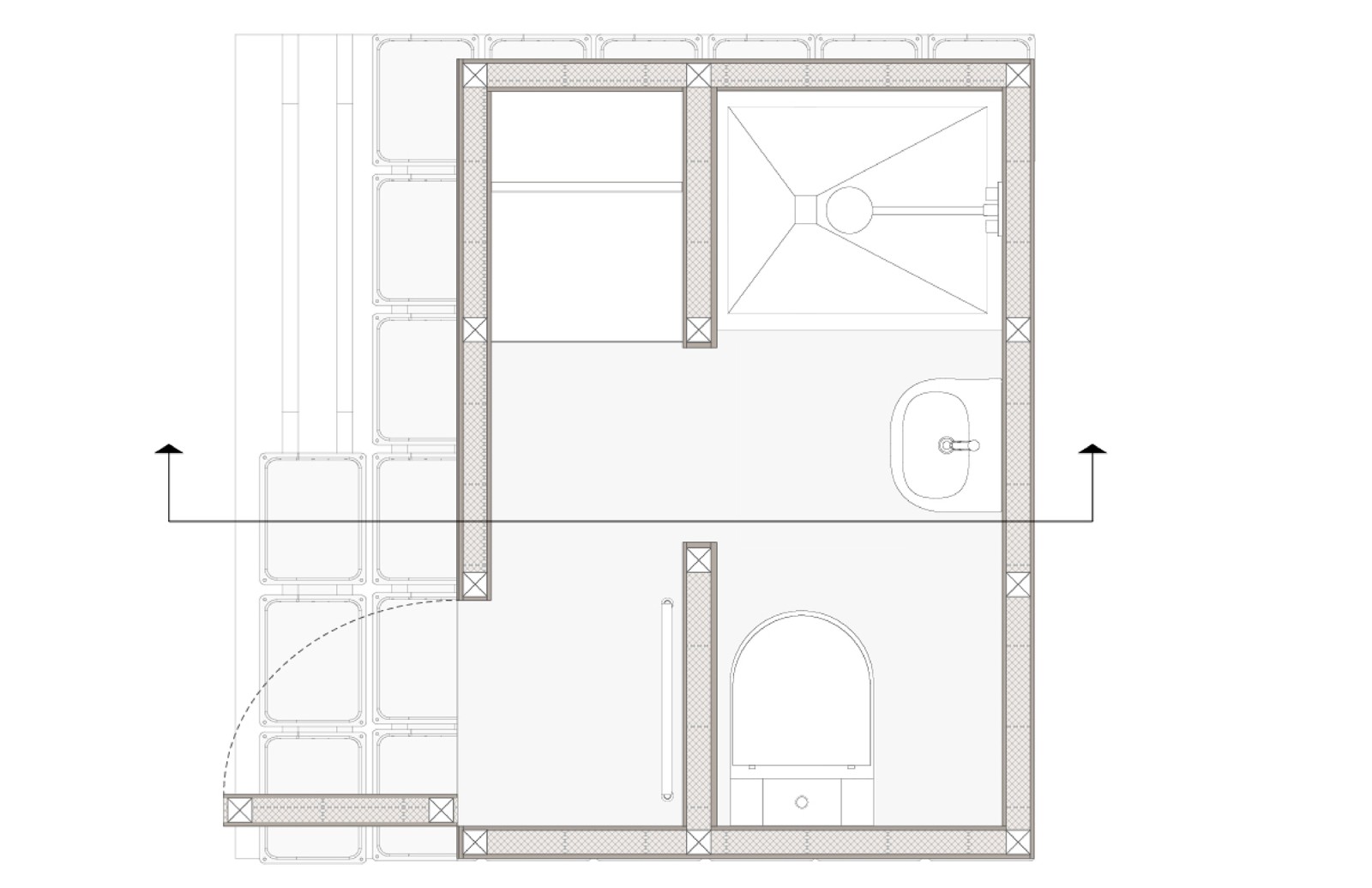
Revolution 设计了一个由预制木构和可生物降解塑料制成的模块,该模块包含一间卧室、一个淋浴间、一个水槽、一个厕所、一个氯化水箱和一个 7 平方米的太阳能/电加热器。这些模块价格实惠、易于组装,并且可以在消毒后回收或储存,以备日后紧急情况使用。
这种模块化空间非常适合户外安装,例如安装在医院大楼的空停车场。该设计旨在提供自然光、私密性和安全、沉静和可供冥想的室内空间,以响应与新冠疫情大流行作斗争而疲惫不堪的医护人员生理与情感需求。
Revolution 对新兴国家的应急建筑和人们可负担的微型住房特别感兴趣。他们的主要项目包括人民大厦(在墨西哥城金融区中心开发经济适用房的关键项目)和为受 2017 年 9 月在墨西哥奥奎兰( Ocuilan ) 发生 8.1 级地震影响的人们建造临时住房的总体规划。第一个临时空间已经捐赠给墨西哥城的红十字会中心医院。
项目图纸
项目信息
建筑设计:Revolution
面积:6 m²
项目年份:2020
摄影师:LGM Studio – Luis Gallardo
厂家:Calorex, Comex, Ecolana, Lumin, Tienda Spax
主创建筑师:Andrés Bustamante
总体协调:Raúl Alfaro Segovia
设计团队:Zaira Bernal, Ángel Vichi, Erick Martínez, Pamela Canseco, Jorge Rivero, Jayanti Juárez, Joshua Lee, Kilian Brudloff, Carlota Schletweinn, Giorgia Agugiaro, Cosme Álvarez
技术协调:Zaira Bernal Ramírez
医疗与健康问题顾问:Ángel Edgar Germán Álvarez
募捐:Comex – PPG, Ralph Wilson – Wilsonart, Cal-O-Rex – Ariston Thermo, Lumin Uruplay, Helvex, Difer Trade – Spax, Decathlon, Operación y Conservación de Autopistas Concesionadas – Egis
地点:墨西哥,Tijuana

BIM建筑网





































