Bohinj 酒店,前身为 Kompas 酒店,是在过去30年中自发建造的,建造时并未考虑过其最终外观。它建在高原上,可以欣赏到 Bohinj 湖、群山和 Janez Krstnik 教堂的景色,给人以特别的亲切感。酒店的新业主决定进行彻底翻修,包括结构加固、室内翻新和可持续翻新。
建筑基本体量被木质框架的新结构包裹着。除了建造新的阳台和改变整体体量外,该框架还为该地区频繁发生的地震提供了结构保护,并整合了排水沟、电线、避雷针和疗养设施。落叶松木覆层覆盖了其他新的外部元素,赋予酒店自然的外观。
入口立面由扩建部分补充,扩建部分包括一个新的、更大的双层通高大厅、一个入口天篷和餐厅。旧建筑的三角形山墙屋顶在入口立面上有可辨认的元素,这激发了三角形元素的新组合,创造了与建筑自然环境中的山顶的对话。立面和新的建筑元素的灵感来自当地乡土建筑的细节和工艺。
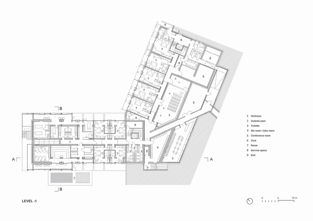
室内由69间客房组成。这些房间在图案、纹理和家具细节上具备一定的本土特色。它们大小各异,从双人间、三人间到带全景窗户和阳台的家庭间。长长的公共走廊代表着穿过 Bohinj 干草堆成的名为“ toplar ”的建筑。
这些斯洛文尼亚手工艺的传统纪念碑矗立在酒店周围的村庄。通过这些独特的,仅现存于斯洛文尼亚的乡土建筑,为客人提供了步行到房间的独特体验。这种几何形态,在地毯、天花板和墙饰面上重现,不仅是一种设计参考,也是一种警示。这既是外国人眼中斯洛文尼亚的特色,也是当地人亟待保护的文化遗产。每年,这种传统建筑的一部分就会消失,它们经常自发倒塌。
公共区域包括一个两层入口大厅,一个餐厅和早餐室,一个带有传统陶土炉子的复古小酒馆,一个小的会议厅和带有酒吧的俱乐部。座椅,长椅,窗帘,室内装潢,甚至灯具都是为这家酒店特别设计和诠释的。灯光类似于树枝,给人一种非常亲切的光感,椅子是用回收塑料瓶制成的。
落叶松木材是墙壁、家具和天花板的主要材料,所有的细节都受到当地民间传统的启发。公共区域的地面由平台构成,石材呈浅灰色。通往入口和酒店大堂的黑色石头痕迹,仍然留在传奇的酒店猫马克斯( Max )的记忆中,他在上一家酒店因装修而关闭后,消失于一个未知之地。
酒店的织物、玻璃和墙壁上的图案代表了四个勇敢男人的剪影,他们在1778年8月26日第一次征服斯洛文尼亚最高峰——特里格拉夫( Triglav )峰。他们的故事是贯穿整个酒店的一条线索,象征着勇气和胆魄。如同特里格拉夫,它代表了 Bohinj 的强烈象征和身份。初次抵达后,客人将伴随着这样的故事回到过去,找寻当地的根源和身份,在回顾历史和承载在地精神之间循环往复。
酒店还拥有一个小型健康中心,该中心设有带热水的室外游泳池和草坪;旧游泳池被大型壁炉和社交活动空间所取代。这鼓励客人在湖中游泳,由于河水的流动性,每年至少可换水三次,被公认为是最干净的水域之一。为了感受丘陵和星空的夜晚之美,酒店的灯光设计相当克制。外部设计考虑了特里格拉夫国家公园的指导方针与设计准则。
酒店翻新的一部分是能源系统的再造。在规划能源使用时,要考虑到高效使用能源的严格规定,并达到 A2 级符合能源标准的相关规定。地源热泵作为热源,在公共区域和一些房间有地板辐射供暖或对流器的帮助下供暖和制冷。酒店拥有中央控制系统,还可调节供暖和制冷量。
所有照明都是基于节能 LED 技术,灯光通过传感器工作,从而限制了照明时间。所有内置设备在消耗量方面属于最低级别,而且集中设计,特别是按照现代的防止光污染指导标准设计。由于酒店位于特里格拉夫国家公园的中心地带,防止光污染更为重要,因为它保护了生物多样性,并使所有的夜行动物与其他生物共存。
技术图纸
项目信息
建筑设计:OFIS Architects
面积:5800m²
项目年份:2021
摄影师:Ziga Intihar,Ales Gregoric,Andras Boros
设计团队:Rok Oman, Špela Videčnik Borut Bernik, Rok Vrenko, Giulia Sgro
客户:Merlak investicije and Alpinia
结构设计:Milan Sorč, Project PA d.o.o.
机械设计:Matej Jelen, Bambi d.n.o.
电气设计:Bojan Kralj, Pro-elekt d.o.o.
火灾安全:Andrej Fojkar, Fojkarfire d.o.o.
厨房技术:Gregor Dojer IXA d.o.o.
结构物理:Matjaž Zupan
声学设计:Saša Galonja
平面设计:Futro
建造与手工艺:Tosidos d.o.o. & Riko d.o.o.
室内承包商:Svea d.o.o
木工:Permiz d.o.o.
电气安装:Eurolux d.o.o.
机械安装:NKM d.o.o.
照明:Arcadia d.o.o.
椅子:Donar d.o.o., Stolarna d.o.o.
陶瓷艺术:pečarstvo Tomaž Štupar s.p.
壁炉:pečarstvo Hrovat Jurij s.p.
窗户:Gašper trženje d.o.o.
墙纸:Hamler d.o.o
康养:Spa2O
游泳池:Remax d.o.o
景观:Rade Oblak
红酒吧:Drugačno pohištvo d.o.o.
天然石制品:Kamnar d.o.o.
国家:斯洛文尼亚

BIM建筑网






































