基地南面是高尔夫球场,北面正临住宅区的街道。该场地南窄北宽,与周边文脉不和谐。为了将南面的景色引入房屋内部,我们选择打开南立面,并通过假墙和百叶窗的设置,使每个开口框架中都包含这条视觉通廊。它们不仅在视觉上强调了水平框架的存在,而且还控制了进入的自然光量。
在面向住宅区街道的北立面,以及面向其他场地的东、西立面,我们决定尽量减少开口。建筑的北立面被分为3个部分,这种划分方法避免了因开口较少而导致的单调性。在直接面向街道的墙面上设置一个狭长的开口,以遮挡外面的视线,同时使住宅区的视野更开阔。
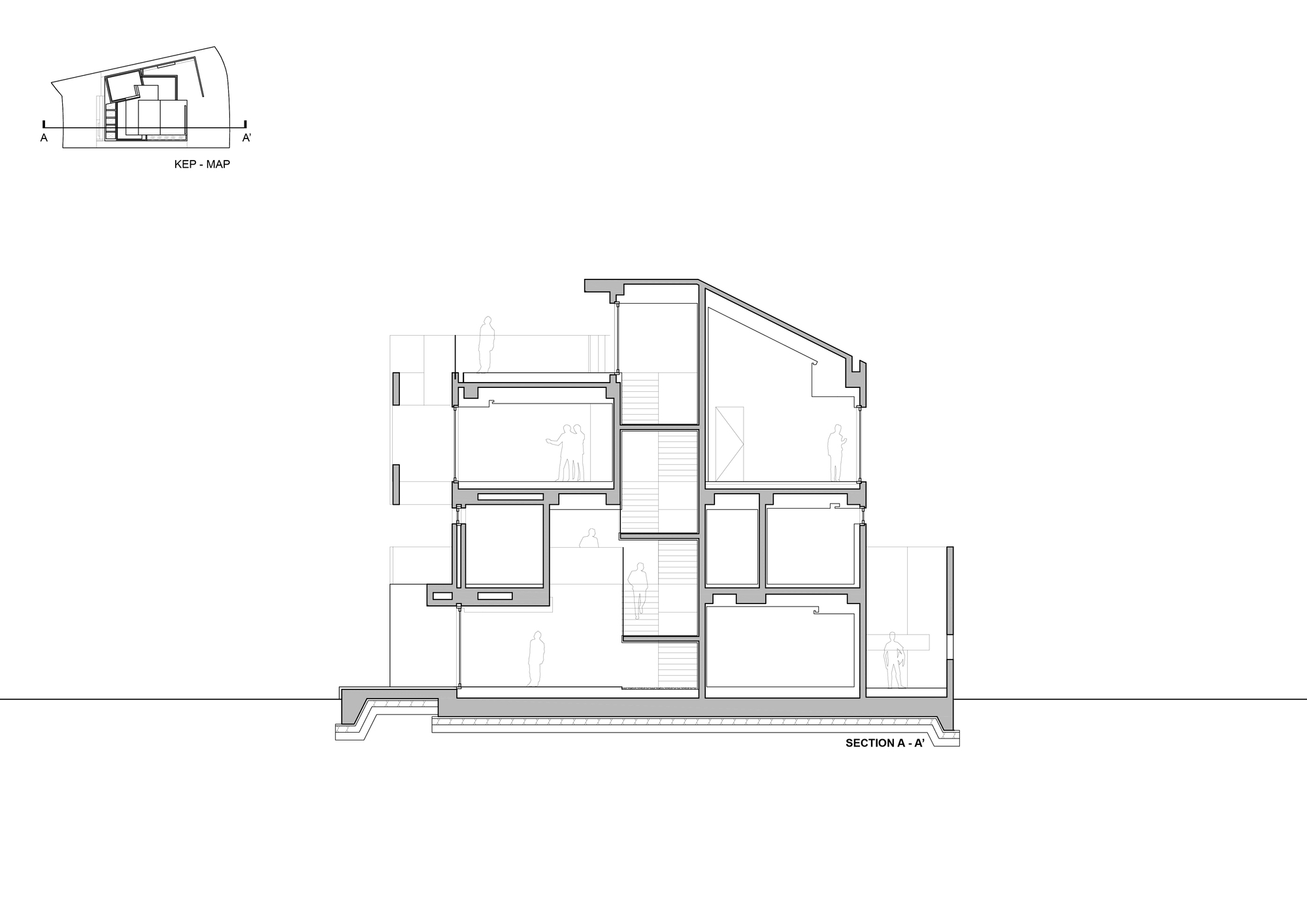
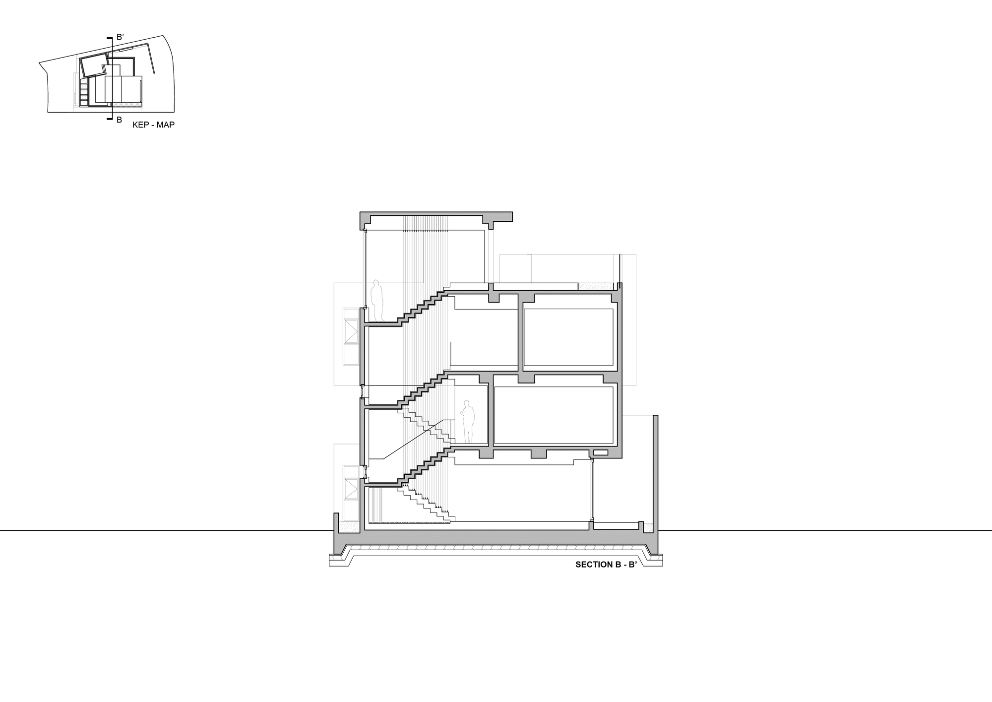
建筑北立面的设计与街道联系十分紧密,但穿过入口,到达客厅后,便能看到南面开阔的高尔夫球场,以及背后垂直展开的楼梯空间。
这种视觉空间上的戏剧性转变给居民带来了不确定的体验感。南面宽阔的水平全景落地窗带来了自然的宁静感,而垂直开放的楼梯空间则给家人们更多的交流机会。每次上下楼梯,视线高度的变化与楼梯空间中不同位置、不同大小的开口相互作用,都给人以微小而多样的外部视觉体验。
项目图纸
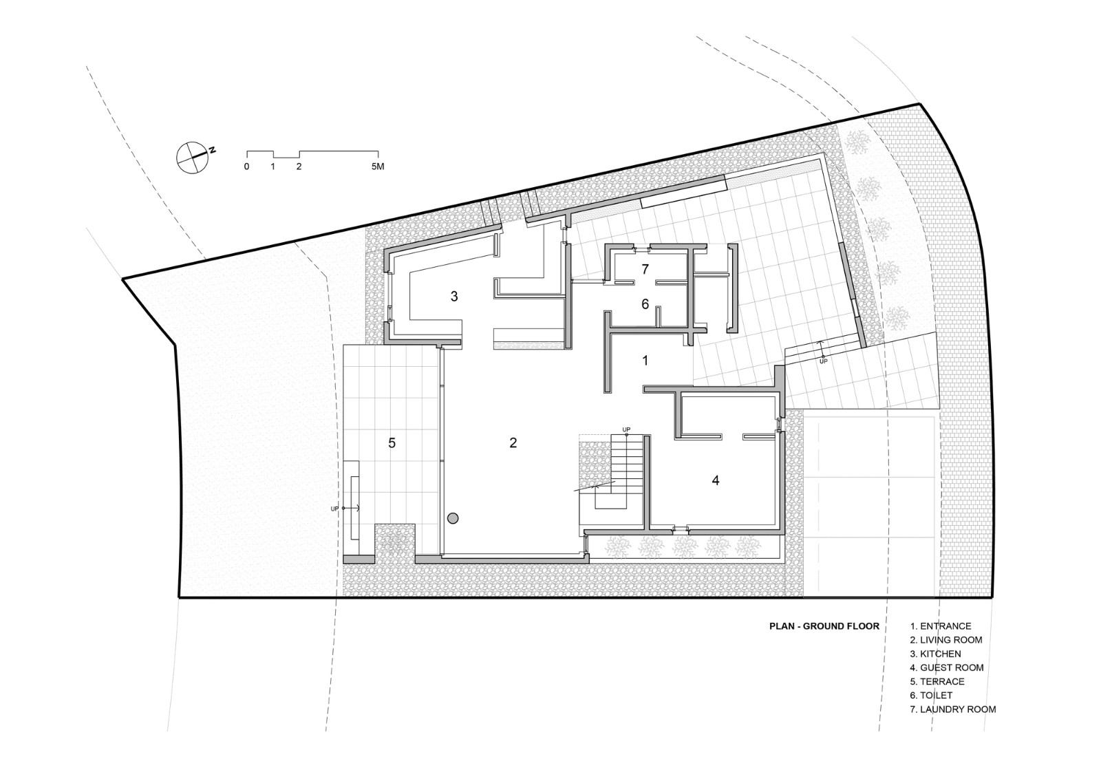
△一层平面图
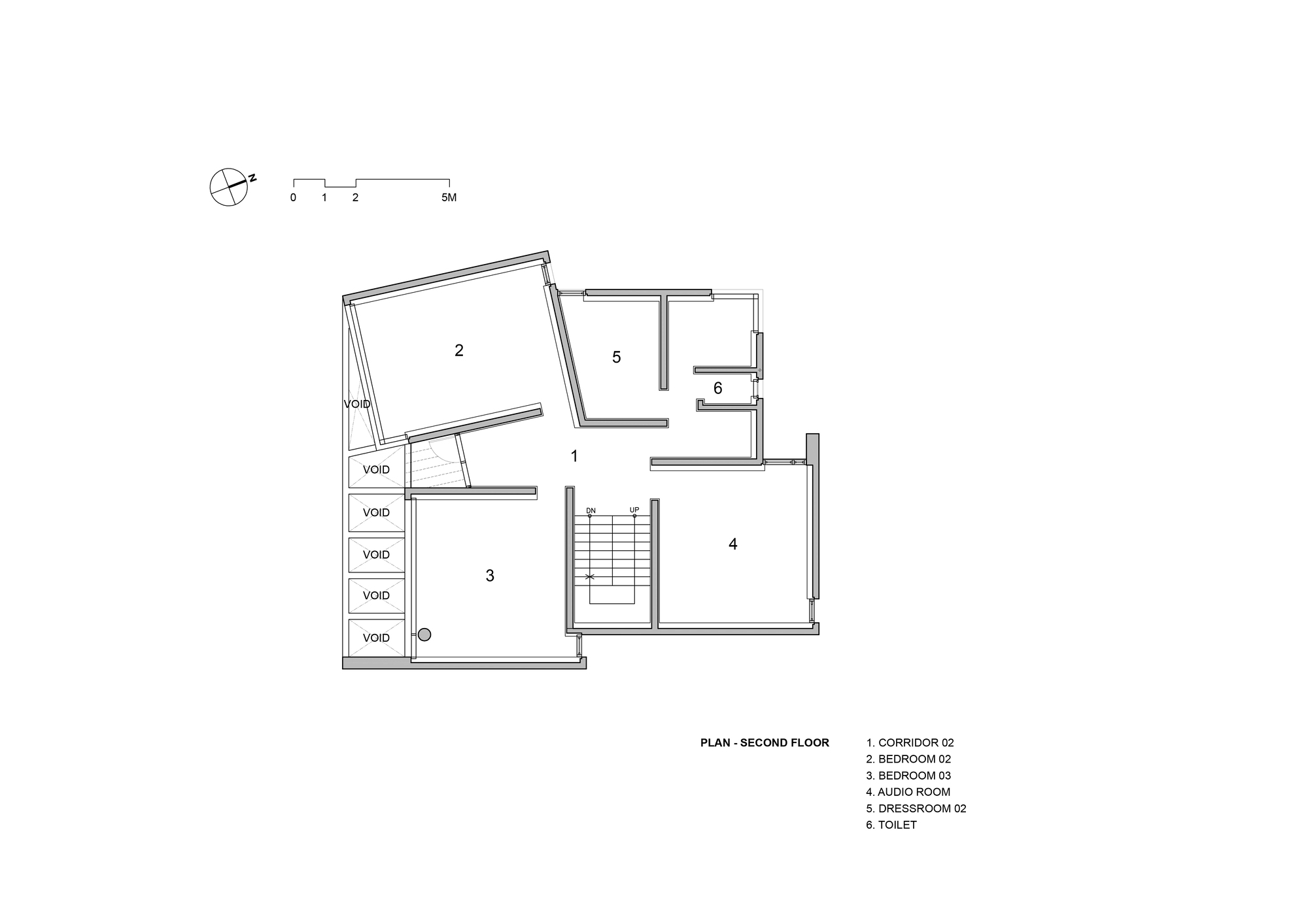
△二层平面图
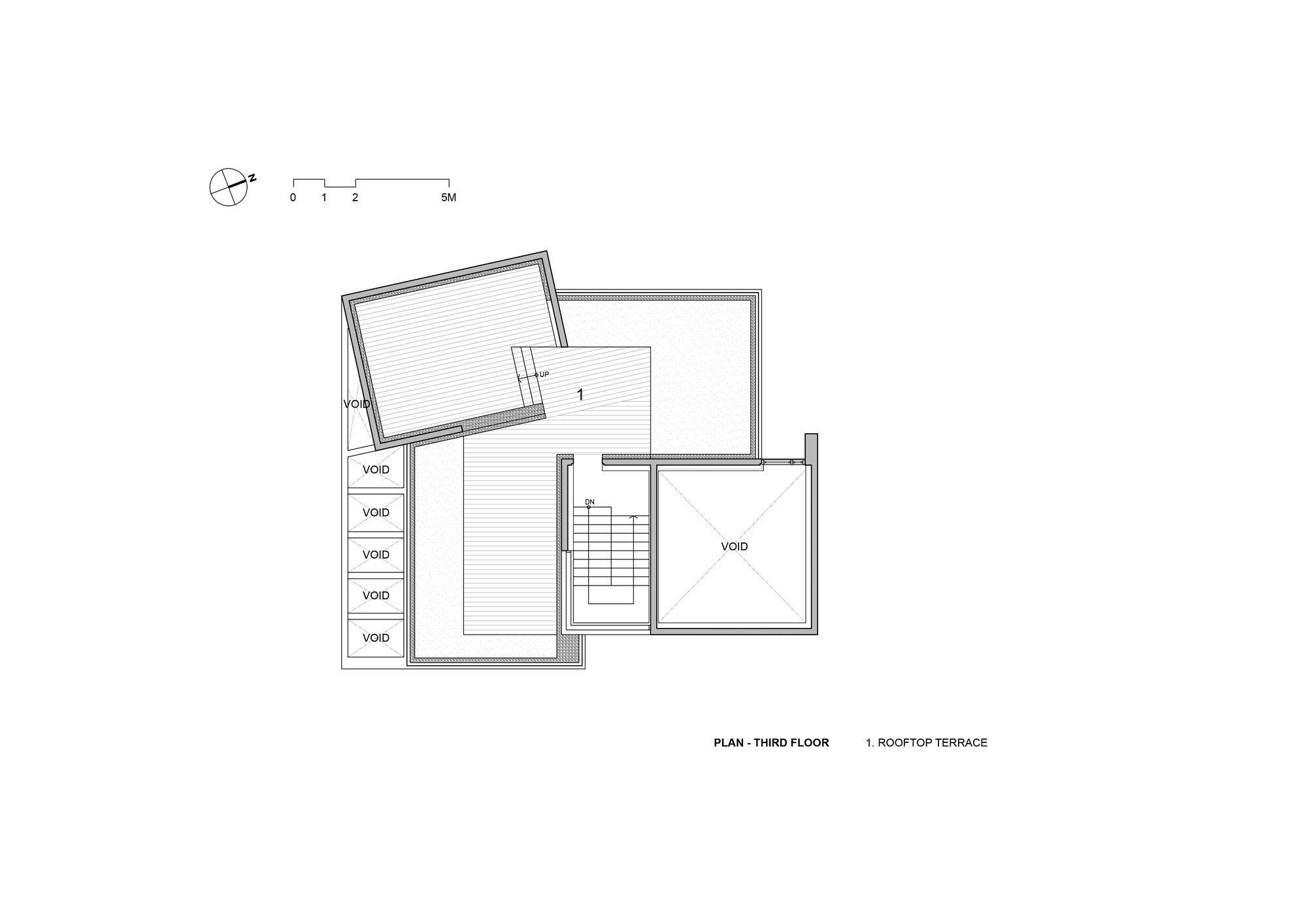
△三层平面图
△四层平面图
△北立面图
△西立面图
△东立面图
△南立面图
△剖面图A
△剖面图B
项目信息
建筑设计:DESIGN GROUP COLLABO
面积: 145 m²
项目年份: 2020
摄影师:Jae Yoon Kim
厂家: Eagon
主创建筑师:JOUNG, Moon Chul
面积:491.90㎡
建筑面积:386.38㎡
楼层:Three stories high
地点:韩国,Gyeongseo-dong
微信公众号:xuebim
关注建筑行业BIM发展、研究建筑新技术,汇集建筑前沿信息!
← 微信扫一扫,关注我们+

BIM建筑网
































