△正立面
位于苏州工业园区内的苏州市独墅湖医院,总占地156000平米,总规划建筑面积52.1万平米,总规划床位数3000张,由一期800张床位建筑面积13.1万平方米的综合医院以及未来将拓展开来的各学科中心共同组成。这是瑞士瑞盟设计首席设计师张万桑先生继南京鼓楼医院项目后对“疗愈花园““园化建筑”设计思想的又一次实践。总体规划将各期围合成一座现代园林的同时,让每期的医疗空间都成为有趣的疗愈花园。而医疗功能设计与规划、建筑、景观、室内设计的同步开展,更是在早期就奠定了一座好医院的有机整体。
△发展策略:所有建筑单体采用围合庭院的方式,庭院为使用者提供更适宜的休憩、等待、交流空间,并将自然更多地引入建筑内部空间。
环形层叠的裙房将园林不断引入建筑内部及屋顶; 四十五度角的布局激发出场地周边丰富的边界空间; 双人字形的双病区设计为医院带来更高的运营效率; 白色墙面与灰色窗檐暗合着苏州的传统。避免过度装饰设计的同时,这座高效率、模组化、可生长的现代园林医院也在向江南园林的胜地-苏州致敬。
△门诊入口
在速度和喧闹的时代,这座属于苏州的人生驿站将安静下来,倾听到这里的每个人的心跳。
△鸟瞰图
苏州园林遇见“瑞盟”疗愈花园
Suzhou Garden meets "LEMANARC" Healing Garden
园化建筑源于对园林的理解:园林Garden, 园化Gardenization, 指将外在世界内在化。
苏州园林不仅仅是围合,更是在水平与竖向方向的并置juxtaposition与叠置superposition所产生的连续空间链。这种空间链投射出潜意识的空间属性,带来屏障与秩序、识别与回归、自然与人工、仪式感与安全感。
△立体的花园系统
疗愈花园Healing Garden 指的远远不是建筑前后的绿化种植,而是指通过建筑的行为使矿物、植物与空间等要素共同实现一种特别的治疗生活场景。这些场景当以连续空间链的方式带领我们的使用。
在这个领地共享的时代,每个人都借此能从中读出对自己内心领地的似曾相识。
△中庭效果
△整个园区三个层级的花园(中央大花园,中庭花园,屋顶花园)连缀为一个巨大的花园系统
标准化营造江南水乡的淡雅
Standardization to create elegance in Jiangnan water town
素色的江南水乡仿佛有一种将时空慢下来,静下来的超能力。而这正是我们在这片疗愈场景中所希望获得的感受。白色块面与灰色线条的组合旨在远离现代与时尚,回归属于此地的安静与淡雅,以获取更长久的生命力。
△立面近景
这个庞大的建筑群全部采用标准模数设计建造。这让这座医院成为可以连续生长、繁衍的生命体。其内部的功能也可以很方便地根据运营需求予以置换。
△立面细节
环形与效率
Annulus and efficiency
与直线相比,环形使得从任何起点出发都可不重复地回到起点。这一特性让患者大大减少了必须的路径。采用环形设计比较采用线性路径可以节省1/2的路径与时间。同时环形的几何形态所带来的双向的联系能力使科室间联系更为紧密。
△门诊走廊效果图
环形带来的中庭更为建筑带来众多的采光与通风。内庭的拔风作用对于湿热的中国南方地区尤其利于节能。
△采光&通风分析图
LEMANRAC瑞士瑞盟设计提供医疗养老领域从医疗流程规划到室内设计的全流程服务,在中国已建成投入使用的重要作品包括南京鼓楼医院,南京公共卫生中心,上海东方医院等。
△门诊走廊
项目图纸
△总平面图
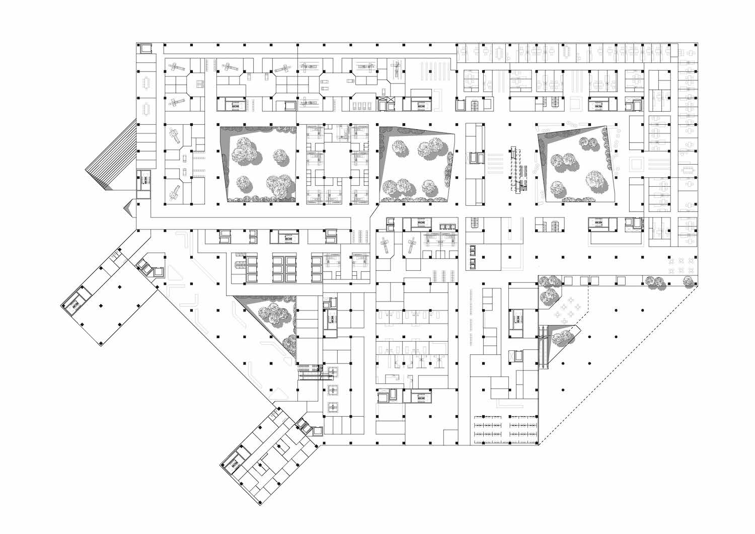
△一层平面图
△二层平面图
△三层平面图
△四层平面图
△五层平面图
△六-十二层平面图
△北立面
△西立面
△剖面图
△立面细节图
项目信息
项目地点 :中国江苏苏州工业园区崇文路9号
占地面积: 156,000m²
建筑面积: 131,000m²(一期)
床位数 : 800床(一期)
客户:苏州市独墅湖医院
项目投资:21亿人民币
建安造价:7740元/m²
项目现状:建成投入使用
项目设计时间:2015-2016
项目完成时间:2020
工作内容:总体概念规划,医疗功能规划,医疗流程设计,建筑方案设计,室内方案设计 立面表皮系统深化设计
主创建筑师 :张万桑 Vincent Zhengmao Zhang
总体概念规划:张万桑 Vincent Zhengmao Zhang ,王晔
医疗功能规划、医疗流程设计:张万桑 Vincent Zhengmao Zhang ,Daniel Pauli,王晓东
建筑方案设计:张万桑 Vincent Zhengmao Zhang ,王晔
室内方案设计:张万桑 Vincent Zhengmao Zhang,Florian Thomas
立面表皮系统深化设计:张万桑 Vincent Zhengmao Zhang ,王晔
项目协调:陈勇
摄影:夏强
建筑初步设计及施工图设计:中衡设计集团股份有限公司
技术支持:冯正功 张瑾
项目负责人、建筑专业负责人:丘琳
建筑专业:曹锋 王晓强 徐梁
结构专业:谈丽华 江淼 孟海燕 陈勇
电气专业:王志翔 王祥 李炜 陈鑫鑫
暖通专业:张勇 丁炯 周敏 张伟康
给排水专业:李铮 陈寒冰 谈政 刘亚原
室内施工图设计:苏州承志装饰有限公司
景观设计:中衡设计集团股份有限公司
照明设计:中衡设计集团股份有限公司
幕墙施工图设计:江苏苏鑫装饰(集团)公司
土建总包施工单位:新世纪建设集团有限公司
室内装饰装修施工单位: 苏州柯利达装饰股份有限公司

BIM建筑网

























