济南创新谷作为长清大学城的创新创业孵化地,聚集了一群自由、多元而又活力无限的年轻人,他们理想又务实,他们在希望的沃土上描绘着城市明天的蓝图。然而,就是这样一群人,每日奔波于创新谷与公租房的两点一线,初创城市配套贫乏的困顿成为项目建设的初衷。
项目选址位于创新谷与公租房的中间,是上下班的必经之地。面对现代年轻人“社畜”“内卷”“躺平”“佛系”的自嘲,归其本源是对高速运转着社会的吐槽,是对工作生活、工作失衡的宣泄。公租房虽然解决了居住,但对日渐消解的“集体主义”生活的焕活依旧缺失,所以,我们希望为日夜兼程的“追梦人”提供一处心灵的驿站、打造一片自在的后花园、搭建一个可以消融压力与烦恼的生活容器。让每一个独立个体以不被定义的方式,在这里肆意的填入他们的喜怒哀乐、悲欢情愁。
△方案演化图
基地周边环绕着秀丽的徕佛山、马鞍山,我们希望让建筑体量共同参与到一段建筑与山色的故事讲述中,故突破传统街区的布局模式,通过层层堆砌的建筑“石块”围合一处院落,建筑是发生在室内与室外使用和空间的双重力量交汇处,就建筑物本身而言,其成型的那一刻就同时塑造了室内和室外空间,借鉴计划经济的单位大院的封闭、复合、同质化的属性形成带有集体主义色彩的建筑模式,方案设计采用四面围合,中心纳一庭院的布局模式,让庭院为现代城市的多样化生活提供一种具有集体记忆的社会容器。在设计手法的处理上将单一的建筑体量拆解成错落的几何单元,组合成一个立体的微型聚落来重构建筑的空间及形态,建筑屋面高低起伏与山色相应,以增加城市的厚度与生活图层的层次。
让人们在空间体验上与山体的攀爬体验一致,实现在登高过程中,山色如一副画卷渐渐展现在眼前,在层层递进的屋顶一起看云卷云舒、一起赏日出日落、一起闻风的味道。
退台的方向面向庭院展开并将建筑赋予文化、休闲、餐饮、购物、娱乐、培训、创客、SOHO办公等功能属性,共同营造的内向型社区中心,实现了不同空间的相互渗透与相互感知,让人置身一片山色背景的聚落中,感受一场与建筑的爱恋,一起思考如何共同生活、一起创造感动的风景、一起寻找有趣的存在。
项目图纸
△模型图
△模型图
△模型图
△总平面图
△1F平面图
△2F平面图
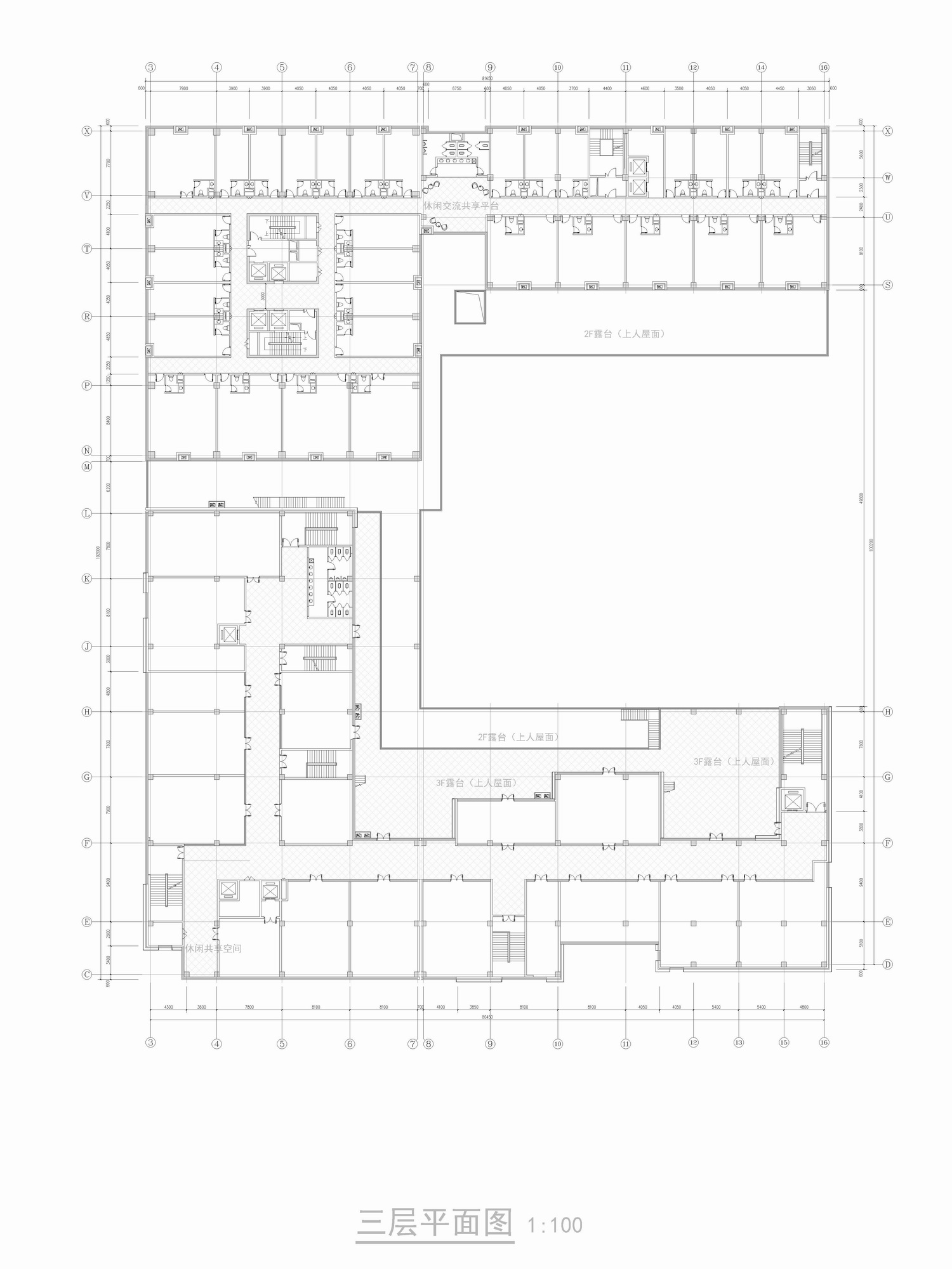
△3F平面图
△4F平面图
△东立面图
△南立面图
△剖面图1
△剖面图2
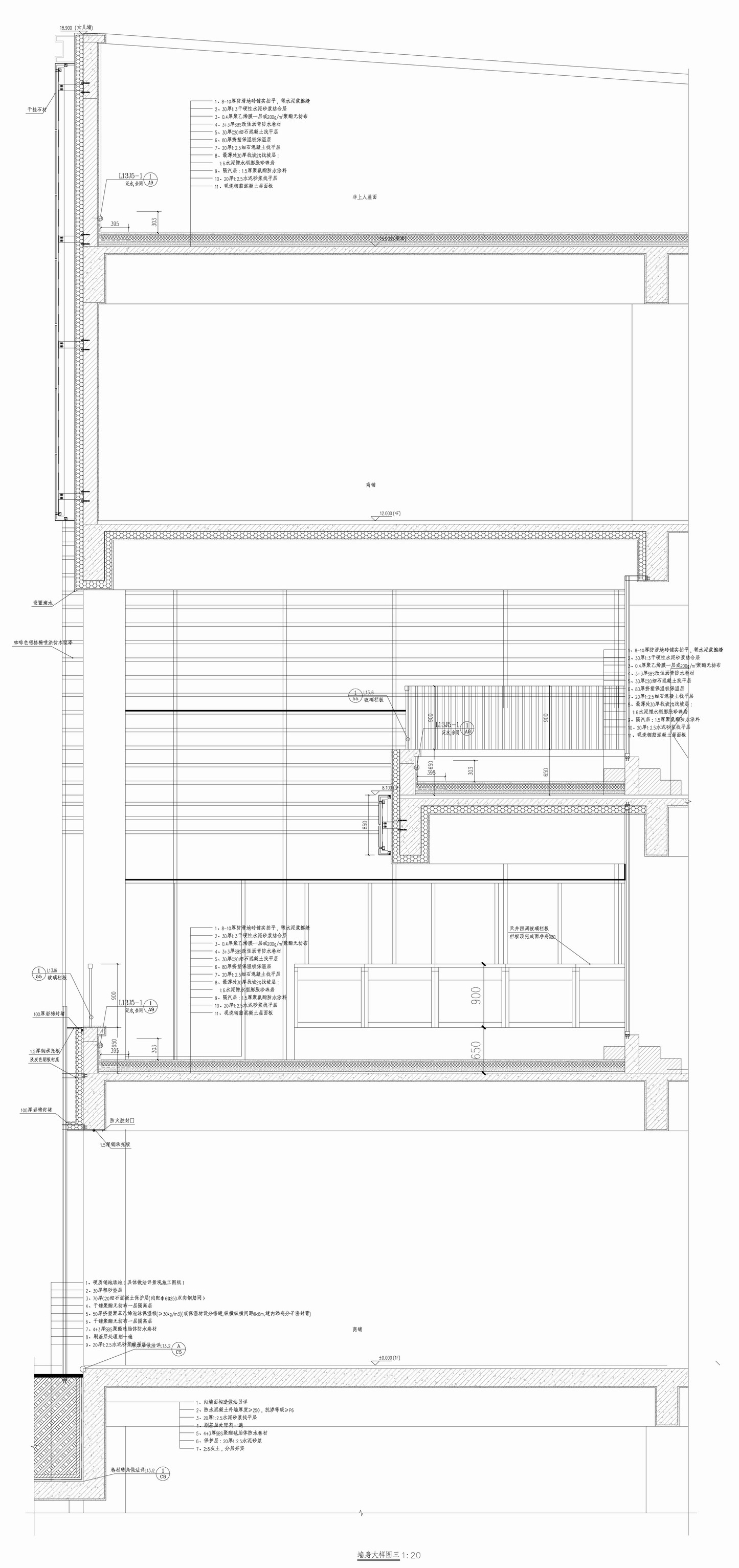
△节点大样图
项目信息
项目名称:创新谷里的生活容器
公司:北京龙源科建建筑设计有限公司
联络邮箱:250695060@qq.com
公司所在地:山东省济南市高新区三庆齐盛广场1号楼20F
项目完成年份:2020
建筑面积:43739㎡
项目地址: 山东省济南市创新谷片区芙蓉路
开发商:山东赫然置业有限公司
主创建筑师: 孙鑫
摄影师: 王晨光

BIM建筑网









































