△图书馆入口夜景
背景与问题:老旧空间与新使用需求之间的矛盾
项目位于河北省廊坊市三河市,中央美术学院燕郊校区。燕郊校区占地205亩,图书馆所在的老教学楼是在一座烂尾楼基础上改造而成的,因此格局和空间都受到了原建筑的限制,并不理想。
△入口细部
图书馆前身为中央美术学院附中图书馆,始建于1953年。2006年随着中央美院附中入驻燕郊,改为校区图书馆。近年来,随着城市设计学院入驻燕郊校区,学生和老师的增加,图书馆常年积累下来的问题也逐渐显现,归纳起来有如下几点:
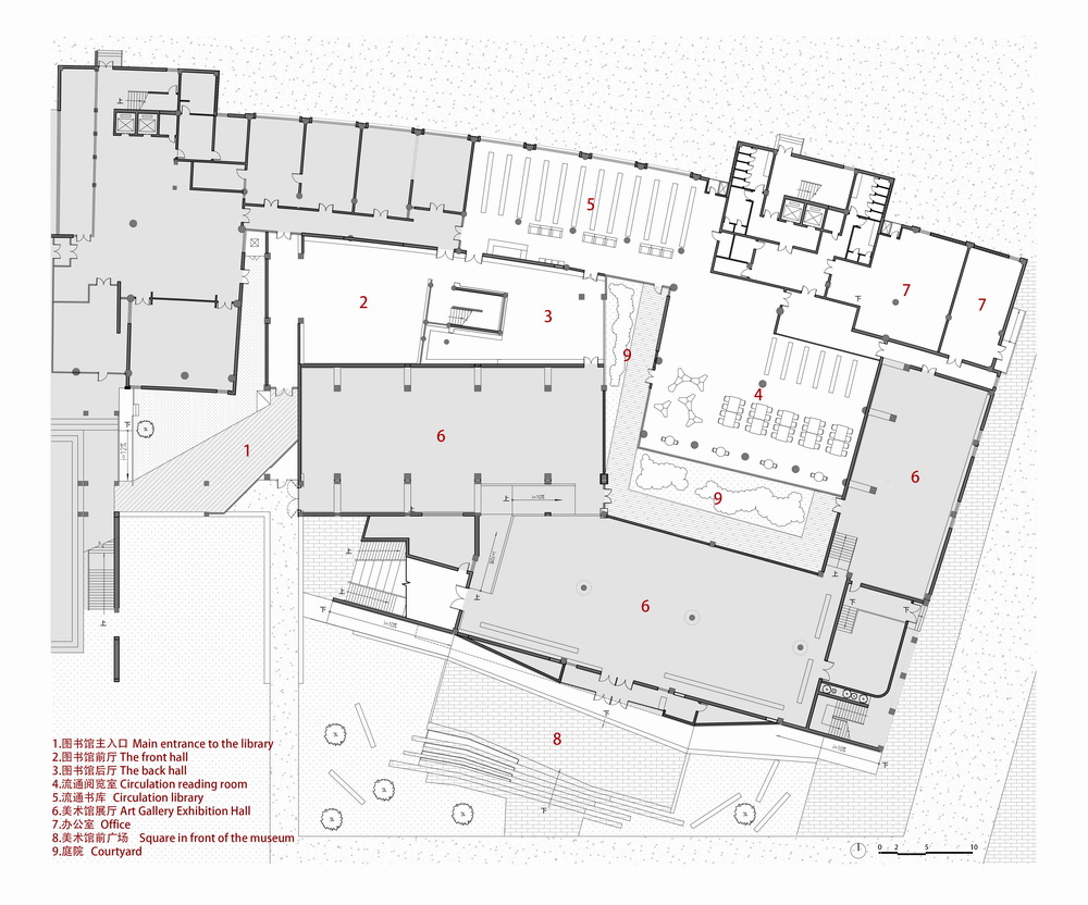
1,在教学楼一层,图书馆、美术馆展厅和城市学院实验室相互缠绕,造成3个单位的使用空间都不连续,流线交叉,相互干扰。
2,图书馆主入口非常隐蔽,要走过一段照明并不好的长走廊才能在尽头找到入口,且入口狭小。
3,图书馆各空间分散,分别位于教学楼的一层和二层,不直接联通。读者从流通书库拿取图书后,要经过外部走廊或室外空间才能到达位于二层的阅览室。
4,图书馆二层东南角的阅览室,因为受到下层空间的影响有高差,但原室内对此没有合理的组织,造成空间浪费。
5,各空间室内因为年久失修地面、天花多处破损,家具老旧,照明不足,急需修缮和购置新家具。
总之,图书馆在经历了多年服役后,已越来越显现老态,已无法满足新时期学校和学生对现代图书馆的期望和定位。一次系统、全面的改造势在必行。
△橙色地面提示了图书馆入口位置
△空间设置和家具给读者提供不同的阅读体验
任务与设计理念:“藏-展-阅-享”四位一体
2018年秋,在学校领导的亲自指挥下,燕郊图书馆改造设计工作正式开始。学校希望在有限的预算内,将燕郊校区图书馆全面升级,适应新型图书馆的使用需求。作为央美老师,建筑师接受了为自己母校设计新图书馆的任务。这既是一种责任也是一种荣誉。
经过现场调研后,建筑师提出将图书馆和毗邻的美术馆展厅一起规划改造的想法,即将图书馆和展厅统筹考虑,共同作为未来央美知识和艺术生产的基地,并提出“藏-展-阅-享”四位一体的概念。
– 所谓“藏”即收藏,这里主要是藏书。图书馆作为一个知识生产的基地,书籍就是知识,是所有延展功能的基础。因此,新图书馆必须为书籍的收藏提供尽量好的条件。
– “展”既是展示,也可以是展览。无论是图书馆的书籍还是展厅的展览,新空间应该有足够的开放性和宽容度,能承载不同形式的展示和展览。
-“阅”即阅读。阅读是图书馆最基本的功能要求之一。设计希望为师生提供更多、更舒适的阅读空间,也更多元的阅读体验。
-“享”,既是享受,也是共享。在建筑师看来,新型图书馆应该是读者乐于进入的空间,它应该不刻板,读者甚至可以躺着看书。同时,图书馆应该是开放的、公共的,它既可以和展厅联动,在展览同期举办相关延展阅读,也可以作为一种特殊的教室、研讨室,或者报告厅来使用。
△沙发和休闲桌椅为读者提供轻松的阅读体验
布局和流线:重新梳理边界,塑造图书馆新入口
对图书馆改造设计从调整布局,梳理流线开始。建筑师首先将一层插在图书馆和美术馆展厅之间的城市设计学院实验室(原来属于美术馆展厅)迁出,将腾出来的一部分空间归还给美术馆继续作为展厅使用,另一部分划给图书馆,改造成为流通阅览室。新的流通阅览室与保留在原址的流通书库直接相连,很好的解决了改造前书库和阅览室分离的尴尬局面。
△图书馆新入口
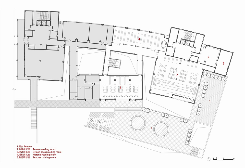
然后将图书馆和美术馆展厅的办公室合并,形成联合办公的模式。二层各功能房间的大格局保持不变,南侧两个阅览室的功能不变,北侧电脑机房取消,改为城市设计学院与图书馆共建的材料阅览室。
△首层平面图
△二层平面图
图书馆原入口隐藏在楼道深处,很难发现,不利于图书馆作为公共空间的属性。建筑师为图书馆重新安排了新的、直接对外的入口。新入口位于图书馆所在教学楼的西南角,毗邻美术馆展厅的西侧次入口。这里曾经是堆放杂物的半室外廊道,建筑师将杂物清除,廊道仍然保持半室外状态,但引入富于表现力的新材料和色彩,塑造图书馆新的入口形象。
△橙色地面向外伸出,形成欢迎的姿态
新入口的外观简洁、明快,门头和新加的引墙采用白色穿孔板,与老建筑一起形成几何化的体块组合;入口内侧的墙面使用了橙色铝扣板,与之相连的地面采用同样颜色的环氧树脂。此外,地面向外延展,形成类似“红地毯”的欢迎姿态。朦胧的白色穿孔板与鲜艳的橙色一起,既和原有建筑灰、白相间的外立面相连,又形成强烈的标志性。
△新入口的引墙与原建筑天桥相互咬合
原室外场地中的树木被谨慎的保留,与新加入的建筑元素形成图底关系。天气好的时间,树影会落在橙色地面和白色穿孔板立面上,形成斑驳的图案,和穿孔板上的树形剪影形成呼应。建筑师希望带有强烈视觉符号性的新入口,可以为图书馆带来清晰的意象性(Imaginability)和传播力。
△场地中的树木光影洒在地面和墙体上
大厅:新的空间核心,链接图书馆、美术馆展厅,及其他教学空间的新枢纽
与新入口相连的是大厅,它是链接一层图书馆、美术馆展厅,二楼阅览室和其他教学空间的枢纽,也是未来此区域主要的公共场所。
△从二楼窗口看前厅
△从入口走廊看前厅
大厅由原建筑闲置的空间改造而成。此处原有一个疏散楼梯间,并集中有8根结构柱,对于空间和视觉感受影响很大。由于楼梯间和柱子都必须保留,因此建筑师因势利导的将大厅在此处分为前厅和后厅两个部分,将疏散楼梯和结构柱巧妙的隐藏在隔墙之间。
△前厅的墙面在二层有窗户,让空间适当渗透
改造后,前厅是一个梯形的高空间,它的北侧是图书馆流通书库,南侧是美术馆展厅,东侧是前厅的主立面(前厅与后厅之间的隔墙),图书馆新入口的通道从西侧与前厅相连。在未来的使用中,前厅会作为展览开幕式的主要空间,也可以在此举办多种公共活动。
△前厅与新入口联通
建筑师将空间的四壁尽量做的纯净,让空间保持完整性,为后续使用提供了最大的可能性。整个空间的色彩以白色、灰色为主,只有西侧入口处可以看到走廊的橙色。东侧、南侧和西侧的墙壁二层保留有窗口,既保证了窗口背后使用空间的采光,又使空间之间保持适度的视线联系和渗透。
△前厅为后续使用提供了多种可能性
屋顶是整个空间最为活跃的地方,建筑师使用了泰森多边形算法(Voronoi diagram)来生成高格栅的形态。高格栅采用了白色亚克力材料,在保证日照的前提下,又很好的起到了遮蔽屋顶结构和构造的作用。泰森多边形高格栅除了自身的视觉丰富性外,阳光通过它的折射和反射,形成的多变光影效果也为大厅空间平添了“变数”。在一天的不同时间段内,阳光和阴影以一种“不可预计”的方式撒入大厅空间内,影响着空间的气氛,使人对空间的感受不断变换,一直保持新鲜感。
△高格栅有效地遮蔽了屋顶的结构和构造
△前厅的色调,大面积的灰、白色和局部的橙色
△前厅中戏剧性的光影效果
后厅比前厅稍小,也是一个梯形空间。在使用上,后厅更多是休息和辅助功能。几组休闲沙发被摆放于后厅空间中,并利用原建筑楼梯间旁边的低矮空间设置存包处。后厅墙面和屋顶的处理与前厅相同,唯一不同的是用于遮挡楼梯间的立面。建筑师没有将楼梯间完全封闭,而是采用穿孔板的方式形成一个具有叙事性的界面。利用平面设计的手段,一个树形图案被呈现出来,暗示了教育“百年树人”的含义。
△从二层窗口看后厅
△后厅空间可供人休息
△穿孔形成树形图案
阅览室:充分利用原建筑的空间属性,创造丰富、轻松的阅读体验
图书馆的阅览室是读者停留时间最长的地方,建筑师希望改造后的阅读室在满足基本功能的前提下,总体呈现出开放、放松的气氛。
△从流通阅览室可以看到庭院景观
改造首先从天花和地面开始。天花使用了深灰色金属网将原建筑凌乱的结构,及新增设的空调、灯具和管线进行隐藏,深灰色也和图书馆原有书架的金属构件相呼应。根据水平照度要求,新增白色LED灯呈矩阵方式嵌入金属网中,且外表面与金属网齐平。地面采用水磨石地面,简单大方,也满足图书馆建筑大荷载的使用要求。在完成了基础功能升级后,建筑师针对不同空间,采用不同的方式进行改造。其中最具特征性的是:一层的流通阅览室及外侧庭院,还有二层的阶梯阅览室。
△阅览室屋顶采用深灰色金属网吊顶
新的流通阅览室是一个规整的矩形空间,它的西侧和南侧有一处L型内庭院,种植有大量的竹子。由于避风,竹子生长茂盛、四季常青,是教学楼里的一处极有意境的场所。建筑师将阅览室南侧立面最大限度的透明化——使用整面落地玻璃+玻璃肋的方式,在保证充足阳光照入室内的同时,又将庭院景观引入室内。
△涂料、穿孔板和亚克力格栅构成空间的主要质感
△内庭院
△内庭院景观局部
庭院南侧的墙面是美术馆展厅的北墙,原墙面有参差不齐的开窗,既不利于展示艺术品,也使竹林景观的背景略显凌乱。建筑师将墙面的开窗封堵,立面统一刷成白色。这样的处理很好的营造了竹林的图底关系,读者从流通阅览室向外看:青竹、白墙、灰影共同构建了一幅带有文人气息的画卷。
△透明的界面将竹林拉入室内
△流通阅览室
改造前二层阶梯阅览室最大的问题是:房间南北两侧有1米多的高差,屋顶也呈现为北低南高的折面。造成这个现象的原因是楼下空间是展厅,楼上空间是报告厅,机构上都有升板情况。此外,房间南侧高起的部分因为结构的原因,不能承载过大的荷载,因此长期以来这里都处于空置状态。
△使用中的阶梯阅览室
建筑师认为空间内的高差可以为多元的阅读体验提供支点。经过与使用方的沟通,最终一个层叠起伏的阶梯被塑造出来。阶梯各标高的高差和大小丰富多变,形成各类“微台地”。阶梯表面为木质材料,并配以软质的坐垫和靠背,为学生提供了不一样的阅读可能性。阅览室也可作为阶梯教室使用,阶梯则顺利成章的变为坐席。除了阶梯,阅览室里面还为读者提供了常规的阅读桌椅和沙发,从而保证了不同的使用需求。
△阶梯阅览室
△阶梯细部
△不同大小和高度的微台地
结语:空间生产激发知识和艺术的生产
整个改造并不追求奢华,大部分动作都来自于对建筑原有问题的解答,及对必备功能的回应。但同时,建筑师也希望这次改造能为燕郊校区图书馆带来一些新气象,即所谓:借助空间的生产,来激发知识和艺术的生产。
改造完成后,图书馆已经于2020年5月重新开放,并举办了学术沙龙展和研讨会。知识和艺术生产的作用已初步显现。
项目信息
名称:中央美术学院燕郊校区图书馆改造
地点:河北省廊坊市三河市
业主:中央美术学院燕郊校区
主创建筑师:何崴
设计团队:陈龙、华孝莹、李婉婷、沈星逸(实习)、计然(实习)、李虹雨(实习)
施工图设计:中国建筑科学研究院有限公司
深化设计总负责人:孙燕
建筑专业:李礼
装修专业:马国辉
结构专业:郭申
暖通专业:陈一玫
电气专业:宁科
施工单位:江苏金祥建设工程有限公司
总建筑面积:2900平方米
设计时间:2018-2019年
建成时间:2021年4月
摄影:金伟琦

BIM建筑网



































