△多面墙的转动©金伟琦
△可转动的长墙©金伟琦
中国城市的大型商业建筑,由于先后进驻的不同店铺对面积的需求不同,对空间进行了大小不一的划分,使隔墙与柱子分离而杂乱。商业区要充分挖掘地下空间的潜力,但设备用房普遍布置于此,各种管道密集排布,压缩的施工周期使得管道安装缺乏统筹,错综繁杂,高低不一。
在室内营造的过程中,如果采用常规的室内吊顶进行遮掩,会使得原本并不高大的空间变得更加的狭小局促。在这种杂乱无序的空间中,不采取包裹的装修方法,而塑造原本的空间,成为这个设计的开始。
向内做,重回建筑“本体”空间
并不是从外裹饰杂乱的屋顶管道,也不对柱子和墙体进行外装。从空间的本体来考虑,它的现状是一种城市空间生产的必然结果(存在),柱子和墙体本身并没有所谓的空间好坏。如果还原这些柱、墙的原本状态,它的空间质感就会呈现。
将柱、墙外面的白色涂料面层剔除,将并不平顺的边角进行充分打磨,使得混凝土柱子中的石骨料质感得以呈现。在混乱的顶部,采用一个比墙面灰色深一些的色调作为背景,进行调和处理。通过这些手段,重新塑造建筑基本结构部件,让空间的本体性呈现出来。
△施工前现状&去除表层打磨© LUO studio
往下做,专注于“器具”的建造
根据业主的实际需求,靠墙要有搁架,并可以适应一定的变化。将这些具体的搁架宽度、高度数据进行更细致的斟酌,由于墙体是非承重空心砌块砌筑,研究如何通过将搁架受力集中于地面而使得墙面处于辅助支撑状态,便有了靠墙的金属搁架设置。更宽而长的基座,更多的墙体支撑铆点。
金属搁架是具有功能的结构型家具,成为必要的空间分隔墙(增加变化性和灵活布置度),是一种嵌生的“结构性器具”。
在梁体之下,植入旋转之墙
△可转动的短墙©金伟琦
△驹然书舍gif© LUO studio
“无目的概念书店”,是海淀驹然书舍在多年运营积累下,提出的一种自由的未来城市人的生活方式。不要特别固定的陈设格局,提出营造多变空间的可能性,甚至要求书店兼具展览的可能性。
△总体分解分析图© LUO studio
根植于结构主梁之下的次生结构部件——旋转之墙,当旋转墙全垂直于入口界面呈纵向时,空间通透;当旋转墙平行于入口界面,空间划分成几个递进连续而彼此隔掩的状态,增加空间的丰富性、层级;旋转墙也可以自由转动停留获得丰富多变的空间。
旋转墙采用型材角钢铆接骨架部分,骨架外侧采取了透明与半透明两种覆盖,入口处以及通往后场的过渡区为了空间延续采用了透明墙,其他区域为了增加丰富性则采用的是半透明墙体。
△转墙分解© LUO studio
墙体之上也根据模数设置了可以对穿木棍的孔洞,并根据这些孔洞设置了2、3、5格的金属隔板,这些木棍、隔板满足悬挂、放置文创物品和书籍的需求。
这不是一个常规的室内设计,所有的动作都是往回清理来呈现建筑本体,往下营造并嵌入具有结构性的家具部件,通过这些另类的室内营造办法,赋予建筑内部空间一种原本和真实。
技术图纸
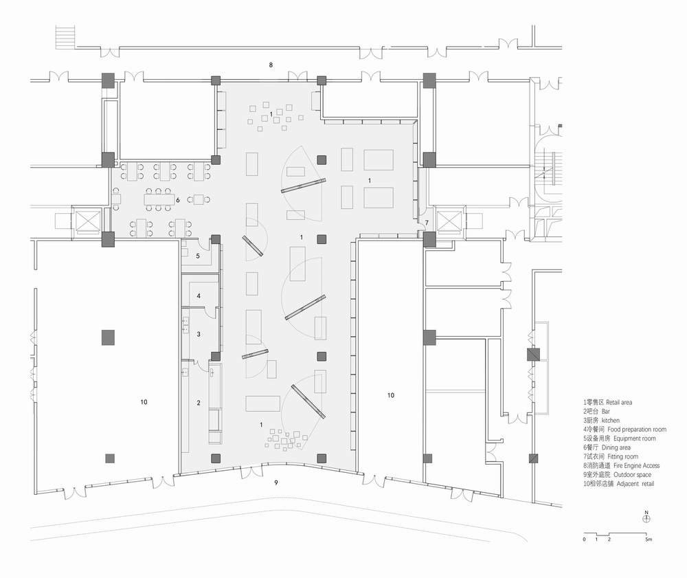
△平面图
△平面模式
项目信息
设计团队:LUO studio│罗宇杰工作室(www.luostudio.cn)
设计人:罗宇杰王蓓蕾王振卢焯健黄尚万
业主:北京五亩地文化科技有限公司的驹然书舍(无目的概念店)
施工方:上木造(北京)建筑科技有限公司
室内面积:479.1㎡
项目地址:北京市海淀区永润路18号院5幢-1层104-03(海淀悦界主题街区)
设计时间:2020年10月
竣工时间:2021年04月

BIM建筑网









































