高新区第四中学选址苏州枫桥片区,一首《枫桥夜泊》将此地刻画成文人学子理想的停息之地。江枫桥古迹斑斑,对愁而眠;古运河渔火点点,水波潋滟;寒山寺的钟声持续、深刻、影响着枫桥这个片区;更有曲水流觞,文人雅集的江枫草堂旧观。
90年代城市运动席卷了枫桥片区,正如当时大多数南方城市一样,一大批拆迁小区及新式建筑迅速覆盖了原有的城市肌理,这片区域恬静的文化常态逐渐消失在人们的记忆中…面对这样丰富而多元的城市肌理和复杂、厚重的地段环境,我们既要满足校园建筑对大空间、大跨度的功能需求,又想要延续江南建筑肌理的地域性,传递枫桥人文古镇的历史神韵。
江南民居特别是苏州园林建筑中的院落空间透露着江南匠人营造人、自然、空间关系的哲学。“院”承载太多江南寻常百姓对建筑与空间初步认知的启蒙,是这座城市不可更替的符号和记忆。这使得“院”顺理成章成为第四中学方案设计的原型。
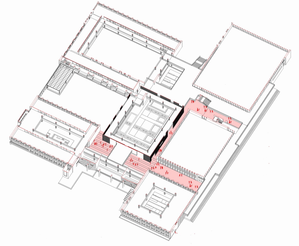
第四中学建筑群根据功能不同划分为5个内聚的院落,包括教学院落、实验院落、图书院落及体育院落。一个核心院落位于所有功能的中心,再通过廊道连接其他的功能院落。通过建筑体量围合入口空间和行进路线,学校由南向北通过校前广场,前院,中心院落,后院,把校园文化的仪式感建立了起来。
多个院落单体之间还通过组群关系形成外院、边院等更加丰富的院落形式,进一步增加了功能之间衔接的层次。多进院落不仅增加空间体验感,也使功能的分区更加合理,内与外、动与静、主与次,校园生活也可比拟园林游戏。
江南民居聚落组织结构的形成是“自上而下”的过程,复杂的地域文化环境塑造了里巷串联合院式民居,形成诸如鱼骨巷、棋盘巷等结构形态。在方案创作时,我们则“自下而上”,由空间反推,以长廊、边院、外院、巷道等交通空间连接若干院落空间。传承传统江南民居群落组团城市肌理。
我们转译的传统要素不仅有院落还有长廊,四中方案设计中的廊形式多样体验丰富,置身其中能够引发对拙政园“水廊”、“曲廊”和“复廊”的联想。无形中是对江南民居院落空间地域特色的继承,也是对江南地域气候特征的顺承。
技术图纸
△1-1剖面图
△2-2剖面图
△东立面图
△南立面图
△一层平面图
△二层平面图
△三层平面图
△四层平面图
△总平面图
项目信息
项目名称:重构“江南书院”:苏州高新区第四中学
设计方:中衡设计集团股份有限公司
公司网站:http://www.artsgroup.cn/
项目设计 & 完成年份:2015,2016
主创及设计团队:平家华 等
项目地址:苏州高新区
建筑面积:48367.59㎡
摄影版权:秦伟
合作方:施工:昆山市盛新建筑工程有限公司
室内:苏州市华丽美登装饰装璜有限公司
客户:苏州高新区第四中学

BIM建筑网































