△ 依偎在古树下的茶舍 摄影:夏至
△ 渔乡茶舍 视频:陈曦
“传统坡屋顶、分散布局、乡野材料、木构工艺是当下乡村中建筑创作的习惯性选择。面对江南典型的山水环境,我们通过对体量的消解、对材料的再思考,对施工的深度介入,以此探寻存在于江南山水环境中建筑风格的另一种可能性。”
——孟凡浩
建德,浙江省杭州市下辖的县级市,古为百越地,历史悠久,山川秀丽,水系众多。“渔乡茶舍”选址于此,顾名思义,便是在有山有水、烟雨朦胧的水乡渔村中,营造一处品茶的好地方。
△ 嵌入山体的建筑 摄影:夏至
△ 建筑与山体相互咬合 摄影:赵奕龙
消解体量的片层建筑
场地位于富春江、兰江、新安江三江交汇处,拥三江,观乌龙山,望双塔,山水相映。江对岸为千年古镇梅城,古严州府所在地,徽派文化由新安江流传至此。场地周边散落分布着一些小村庄,建筑的典型特征是青砖白墙,民居形制无论是平面、立面还是室内外装饰,都明显地与皖南、赣北的住宅近似。
△ 概念草图
△ 场地
△场地周边村落风貌
基地在一个山坳中,直面的便是天水一线、波光浩渺的三江口风光,江水、云影、延绵山势和远处隐约可见的村落构成了一副气韵生动的水墨画。
方案没有追求一个焦点式的视觉形象,而是最大化地将建筑体量藏匿于自然之中,犹如从山坳中生长出来一般,并同时最大化建筑的风景界面。由此,设计选择以消解体量的片层形式呈现,并且以巧妙的动线设计,将游山观水的情趣引入了建筑的空间体验。
△ 直面山水相接的三江口风光 摄影:夏至
设计利用地形高差,将茶舍与接待两个功能,分为主次两栋贴合地形延展的退台建筑,逐层叠退,不仅视觉上弱化建筑体量,同时产生了大量的一线江景的露台场所。
△ 场地鸟瞰 摄影:何雅量
△ 概念草图
△ 形体演变
△ 整体形态模型照片
△ 悬挑的楼板 摄影:夏至
主楼实际为三层,为保证更好的景观视野,将整个建筑体量由高向低逐层下挂。顶层地面标高与后山平齐,与村落相接,底层通过两层毛石垒砌的灰空间与滨水道路相连,有效减少行人对使用空间的干扰。
△ 滨水道路 摄影:陈曦
△ 建筑形体摄影:夏至
层叠退台的建筑主楼,以片状体量的形式层层展开,大悬挑的楼板既是山体的延伸,也是天然的活动场所。
△ 活动平台 摄影:陈曦
临江的主楼与坡上的次楼分别留有洞口,并引入植株作为入口提示。这样“双入口”的设计也是建筑师在业主功能不明确的情况下的灵活性应对策略。坡上入口做圆形院子,并通过片墙延伸,将空间蔓延至周边,模糊了建筑与自然的边界。
△ 坡上院子入口空间 摄影:赵奕龙
△ 入口处的片墙延伸 摄影:赵奕龙
△摄影:陶涛
清晰的形体关系中,建筑空间高低变化,错落有致,赋以内部空间的自由度。水平延展的舒缓平台和沿着山地的不断攀登,亦带给人两种不同的身体感知。
△ 清晰的建筑层级关系 摄影:何雅量
沿着毛石砌筑护坡拾阶而上,来访者在深远的挑檐下几经转折,视线在江面与临山楼梯间转换,空间时而开阔时而幽狭。
△ 临山阶梯摄影:陶涛(左)夏至(右)
△ 临江阶梯 摄影:夏至
环境是建筑存在的既定条件。厚重的岩石山体和起伏的坡地地形,在面对不同的界面时,建筑师希望保持简洁和纯粹的空间形式,柔和轻微地与环境发生触碰,让建筑与环境表现出一种耐人寻味的亲密关系。
△ 与山体岩石的对话界面 摄影:夏至
△ 建筑与场地的关系 摄影:夏至(上)何雅量(下)
山水既是空间组织的起点,也是空间的有机组分。建筑依山面水,空间内的刻意留白营造出特殊的意境。连续的玻璃幕墙对内部空间产生限定,各个空间相互穿插,最终形成室内亦是室外的空间形态。
△ 玻璃幕墙映射山水场景 摄影:陈曦
△ 延绵山势填充室内留白空间 摄影:赵奕龙
△ 室外山水场景与室内留白 摄影:赵奕龙
乡土材料的其他可能性
选择混凝土来建造这样一座位于乡村环境中的公共建筑有多重考虑。首先混凝土材质与设计师的整体设计策略最为一致,作为一种在自然环境中介入感比较强的材料,能够与建筑整体谦和的体量策略达到一种平衡;而木模板特有的纹理又赋予了混凝土以接近人体尺度的质感,在极简的材料选择中增添了一丝趣味与丰富度。
△ 顶部纹理 摄影:孟凡浩
△ 木模板混凝土肌理 摄影:陈曦
△ 木模板施工过程 摄影:孟凡浩
△ 建筑与场地的关系 摄影:赵奕龙
建筑师设想,当建造活动结束后,在温润潮湿的环境中,茂盛植物逐渐攀附混凝土墙面屋顶。若要使建筑真正成为景观的一部分,那长久地契合于场地必须借助时间的力量。这或许是在当下不断呼吁“乡土材料”、“传统符号”、“东方性”的大背景下,存在于江南山水环境中建筑风格的另一种可能性。
△材料肌理与光影 摄影:赵奕龙
△ 材料肌理与光影 摄影:陈曦
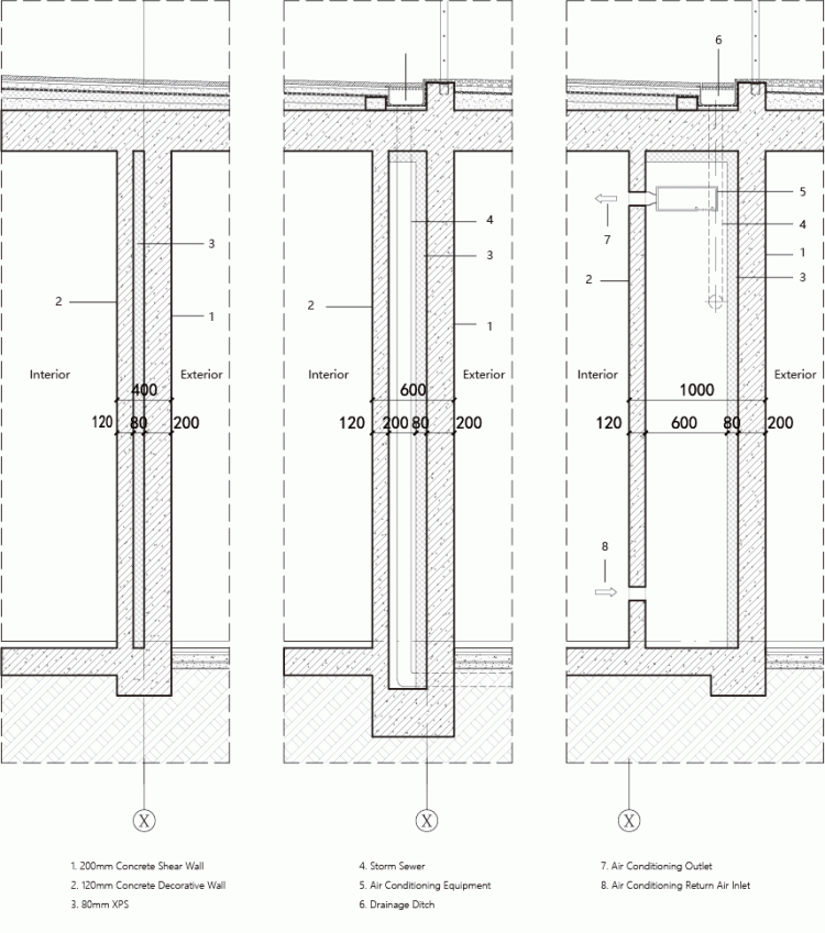
选择混凝土这种一次成型材料,也是对建筑设计深度与施工配合的一次考验。建筑师希望通过对结构设备的细致处理,强化空间的纯粹性。因不设置吊顶,为了隐藏管道与空调风口,针对建筑的不同部位,分别设计了400mm、600mm及1000mm三种不同厚度的混凝土夹心墙系统,分别对应保温层、管井、设备空腔三种功能。为了保证概念的延续,建筑师将室内景观一体化设计,灯具、开关面板、电线统一提前预埋,入口处的景观座椅、嵌入式扶手、排水口等细节也进行整体设计。
△ 混凝土夹心墙系统(依次用于保温、管道、设备)
△纯粹的室内空间 摄影:赵奕龙
△ 嵌入式扶手 摄影:夏至
建造与实施
项目自设计以来历时近三年,设计工作贯穿着整个施工过程。建筑师希望在大尺度的山水环境中突出材料相对强烈的肌理感,在正式浇筑前,经过多次实验,选择了纹理较为清晰但成本并不高的碳化木板作为模板。为把控施工效果,最终采用的是同一模数错缝拼装的折中模板方案。
△ 建造中的建筑形体 摄影:赵奕龙
△ 活动空间 摄影:赵奕龙
△ 施工过程 摄影:赵奕龙
原场地上的毛石被回收后用于室外墙体的砌筑,以此强化新建筑与原场地的联结性。借由手工打造的石砌墙面,独特的肌理结构与质朴的木模板混凝土墙体相互呼应。施工过程中,建筑师刻意保留了一些瑕疵,希望手工建造的痕迹能通过感知传递给使用者。
△ 毛石砌筑墙与混凝土楼板 摄影:夏至
△手工打造的石砌墙面 摄影:孟凡浩、陶涛
结语
渔乡茶舍从形式创作的手法上来看,它始终是简洁的,简洁到只剩板、柱、剪力墙等作为建筑的必要要素,但从技术细节的角度来说,它又是复杂的,实现了设备、室内、景观的一体化设计。
△简洁的空间形态 摄影:陈曦
通过对地形的借用,接近完工的渔乡茶舍依偎在富春江畔的山坳中,薄而深远的挑板与粗粝厚重的混凝土产生的“薄”与“厚”的对比,在光影的调和下,已频频打动亲临现场的人们。
△顶层景观平台,与水天相接 摄影:赵奕龙
△建成后的渔乡茶舍 摄影:陈曦
技术图纸
△-1F PLAN
△ 1F PLAN
△ 2F PLAN
△ 3F PLAN
△立面图
△剖面分析
△模型照片
项目信息
项目名称:渔乡茶舍
项目地点:浙江,杭州
设计时间:2018-2020
建造时间:2018-2021
建筑面积:2463㎡
设计单位:gad × line+
主持建筑师/项目主创:孟凡浩
设计团队:何雅量、陶涛、李昕光
结构机电设计:吴映栋、叶小萍(结构);崔大梁、姚国财、李芳芳(暖通);任飞宇、王跃(电气);张斌、胡挺(给排水)
业主:浙江省旅游集团、江南秘境旅游发展有限公司
建设单位:杭州祥麟建设有限公司
摄影:夏至、陈曦、赵奕龙、孟凡浩、陶涛、何雅量
网站:www.lineplus.studio
联系邮箱:pr@lineplus.studio

BIM建筑网
































































