该项目坐落于印度尼西亚的Taman Villa Meruya,是一个新旧结合的更新项目。
该项目共包含一个名为Omah的图书馆、一个牙科诊所、住宅楼和建筑师Realrich Sjarief的设计事务所。
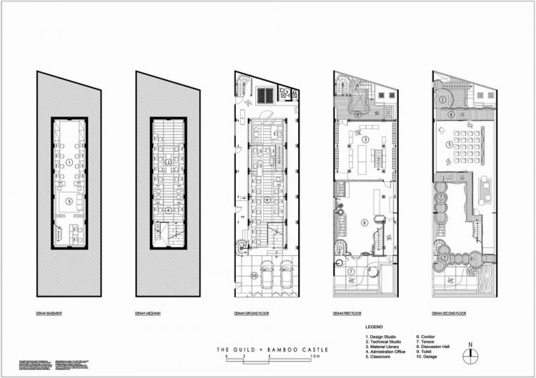
△ 不同功能分区平面图
△ 轴测图
这家事务所名为Guha Bambu,而其更为人所熟知的名字则是Realrich Architecture Workshop,即RAW建筑事务所。
该项目的更新主要旨在置入一系列的空间片段,来满足各种不同的空间功能需求。
例如,建筑师为Omah图书馆扩建了更多的书架储存空间和画廊展示空间。
建筑师通过设置不同的入口,来控制空间的整个流线走向,从而达到区分公共和私密空间的可能。
项目中的另一个新建部分就是Guha Bambu建筑设计事务所的办公空间,位于基地的东面。
△ 事务所南侧、东侧立面图
项目中的另一个新建部分就是Guha Bambu建筑设计事务所的办公空间,位于基地的东面。
建筑师以另一个建成项目的建造手法为技术灵感,设计了钢平面桁架结构的屋顶和竹结构两部分,并依靠竹结构的强度和韧性去支撑整个钢平面结构。
建筑师以另一个建成项目的建造手法为技术灵感,设计了钢平面桁架结构的屋顶和竹结构两部分,并依靠竹结构的强度和韧性去支撑整个钢平面结构。
建筑师在建造过程中一共使用了九种不同的材料来表达项目的工匠精神和事务所的实验先锋性。这些材料包括了钢铁、木材、玻璃、金属、石膏、竹子、塑料、石材和混凝土。
建筑师对整个空间平面的设计保持了一个开放灵活的态度,并给未来设计改造的可能预留了充足的空间。
建筑师还充分考虑了当地的热带气候,将空间的西北面保持开放的状态,而用立面将西侧进行了闭合。
建筑师利用了混凝土,钢和竹制垂直百叶窗等基础材料设计了建筑的立面。
同时,建筑师希望借助这个项目去探讨印度尼西亚本土建筑与小型商业模式融合的可能。甚至,建筑师还希望在打造良好私密和公共空间区分的前提下,于未来置入一家对外开放的咖啡店。
整个项目的建造是由来自西爪哇省(west java)的工匠所完成的,他们不光在竹结构的建造过程中使用了传统的鱼嘴节点,还尝试将现代的钢结构建造手法融入其中。
技术图纸
△ 平面图 底层
△ 平面图 一层
△ 平面图 屋顶
项目信息
建筑师:Realrich Architecture Workshop
面积:600600.0平方米
项目年份:2020
摄影师:Eric Dinardi,Ernst Theofilus
厂家:Kohler,Toto,Acor,Alexindo,Dekson,Dulux,Ikea,Philip,Rucika,Schneider Electric,Torro,Trimble,twinlite
主创建筑师:Realrich Sjarief
项目团队:Amud, Mohammad Enoh, Alifian Kharisma, Miftahuddin Nurdayat, Septrio Effendi, Fakhriyah Khairunnisa, Vivi Yani Santosa, Tirta Budiman, Aqidon Noor Khafid, Amirul Farras
业主:Realrich Sjarief, Laurensia Yudith
工程设计:Singgih Suryanto, Sudjatmiko, Endang Syamsuddin, Eddy Bahtiar, Yudi Atang, Sakum
景观设计:Realrich Architecture Workshop
City:Kecamatan Kembangan
Country:印度尼西亚

BIM建筑网


































