场地:海拔800米的自然村,可望见县城
2019年,受当地政府的邀请,第一次来垫江。垫江县位于重庆主城区东北方向,距离约120公里。项目场地位于垫江县桂阳街道十路村的一个自然村民组——雷家湾,这里属于明月山脉,海拔约800米,夏季凉爽,是避暑的好去处。场地西面背山较高,两侧有小山环抱,东南方向是一个豁口,可以看到8公里外的县城,可谓地形优越。更难得的是,场地中有一片马蹄形的稻田,原村民的生产、生活就围绕这片稻田展开,半亩地、一头牛,日出而作、日落而息……
△ 从场地东侧山豁口可以看到县城 ©金伟琦
除了具有恬淡的乡村文化景观外,场地周边还有历史古迹,其中最具名气的是巴蜀古道,相传这里才是为杨贵妃运送荔枝的路径,因此也称之为“荔枝古道”。现在拾阶而上,还可以看到当年的界碑和历代文人墨客留下的摩崖石刻。
布局:保留稻田,建筑围绕稻田布置
新建筑的功能是民宿,而且是多个民宿品牌的集合。根据运营方的要求,一期建筑将包含两个民宿品牌,他们拥有独立的区域,服务不同的人群。两个民宿共用一系列公共空间,包括:书吧、室外游泳池和餐厅等。
在了解了上位规划后,建筑师发现稻田在未来的规划中是村庄发展用地,因此即使在该区域建设也不会涉及占用耕地的问题。但问题是,这样的处理是否是最好的选择?从建设难度的角度,在稻田区域建造肯定更为有利,但这样做既破坏了农业景观,又让项目失魅。最终,建筑师、建设方和运营方都认为应该保留稻田,将其作为未来民宿的核心。
△ 功能布局
△ 保留稻田,建筑围绕稻田布置 ©金伟琦
△ 鸟瞰 ©金伟琦
建筑围绕稻田布置,形成空间上的犄角之势和视觉上的互看。这类似于中国园林里建筑之间的“看与被看”关系。稻田的角色如同园林中的水面,它既是观看的主体,也可为人在空间中的活动提供主题。民宿投入使用后,运营方围绕稻田开展的一系列活动,如收割季、稻田瑜伽等也印证了这点。
△ 景观视线
△ 环抱稻田的书吧、泳池和餐厅 ©金伟琦
客房和接待区被安置在西侧和南侧的山脚下,在具备良好视野的前提下,尽量不占用田地。场地中原有道路向西挪动,从新建筑和其背后的山林之间通过,使新建筑与稻田之间不受交通的打扰,同时也便于后期运营中的封闭管理。书吧和室外大泳池布置在一起,它们位于稻田北侧,背后有树林作为依托。餐厅位于场地东侧,它是唯一一栋修建在稻田中的建筑,但采用了地埋方式,被隐藏在稻田中间。在场地核心区外围东南角的山林中,还建造有一座瞭望塔,它既可以用于登高观景,也兼做森林防火之用。
△ 交通流线组织
△ 民宿背靠山林布置,面向稻田 ©金伟琦
客房:因形就势,平静实用
因为运营的要求,需要设计足够数量的客房(共25间);但为了不破坏环境,建筑被限制在有限的范围内建设,这就给建筑设计带来了难题:如何在有限的场地内创造尽可能多,且舒适的客房,同时建筑形体还不能过高。
客房分为两个区域,分别对应两个不同的民宿品牌——飞茑集和元白。飞茑集位于场地原宅基地(原建筑因质量问题被拆除)位置上,面向稻田和山的豁口,具有最好的观景面。客房共三层,12间,入口层和二层采用背廊式布局,保证了客房都面向稻田。
△ 飞茑集民宿,建筑与老树、稻田和谐共处 ©金伟琦
△ 飞茑集民宿首层的室外平台和浅水池 ©金伟琦
负一层并不是地下,而是利用场地原有高差形成的错层。负一层和入口层在剖面上错开,负一层的屋顶正好成为入口层的室外平台。这里建筑师除了阳台外,还设计了一个联通的浅水池,在为客房提供舒适小环境的同时,也增加了室外活动的趣味性和建筑的视觉性。错层的处理也使建筑在视觉上分为两段,弱化了建筑总高三层给人的压迫感。飞茑集客房南侧有一棵老树,它携带了原场地的场所记忆。建筑师刻意保留了老树,建筑邻树而建,形成了一种共生关系。树下利用木平台与负一层的屋顶浅水池相连,成为户外休闲的场地。
△ 露台成为户外休闲的绝好地方 ©何崴
△ 民宿负一层的天井 ©何崴
民宿元白主要位于稻田南侧的山脚下,由3栋二层的建筑组成。建筑外观朝向稻田的一面使用落地玻璃,将好的景观引入客房,分体式的布局保证了各客房之间的私密性,以及“家庭式”的体验感。
△ 元白民宿与餐厅 ©金伟琦
客房的建筑外观总体朴素平静,不刻意追求形体的雕塑感和现代性。建筑以双坡顶为主,出檐深远,回应了垫江地区多雨的气候条件。墙面使用了新型土坯墙材料,在具有传统民居外观的前提下,保证了后期维护低成本的诉求。
△ 民宿区域 ©金伟琦
△ 民宿使用了场地原有的老石料和木头 ©金伟琦
书吧和泳池:对场地和传统民居的转译
除了客房和接待区,本项目中还有一些小建筑,他们分散布置在场地中,在功能上是民宿的公共配套,在精神层面上他们起到点景的作用,与环境景观一起定义了项目的整体气质。
书吧的功能包含图书馆和水吧,它位于这个场地的北侧,与室外大泳池毗邻,和民宿元白的客房相对。这座建筑拥有一个大尺度的屋顶,这是对本地传统民居超尺度屋顶的一种转译。在垫江,传统民居经常会将厢房一侧的屋顶与其背后的厨房、猪圈屋顶连为一体,构成一个连续的,檐口接近地面的大屋顶。建筑师认为这是该地区极具特征性的建筑元素,就将其采样、适当变形,运用到书吧的设计中。书吧的双坡屋顶被分开,且不对称,面向稻田的屋顶檐口被刻意压低,形成一个超常规的屋顶形式,给建筑一种独特的气质:平静的不凡。压低的檐口框选出来的水平构图,将人的视线引向稻田,客房和餐厅,人坐在书吧中可以更集中的观想当下的风景。
△ 书吧夸张的大屋顶借鉴了本地传统建筑语汇 ©金伟琦
△ 从泳池方向看书吧 ©金伟琦
△ 从泳池方向看飞茑集民宿 ©金伟琦
室外泳池是在原场地鱼塘的基址上改造而成的。这样的处理既减少了土方量,又让改造前后的图景形成了戏剧性张力。当今,无边泳池已是高端民宿的标配,建筑师希望创造一个“稻田中”的无边泳池。随着后续农业景观的完善,泳池将与稻田更紧密的结合,闻着稻香,手可触及到稻穗的游泳体验,想来还是很浪漫的。
△ 书吧、泳池与元白民宿和餐厅相对而望 ©金伟琦
餐厅:隐于稻田,迎接日出
现有餐厅的规模很小,在二期大餐厅完成后,它将主要承担小型的特色餐饮服务。在设计之初,建筑师希望在场地东侧,山豁口处建造一栋小建筑,它一方面起到点景的作用,另一方面可以为客人提供在崖口观看云海、日出、远眺县城的落脚点。
△ 餐厅、崖口泡池和室外木平台 ©金伟琦
建筑被选在稻田边缘建设,为了不破坏稻田的整体景观,建筑师利用地形的高差,将建筑埋入地下,隐于稻田中。建筑形态尽量简洁,平面呈折线形,扣入场地中。单坡顶,混凝土结构,朝向崖口的立面采用落地玻璃,让建筑的室内外保持通透。屋顶采用反梁,室内天花保持水平。没有使用常规的屋面处理方式,而是采用无土栽培方式种植了水稻,此时,反梁成为保持水面的隔档。屋顶水稻与建筑周边的稻田融为一体,让建筑消隐,同时也给了建筑鲜明的个性。
△ 餐厅 ©金伟琦
餐厅旁边,应业主的要求增设了小型的泡池。泡池位于崖口,具有绝好的视野。在清晨,餐厅和泡池朝向东方,是迎接日出第一缕阳光的绝佳位置;在傍晚,透过餐厅室内温暖的灯光,及室外平台上的烛光,一种罗曼蒂克式的气氛油然而生。
△ 步行小径沿原有田垄布置,朴素自然 ©金伟琦
△ 餐厅隐于稻田中 ©金伟琦
△ 餐厅是观日出的绝佳地点 ©金伟琦
景观:尊重环境,质朴自然
本项目的场地具有一种特殊的气质:三面有山,东面开敞,山林环抱着中间的一片稻田,有一种世外桃源的氛围。这里不是城市,是当代都市人向往的“诗与远方”之地。因此,本项目的景观设计希望尽量少的城市化元素,质朴的乡野气息是核心。
△ 稻田中的小径连接书吧和餐厅 ©金伟琦
稻田被完整保留,原来位于村落和稻田之间的道路被移到新建筑西侧,建筑与稻田之间得以更直接的联通。新开辟的步行小径串联几个建筑体,它们依循原有的田垄和林间小路而设。路面不追求完全的平整,条石和砧木是主要的路面材料,人行走期间,轻松但需要稍慢的步速和关注脚下。民宿和公共建筑周边的区域多为硬质铺装,这里采用了本地的青石碎拼,或利用场地中老建筑遗留下的基石作为主要材料,既具有在地性,又有淡淡的乡愁。
△ 步道采用砧木和石条铺设 ©何崴
夜晚,照亮小径的光由简单的灯泡提供,它们被安装在低矮的竹棍上,竹棍插在路边稻田里,灯泡上面有个简单的竹编灯罩,用于遮挡灯泡,也让灯光柔和的溢出。这个设计显得简单、随性,但这就是建筑师希望传达的气质。
△ 夜晚鸟瞰 ©金伟琦
△ 灯光以建筑内透光为主 ©金伟琦
结语:主客不分,山人之境
巴谷宿集的建筑设计并不追求一种新奇的造型,它更多是讨论建筑、自然和人之间的关系与互动。场地原始的自然条件被尽力保留,建筑以一种“点”的方式加入空间,成为视觉和行为的锚点。最后是人,他们游走在建筑和山水之间,从主客二分到逐渐成为风景的一部分。时间变慢,自然、建筑和人也在不知不觉间成为一体。这也许就是中国古人所追求的“山人”之境吧。
△ 巴谷宿集全景 ©金伟琦
巴谷宿集建成后,凭借优越的自然环境迅速走红,在业内引起了不小的反响,成为了不少游人的“打卡地”。其利用乡村闲置资产,以新业态、新设计进行激活的模式也成为了当地农村“三变改革政策”的重要案例,为当地乡村发展提供了一定的参考。这也是得益于政府、业主、运营方、设计方多方合作,共同努力所取得的成果。
△ 瞭望塔 ©金伟琦
△ 总平面图
△ 飞茑集民宿负一层平面图
△ 飞茑集民宿首层平面图
△ 飞茑集民宿二层平面图
△ 飞茑集民宿剖面
△ 元白民宿南区首层平面图
△ 元白民宿南区二层平面图
△ 元白民宿西区首层平面图
△ 元白民宿西区二层平面图
△ 书吧轴侧爆炸图
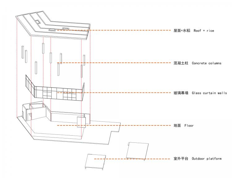
△ 餐厅轴侧爆炸图
项目信息
项目名称:重庆垫江巴谷宿集建筑设计
地点:重庆市垫江县十路村
业主:垫江县兴垫实业有限公司
运营方:宿集营造社
主持建筑师:何崴、陈龙
项目建筑师:梁筑寓
方案设计:刘明阳、桑婉晨、曹诗晴、李婉婷、华孝莹、张天偃、李俊琪、李虹雨(实习)宗振振(实习)、尹欣怡(实习)
深化设计:林燊(建筑)、郭建生(结构)
驻场设计师:刘明阳
合作单位:北京华巨建筑规划设计院有限公司
建筑及景观设计:三文建筑(www.3andwichdesign.com)
室内设计:STUDIO QI、若凡工作室Rovvon Studio
景观顾问:李国钧
建筑面积:2500平米
设计时间:2019年-2020年
建成时间:2020年7月
摄影:金伟琦,何崴

BIM建筑网











































