在东京市中心火车站前的北花园正迎接着宁静、舒适和阳光。
该地块毗邻东京目黑区的一个火车站,其东边有一条高架铁路,西边有一座相邻的建筑物,在北边的道路外是一片森林,这只能在车站周围看到。越过森林,你会看到涩谷市和新宿区。
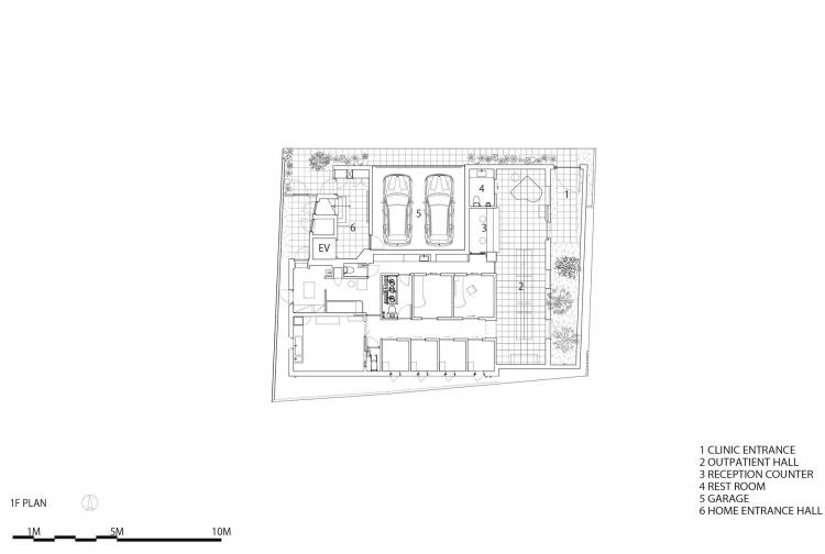
这座两户家庭的房子,首层是一家诊所,二层以上的每层楼供每个家庭使用。我们决定设计三个特点不同的花园。
进入一层通往诊所的大门时,一个充满落叶乔木和石头铺成的花园欢迎访客。当你向上看时,你看到的会是晴朗的天空,因为落叶乔木巧妙地隐藏了相邻的其他元素。你会感觉你正参观的是一座单层建筑。这个花园为访客提供了轻松的氛围,而不是给人以威胁的感觉。
二层是祖母居住的地方。为了阻断火车的噪音和附近建筑物的干扰,这里的居住空间设计成面向南侧由6米高墙壁围合的庭院花园。庭院的外墙大致是用油漆或木板完成的,可以令噪音在墙壁上反射时扩散开,从而实现一定程度的安静。
三层主要供年轻家庭使用。由于北边是一大片森林,远处是涩谷和新宿,因此我们设计了面向森林的宽阔的开放空间和露台。但是,我们被要求用隔墙和一个深檐将露台围合起来,以阻隔来自火车和附近建筑物的噪音。另一方面,延伸屋檐和竖起墙壁,这样我们自己就会让森林蒙上阴影。
为了使自然光能照射进森林,我们对建筑物的边缘进行了圆角处理。结果,建筑物的室内变成了一个类似洞穴的空间,它包围着你,填满了空间,让空间充满安全感。从技术上讲,圆角形状提高了天空的可视率,减少了从前方道路往上看时,建筑物的威吓感。
△ 总平面图
△ 一层平面图
△ 二层平面图
△ 三层平面图
项目信息
项目类型:混合用途建筑,诊所,独立住宅
项目地点:日本
设计方:IKAWAYA Architects
面积:452m²
项目年份:2020
摄影师:Akinobu Kawabe
主创建筑师:IKAWAYA Architects
设计团队:Atsushi Ikawa, Jin Kitazawa, Yuki Imada
结构工程师:yAt Structural Design Office
机电工程师:Zo Consulting Engineers
景观设计顾问:SOLSO
施工方:EIKO CONSTRUCTION

BIM建筑网































