△ 杭州临安·风之谷户外自然学校鸟瞰效果图 ©GWP Architects
“希望孩子们能带着他的梦想像一架童年的纸飞机一样放飞到大自然,在这里能感受到不同于课室学习的乐趣和包罗万象的户外知识。这是我们设计并建造这所户外自然学校的初衷。也希望通过这个设计赋予这里的学生一种崇尚自然和勇于探险自然的精神。”
——张国威 John Zhang(风之谷户外自然学校项目主持建筑师,GWP董事合伙人)
△ 项目区位 ©Google Earth
临安·风之谷户外自然学校位于杭州市临安郊区广阔的自然草坡之间,旨在为青少年创造一片满足户外运动的大本营。周边自然环境优美,拥有大面积的绿地与公共活动区域,场地北侧现状为山坡,南侧和西侧为待建设乡镇道路。
△ 场地周边现状 ©GWP Architects
虽然场地周边基本为未建设用地,自然环境保留完好,但可供建设的用地范围极其有限,场地用地红线面积只有2804㎡,因此,为了满足项目功能,容积率需要做到接近2.0,这对于正常标准只需要做到0.8的学校建筑类型来说,空间密度无疑是大大超出通常情况的,这也成为了本次项目的主要设计挑战。
△ 形体生成分析 ©GWP Architects
为了应对这一挑战,设计团队从多视角进行了分析与思考。
首先,从“户外自然学校”建筑群体的整体概念上,学校建筑形态本身应该是一个可以统领完整的大片户外场地、并在形式上充分体现青少年与户外运动精神的存在。由此,我们以承载着青少年的梦想与志趣的“纸飞机”为设计意象,令建筑犹如一只纸飞机般从孩子们的手中起飞,利用视觉冲击力与空间想象力的“通感”唤起青少年积极向上的动力,能够在此“放飞梦想,快乐成长”。
△ 主入口透视图 ©GWP Architects
在“纸飞机”概念的基础上,结合具体的功能、流线、规范、材料等要求,通过分割、推移等体量操作手法,将设计概念落实表达。使得临安·风之谷户外自然学校既是一个实用的物质空间,同时又是一个文化的载体。
△ 南立面效果图 ©GWP Architects
临安·风之谷户外自然学校采用“夏令营”的教学模式,在教学中更加强调培养青少年的健康体质与健全人格,更加追求探索能力与互助精神,这是一种区别于传统的对话建构式的教育与学习模式。
为了适应新的学习模式,同时能满足学生的兴趣与能力的多元化发展,对应的建筑空间也应该是情景式的、开放的、灵活的与动态的。学校的宿舍区与教学区在各个标高上都形成有机联系,组织便捷清晰的交通流线,同时注重建筑空间的创造,使得各功能区之间动态、高效串联。
△ 夜景鸟瞰图 ©GWP Architects
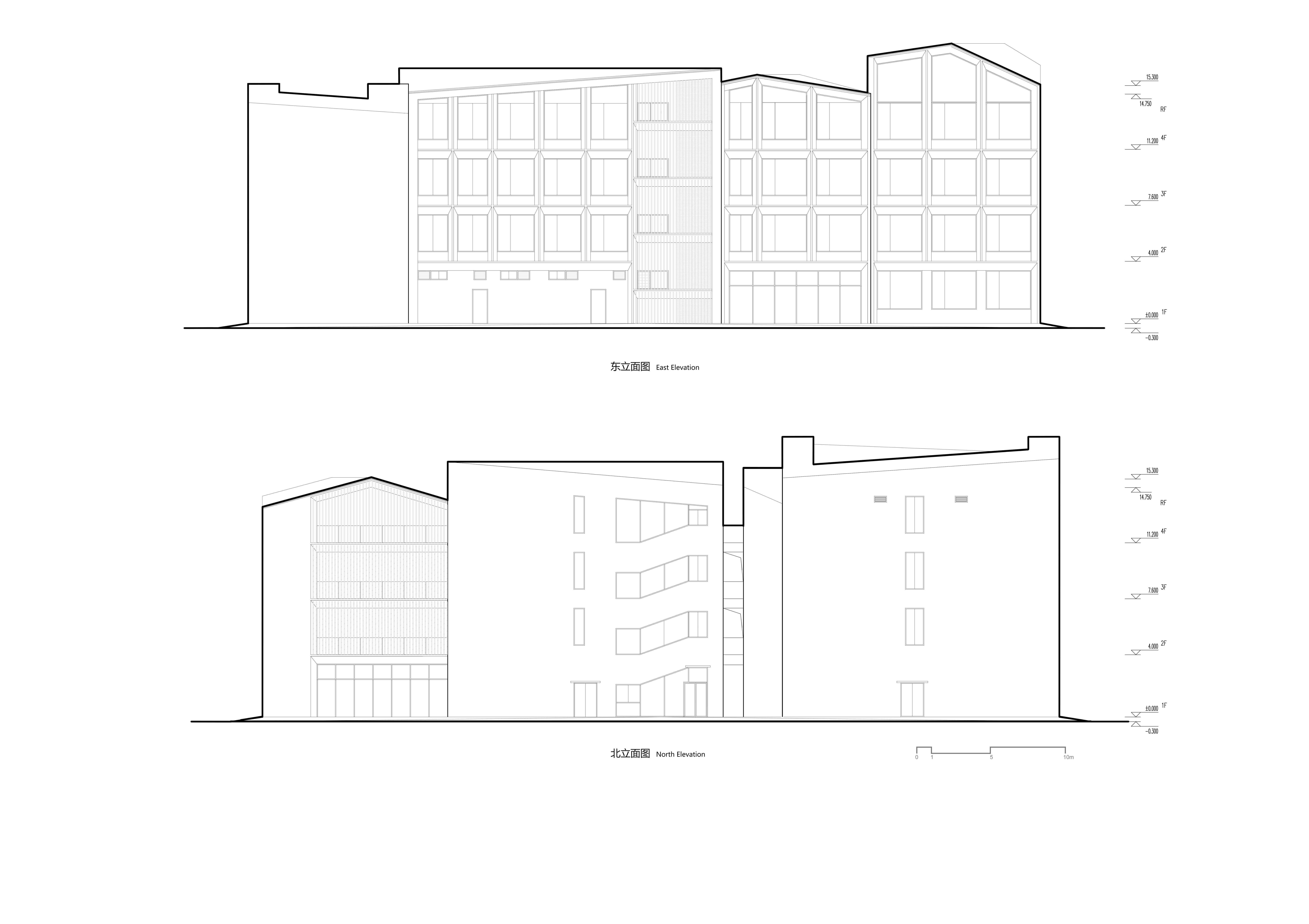
建筑屋顶高低错落,有序排列,折面交错的屋面也跟背后的山体轮廓相得益彰。建筑立面变化丰富,白色与木色冷暖对比,格栅与玻璃虚实对比,在强烈反差中求得互补和满足的效果。
△ 景观空间方案示意效果图 ©GWP Architects
景观设计也充分考虑了场地现状、交通流线以及青少年充满活力的特点,将场地设计为观赏、休憩、交流、运动为一体的多样性景观空间。景观延续建筑屋顶造型特色,充分与建筑相互呼应,使建筑与生态环境良好融合。
△ 屋顶花园效果图 ©GWP Architects
另外在用地极度紧张的条件下,利用屋顶空间,创造了三个开阔的屋顶花园,可以成为集体活动的舞台,也可以激发自发的活动和多样的事件,成为对话的场所、文化的载体。
从学习模式到建筑本身,临安·风之谷户外自然学校都在突出学生在学校空间中的主体地位,努力赋予建筑蕴含教育的深度,希望建成后学生们都可以在此“放飞梦想,快乐成长”。
△ 西立面效果图 ©GWP Architects
“投资建设这个户外自然学校,我们希望让孩子们回归内心深处最自然、最纯真、最简单、最快乐的地方,希望孩子在这梦想学校中可以舒适、自由而快乐地学习和接触自然,能在阳光下茁壮成长。”
———邹君君(风之谷户外自然学校发起人)
△施工现场 ©GWP Architects
△施工现场 ©GWP Architects
△施工现场 ©GWP Architects
△总平面图 ©GWP Architects
△首层平面图 ©GWP Architects
△二层平面图 ©GWP Architects
△三层平面图 ©GWP Architects
△四层平面图 ©GWP Architects
△立面图 ©GWP Architects
△立面图 ©GWP Architects
△剖面图 ©GWP Architects
△墙身大样图 ©GWP Architects
项目信息
项目名称:临安·风之谷户外自然学校
项目地址:中国,浙江,杭州
设计时间:2019年5月-2020年1月
项目进展:项目正在施工阶段,预计2021年完工
用地面积:2804㎡
建筑面积:5362㎡
建筑设计:GWP Architects,源尚设计咨询(香港)集团有限公司
主持建筑师:张国威 John Zhang,Ping Wang
设计团队:JohnZhang,Ping Wang,JackleLuo,Xiangjun Huang
施工图设计:莫伯治建筑师事务所
业主单位:杭州风之谷旅游发展有限公司
主建筑材料:混凝土,玻璃,铝,涂料
项目设计、图片、文字,版权归 GWP Architects所有,侵权者将被追诉。

BIM建筑网
























