项目背景
深圳罗湖翠园中学东晓校区腾挪学校由深圳大学建筑设计研究院有限公司何川建筑工作室主持建筑设计。图纸深化与建造方为中建科技,业主为深圳罗湖区政府。项目采用EPC设计建造一体化模式,极大缩短了建设周期并保证了工程质量,有效控制工程造价,在3个月内完成了设计及建造并投入使用。构成该项目的轻钢箱体单元模块未来可以拆卸后异地建设,满足可持续发展的需要。
基地环境
本项目基地位于深圳罗湖区东晓街道东湖路翠园中学东晓校区南侧,区位处于高密度环境中,狭窄局促:东侧临东晓基业临时项目部,西侧临阳光明居(小高层住宅),南侧临航佳大厦(商业办公), 北侧临翠园中学东晓校区操场及主入口(学校南门)。周边交通北侧临春和路,为唯一对外市政道路,且西行为尽端路,基地东北角为一大榕树。
△ 基地鸟瞰
设计构思
深圳罗湖翠园中学东晓校区腾挪学校设计及建造中,我们综合考虑了现时及未来教学模式、使用者行为模式、在地气候、生态节能、可持续发展等因素,以中建科技的轻钢盒子为基本构成模块,将架空活动区、二层遮阳中庭、宽走廊与教学模块结合,创造不同特征的多义性空间,并保留场地原有树木,形成具有在地性、针对性、趣味性和适应性的教学场所。同时探讨在满足现有教学基础上,如何去激发学生的潜能、释放学生的天性,使学校成为具有归属感的场所。在整个项目过程中,我们设计方始终与建造方、使用方一体化协作,在控制造价及建造时间的前提下,通过建构可控的、高质量的设计建造一体化体系,以装配式的建造方式满足深圳速度和深圳质量的可持续发展的要求。
△单元模块施工
△单元模块搭建后形成的空间框架
△设计、建造、使用方现场协作
保留基地原东北角大树,塑造具有自然场所感的校园入口空间,是校内外空间的良好缓冲过渡,也是对原有基地环境历史的尊重和延续。
△东北角鸟瞰
结合入口中庭设计覆盖穿孔板天顶的通高空间,形成空间渗透、光影变幻的空间场所,使人经过局促拥挤的校外环境后,进入校园时便感受到豁然开朗的感官体验。
△主入口中庭空间
△主入口中庭空间
设计底层架空活动区,打破传统学校单一性功能空间,形成可多义使用的复合空间,并与东侧入口中庭和西侧庭院形成互相渗透的空间形态,并顺应深圳亚热带气候条件,创造良好的通风环境,有益于师生在各种天气下使用。
△主入口架空层等候空间
△底层架空活动区
△底层架空活动区
在该项目中,我们设计轴线尺寸为3米的外走廊,提供给学生更多的活动交流空间,简洁的线性灯带设计和黄色穿孔板吊顶与装配式工业风相呼应。
△教室外走廊
△外走廊夜景
教室以单元模块进行组合,针对学生的使用需求与行为模式,在靠走廊侧外墙设计一体化的储物空间,便捷使用,最大化利用有限的校园空间,并以模数化的单元构件形成内外界面,此界面可根据现时及未来的使用需要进行灵活分割。
△教室内景
△模块单元分割构件安装
△内外分割界面由模数化构件组成
△学生课间使用场景
岭南建筑大师佘俊南与莫伯治所设计的亚热带建筑中对于外遮阳的设计研究,在我们的设计中也有所借鉴,但我们所采用的的外遮阳是模数化的构件。建筑主体色彩采用清爽的蓝色系与深灰色系,在炎热的深圳地区给人以清爽和亲近感。结构构件采用深灰色,同时在吊顶等局部采用适宜于青少年心理特征的暖黄色,增加校园空间的活泼性和丰富度。屋顶设计为轻钢结构龙骨设备层,既满足遮阳、提供空调主机悬挂位置的需求,又减小对教室屋面的震动影响。
△外立面遮阳构件
△屋顶遮阳构件
△外立面细节
在该项目中,我们在建筑二层设计了阅览室,并在阅览室旁布置采光中庭,中庭顶部覆盖黄色穿孔板进行遮阳。中庭结合阅览室在校园二层形成了一个半开放式的公共场所,可以承载阅读、活动、展览等功能,打破了传统校园里仅有交通组织与教室单元结合的布局。同时阅览室界面可以打开,与中庭结合形成更大的空间,满足学校的多样性需求。
△二层中庭空间
△二层中庭空间
△学生活动场景
△学生活动场景
庭院的置入针对学校的教学特点,探讨适合学生行为模式的空间尺度与教学单元,满足学生的课外活动要求,更有利于校园的通风和采光。设计带顶楼梯,避免传统无顶外挂楼梯在雨天使用时湿滑和拥挤的危险,更适应深圳亚热带的气候特征。
△庭院内景
△庭院内景
△庭院夜景
结语
在2019深港城市/建筑双城双年展龙岗分展场“闪建学校”实验项目中,我们曾提出在满足社会迫切需求的背景下,应该如何认识速度、实现快速迭代、体现整体效益,形成可控的设计/建造一体化的系统,并与未来数字化、智能化的发展路径相互整合,寻找适应中国特色的建造模式。既要考虑社会发展的整体要求,也要尊重每一个个体。这次的项目实践从某种程度上来讲,也是对2019深双所进行理论与实践探索的延伸与发展。
此次罗湖翠园中学东晓校区腾挪学校,既可用于改造腾挪,也可以单独快速增加学位。此外,当需求改变时也可以异地建造,重复使用单元模块,也可以将该项目改造为社区活动中心、日间养老设施、青年公寓等其它类型建筑,实现可持续发展的要求。
项目图纸
△总平面图
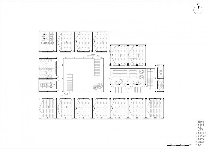
△一层平面图
△二层平面图
△剖面图
△空间构成分析图
项目信息
项目名称:深圳罗湖翠园中学东晓校区腾挪学校
项目类型:建筑
项目地点:深圳市罗湖区
设计单位:深圳大学何川建筑工作室
设计单位网站:http://www.suiadr.com/indexhome.asp(深圳大学建筑设计研究院有限公司)
主持建筑师:何川
设计团队完整名单:马文龙吟、文惠、姜睿、李婉、陈婧、费朦妍、宋博文、闵理卉、苏泽勇
业主:深圳市罗湖区政府
合作方/建造方:中建科技有限公司
材料:钢结构主体、铝塑复合板外墙、保温岩棉、铝合金穿孔板吊顶
摄影师:蒿莱
建成状态:建成
设计时间:2020.6-2020.9
建设时间:2020.7-2020.9
用地面积:3862㎡
建筑面积:3516㎡

BIM建筑网

































