韩泰科技园区旨在体现韩泰公司作为全球品牌的风貌与姿态,并体现公司在工程制造上的杰出成就。该园区是一栋10层的大楼,内部容纳了韩泰总部及其附属子公司,同时还有一个极为先进的175座商用汇报厅。
建筑师围绕中庭设计了螺旋的空间结构,以形成不同的层高。同时,这种错层的设计还可以促进员工间的视线交流和合作沟通,并使得自然光照可以更好地进入室内。
△ 分析图
建筑师在中庭设置了一个由Jason Bruges工作室设计的,名为“数字叶序”的大尺度艺术装置。当来访者进入空间内部顺着扶梯上行时,就可以感受到沉浸式的艺术作品。这个装置试图寓意树冠,从而给室内带来一丝自然之感。而当来访者通过这个艺术装置到达旋转的中庭空间时,其可以瞬间感受到强烈的灯光、阴影和色彩变化。接待空间同样也设置了一个三联画艺术装置,名为“动态胎面”。
建筑师在大楼的立面设计上,进行了细致地考量,使得进入空间的自然光得以最大化。建筑师还根据不同的室内照明需求,采用了不同密度的立面玻璃百叶窗。例如,建筑师给社交空间提供了最大的自然照明,并使其空间节奏尽可能地变得舒适。但在工作区域的照明设计上,建筑师就采用了智能的人工照明系统,以精准控制其照度。这样一来,大楼的立面设计在满足内部空间照明需求的同时,还形成了一个特殊的视觉效果。
建筑师在材料面板的选择上,采用了温暖的配色方案,以搭配自然且灵活的工作空间。自然这一概念,在该大楼的设计过程中起到了极为重要的作用。建筑师还在各层布置了大量的室内树木,使得使用者的整个空间旅途都有绿意相伴。而中央的中庭空间,则是专门为非正式会面和中途休息所设计的。建筑师试图打造一个益于合作和沟通的办公空间,并使得其可以满足多种不同工作性质的需求,从而营造一个激发灵感的创意空间。
建筑师希望营造一个打破传统空间等级的室内环境,并同时将这种平等传递到公司的内部结构中。例如,公司的高层就和各自的团队在同一层的空间进行办公。而顶层的行政商务休息室则旨在为公司负责人们提供一个非正式会面的空间,以促进灵感的碰撞与交流。同时,建筑师还在大楼内设置了健康关怀相关的基础设施、员工餐厅、健身房、景观露台和屋顶休息区。而屋顶花园的视野则可以俯瞰整个板桥地区,并为各类公司活动提供专属空间。
设计图纸
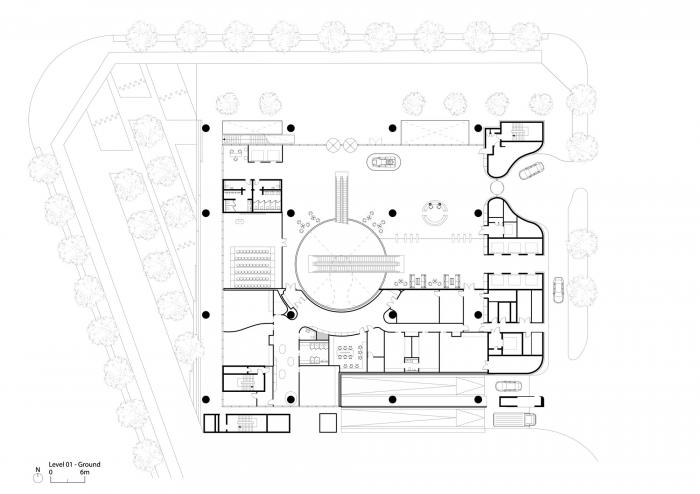
△ 一层平面图
△ 地下一层平面图
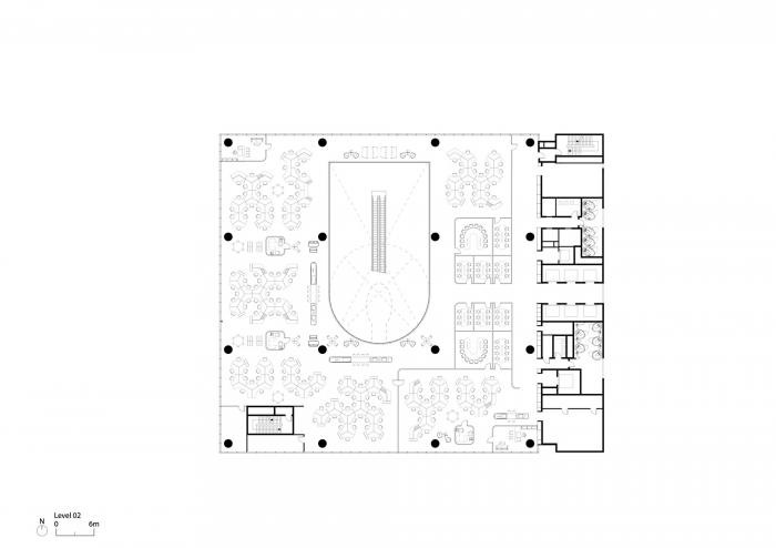
△ 二层平面图
△ 三层平面图
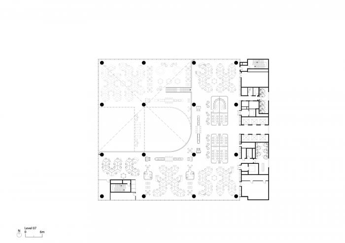
△ 七层平面图
△ 八层平面图
△ 九层平面图
△ 十层平面图
△ 东立面图
△ 西立面图
△ 北立面图
△ 剖面图
项目信息
项目类型:办公设施
项目地点:首尔,韩国
建筑师:福斯特建筑事务所
面积:47919m²
项目年份:2020
摄影师:TIME OF BLUE
项目团队:David Nelson, Nigel Dancey, Iwan Jones, Heidi Han, Kristine Krueger, Esma Karkukli, Paola Sakits, Huasop Lee, Karyee Tam, Jeonghyun Kim, Narta Dalladaku, Carl Bonas, Olivia Johnstone
业主:Hankook Tire & Technology Co. Ltd.
工程设计:Piers Heath, Chris Trott, Anis Abou Zaki, Byron Mardas
本地合作室内设计:Dawon Design, Emoji House
结构工程师:SEN Engineering Group
机械工程师:Woowon M&E
机电工程师:Hyeob-In Electrical Consultant
景观设计顾问:Junghyun Design Build Architects Cooperation
灯光设计:ALTO
能源及环境顾问:Design EcoLead
消防顾问:Hanbaek F&C
土木工程设计:C.G. Engineering & Consulting
交通设计顾问:Shin Han Engineering & Consultant
垂直交通设计:VT Korea
风洞测试:TE Solution
噪音及振动工程:Korea Construction Environment
施工管理:ITM Corporation
总承包商:Dongbu Corporation
媒体艺术作品:Jason Bruges Studio

BIM建筑网







































