广岛中心区域有许多追赶潮流的餐厅和商店,并且计划建造更多的商店和住宿项目。建筑师出于对建筑本身盈利的考量,充分利用了约35坪的场地,它是一种市区特有的正面狭窄并向后延伸的地块,因此建筑师需要减少空间的浪费,并设计一种理性建筑,同时也让该项目成为一个区域标志。
建筑的框架本身十分简单,它与场地的形状相符,并且在小路的相反面有着一个开口,以此保证建筑向路面的隐私性,这一设计也对住宿设施至关重要。一层的商店在场地内侧设有顶灯,以此确保这里在白天有着充足的光照。
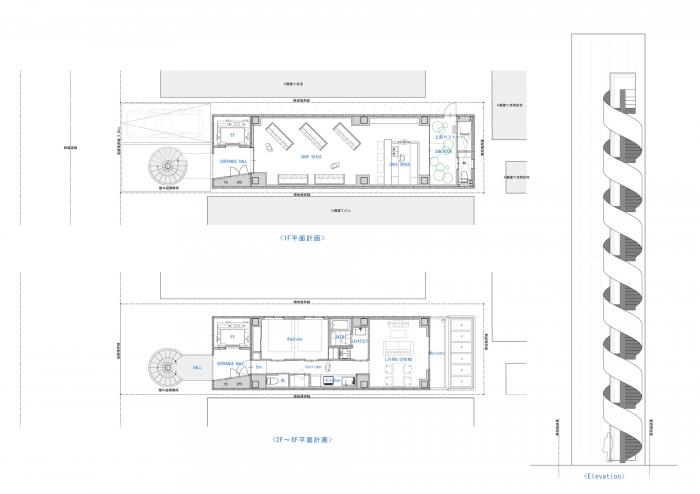
设计方面,建筑师则建造了位于建筑正面的室外避难楼梯,这也是一个现实且在法律上必不可少的设计元素。通过螺旋状阶梯以及其扶手的空间形成,建筑的无机长方体表皮被赋予了些许有机光泽,这也让它看起来更加过目难忘。
建筑夜景
△ 平面图
项目信息
项目类型:酒店,商店
项目地点:广岛市,日本
建筑师:CAPD
面积:403m²
项目年份:2020
摄影师:Kazunori Nomura
设计团队:Kazuo Monnai, Hirokazu Ohara, Dai Tsunenobu, Kazuya Masui
规划与管理:breakfast
建设:TS HAMAMOTO
微信公众号:xuebim
关注建筑行业BIM发展、研究建筑新技术,汇集建筑前沿信息!
← 微信扫一扫,关注我们+

BIM建筑网



























