△ 项目概览
近十年来,伴随着经济的腾飞与高速城市化,剧场如雨后春笋般在中国遍地开花。多数剧场外表夸张、功能单一,且远离大众而无法真正融入城市生活,形成一种公共资源上的极大浪费。OPEN通过竞赛赢得了深圳坪山新区剧院的设计项目,这给我们一个机会批判地去研究和看待中国剧院的发展历程,并由此出发探索演艺建筑的一种新的可能。
△ 鸟瞰©曾天培
△ 总平面图
在甲方的鼎力支持下,我们重新设计了任务书,在原本要求的单一剧院功能里,加入了更多与演艺相关的市民文化教育空间,以及餐厅、咖啡厅等经营空间。一个公共步道串联起一系列对公众开放的花园,与建筑紧密地交织在一起。通过打破通常“地标”式的剧院建筑类型,我们希望这个项目成为一个功能复合的表演艺术中心,不但在运营上更可持续,同时也成为真正的公共文化建筑,以包容和开放的姿态为所有人提供一个特别的、有吸引力的城市空间,而不仅仅是服务于买票看演出的人群。
△ 流线分析
大剧院不必外表夸张——OPEN设计了一个“戏剧方盒”——在整体简洁、干净的外表下,容纳了极其丰富的内容。建筑的核心是一个1200座的专业歌舞剧院,它的体量被红褐色木板所包裹,在室内外均清晰可辨,舞台台塔穿出屋面,成为屋顶花园的背景。
△ 形体分析
△ 远景©曾天培
△ 从公共步道到屋顶花园©雷坛坛
△ 剧院平台©雷坛坛
△ 东北角半室外空间©雷坛坛
△ 被红褐色木板包裹的台塔©雷坛坛
△ 半室外空间©曾天培
围绕着剧场核心,一个蜿蜒的公共步道系统(public promenade) 将“戏剧方盒”切开一道裂缝,引导市民游走于一系列丰富的公共空间序列里,其中既有专业的黑盒子小剧场、排练厅,也有面向公众的演艺培训空间、室外小剧场、咖啡厅以及各层的室外花园。沿着公共步道,即使在没有演出的时候,人们也可以从地面的广场一直漫步到开阔的屋顶花园,空间与自然交织所带来的惊喜和色彩随着探索的深入而逐渐展开。
△ 主入口©雷坛坛
△ 入口大厅©雷坛坛
△ 黑盒子小剧场室外休息大厅©雷坛坛
△ 黑盒子小剧场室外酒吧©雷坛坛
△ 舞蹈室©曾天培
△ 体验中心楼梯©雷坛坛
△ 大剧场©雷坛坛
△ 大剧场观众席 ©雷坛坛
△ 大剧场一侧挑台©雷坛坛
△ 黑盒子小剧场©曾天培
一系列相互对应的元素——正式与休闲、高端与大众、传统与前卫,在这个综合性的演艺中心里若即若离可分可合,又相互支持与互补,在内容和空间上都构成丰富而有趣的体验。
△ 从街区看公共步道©雷坛坛
这栋建筑也是一个疏松多孔的盒子,深入在建筑不同高度上的户外花园与平台,引入丰富的植物,创造宜人的室内外环境。绿化屋顶大量减少了热负荷;建筑表皮是为深圳气候条件而设计的一种双层复合生态表皮,外层的V形剖面单元的穿孔铝板,有效地遮掉夏日的阳光,并保持着足够的视觉通透性与自然通风。结合一系列节能环保措施,我们也希望突破剧院建筑作为高能耗建筑类型的固有思维。
△ 悬挑体量为城市广场创造了荫凉©曾天培
△ 悬挑体量下的市民活动©曾天培
△ 城市广场©雷坛坛
△ 城市广场©雷坛坛
△ 穿孔铝板立面细节©雷坛坛
△ 双层铝板立面细节©曾天培
△ 屋顶花园鸟瞰©曾天培
△ 屋顶花园©雷坛坛
△ 小礼拜堂©雷坛坛
△ 南侧主入口©曾天培
△ 晨雾中的东立面©曾天培
设计图纸
△ 轴测图
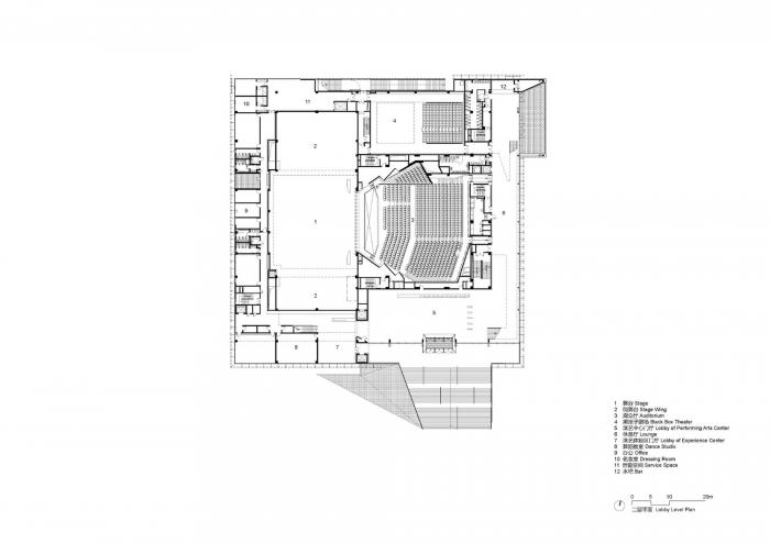
△ 二层平面图
△ 三层平面图
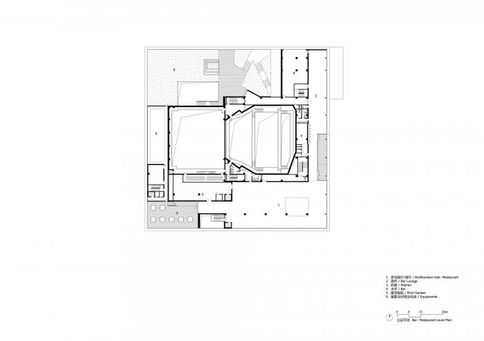
△ 五层平面图
△ 剖面图
△ 展开剖面图
项目信息
项目类型:文化建筑
项目地点:深圳,中国
建筑设计:OPEN建筑事务所
面积:23542m²
项目年份:2019
摄影师:曾天培,雷坛坛
主持建筑师:李虎,黄文菁
项目建筑师:叶青,周亭婷
设计团队:张汉仰,韩如意,邢舒,罗韧,Andrea Antonucci, 孙心莹,张畅,贾瀚,吴南芃,张浩,崔雨柔,Angela Nodari
合作设计院:深圳欧博工程设计顾问有限公司(项目负责人:丁荣,刘振锋)
幕墙顾问:上海旭密林幕墙有限公司
剧场及声学顾问:黄展春剧场建筑设计顾问(北京)有限公司
舞台机械顾问:浙江大丰建筑装饰工程有限公司
照明顾问:北京优雅士照明设计有限公司
代建方:招商地产
业主:深圳市坪山区人民政府

BIM建筑网










































