效果图 © GWP Architects
GWP以国际竞赛第一名获得项目设计权
GWP团队的设计用“无限流动”的概念把停车、人车动线和商业布局巧妙的匹配,把功能和优美的建筑形态完美的融合,未来将成为东莞具有标杆意义的停车楼作品。
—— 刘波博士,教授级高级工程师,东实集团董事长
1 项目背景:CBD试点项目
区位图 © GWP Architects
区位图© GWP Architects
东莞停车楼基地规划面积4844平方米,总建筑面积20575平方米,是东莞城市形象更新、舒缓城市交通压力的第一个试点停车楼项目。该项目的选址位于莞城区石竹路与体育路交界处,属于东莞市一心两轴的重点核心城区。基地周边绿色景观环绕,距离东莞市政府直线距离约200米,并且周边集合了市政府行政、办公、商业,酒店等城市功能,是展现东莞城市文化的重要场地。
该地区长期以来一直有停车位不够,地面道路占用停车等多重交通隐患的问题。GWP团队从项目的实际功能需求出发将创新型的设计理念与城市新地标的整体形象相结合,力图在解决该区域停车拥堵问题的同时为都市通勤者构建一种便捷舒适的交通体验;创建一个令人们可驻足停留的城市新场所。
2设计构想:无限流动
概念图 © GWP Architects
概念图© GWP Architects
概念图 © GWP Architects
本案概念灵感结合了东莞水乡独特的蜿蜒水脉以及项目地所在的“一心两轴”核心位置,提出以延伸的两条城市主干道汇为流水灵动般的丝带,将周边无序停车的现状重整梳理、扭转、构建成停车楼的空间与表皮语言;以无限流动回旋的趋势组织车行动线;从而,两条各具动感的曲线螺旋上升交汇而形成停车楼整体如城市雕塑般的建筑形象。
该项目的设计以停车楼独有的车流动线作为牵引力,通过楼体持续循环产生体量,最后,以场地的几何形状进行优化和变形,得到纯粹、简洁的建筑形态。连续且循环的立面“丝带”环绕贯穿建筑的每一个角落,孕育出一系列丰富且多样性的空间形式,在视觉上从内到外地创造出与周边城市环境相融合的建筑语言—享受宁静也尊重并提升周边环境的价值。
效果图 © GWP Architects
效果图 © GWP Architects
“我们想给东莞这座城市带来一些充满生命力的设计,这个建筑就像是这座城市的空间雕塑,为这里的人们赋予空间的愉悦及增添对城市的归属感。”
— 张国威 JohnZhang(GWP主持建筑师)
3 外立面设计:动态曲线与诗意表达
分析图© GWP Architects
GRC节点图© GWP Architects
GRC节点图© GWP Architects
立面设计上团队延续了流水的灵活性,使用了富有动感且轻盈的线性语言,通过连续白色丝带局部转折循环,蜿蜒起伏,层层叠升,形成立面流动变化的美感。在外立面材料的选取上使用GRC呈现出流动曲线独特的肌理,进而与广袤的大地合而为一,互为彼此。日升东方,停车楼将在光影的变化下显现出建筑的柔美,创造一种独特的诗意;华灯初上,随着丝带的流动点亮黑夜的灯光,立面将呈现出蜿蜒起伏流动的变化效果,成为人们归家路上一道亮丽的城市雕塑风景线。
4 高效结构与独立流线
分析图© GWP Architects
设计团队在建筑西南段采用了极富表现力且节省空间的螺旋坡道结构,将车辆高效快速的从一层引入六层,大大提高了停车的效率。同时,螺旋坡道与外立面无缝连接,实现了建筑外观的高度统一与延续性。建筑采用斜板停车结构,以一个倾斜盘旋车道为核心,环绕与贯穿了所有的内部空间,车道主要供车辆的上下行,而车道的两侧为停车区域。根据数据测算,斜板停车结构比平通的平板停车结构利用率提高了30%,可以增加25%的有效停车位,从而更加巧妙高效地解决了本案周边市中心地区一位难求的停车拥堵问题。
分析图 © GWP Architects
在平面动线设计上采用了人车分流,并针对所有的车辆类型设置了独立的流线系统,主要分为商业车辆流线,社会车辆流线与微巴车辆流线,以保证面对停车场内突发事件的灵活应对。同时无限循环的流线内部设有自然光线可穿透的中庭空间,极大的丰富了人们停车后的视觉体验与促进提升了停车楼内部的空气流通。由车辆行驶带来的汽车尾气经由自然呼吸的中庭空间输出到室外,周边的氧气通过丝带环绕的缝隙补充进来,从而形成了空气的良性循环。
效果图 © GWP Architects
效果图© GWP Architects
停车楼项目需要在极其有限的场地条件下,通过创造性设计思路解决项目的动线组织,停车数量,建筑形象,以及商业功能需求等综合问题,尺度虽小但却非常考验设计师解决复杂综合问题的能力,GWP团队提供了一个可平衡这些难点的独特方案,我们期待项目实施落成。
——梅友尧,东实集团规划管理经理,注册城市规划师
5 公共商业空间
在项目的功能方面经过与业主方的多次讨论与论证,设计团队将首二层、负一层及屋顶打造成公共商业空间,为人们在往来停车楼的过程中创造可供停留和体会建筑与城市互动的场所。其中,首二层及负一层为集中商业区域,空间布局可根据需求灵活分割或形成整体零售空间,以便容纳大型业态。设计团队在首层设置南北贯通的步行架空走廊,连通中央广场与南侧的城市公园。开放性的空间使其成为城市慢行系统中的一处有趣节点。而屋顶则被规划为特色商业空间,成为极具吸引力和创意思考的第五立面,与周边景观形成连续的视觉体验和呼应。打破传统对停车楼空间的认知,该停车楼不仅仅实现了在功能上满足车辆的临时储存容器需求,更是产生一个城市新型社区空间和人际关系的发生场所。
效果图© GWP Architects
效果图© GWP Architects
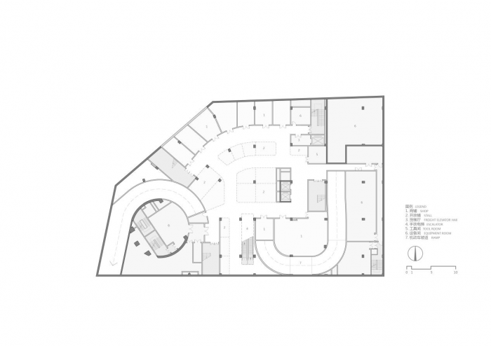
停车楼首层总平面图© GWP Architects
停车楼负一层平面图 © GWP Architects
停车楼二层平面图© GWP Architects
停车楼四层平面图© GWP Architects
停车楼立面图 © GWP Architects
停车楼剖面图 © GWP Architects
停车楼剖面图© GWP Architects
现场图© GWP Architects
项目地址:中国,广东,东莞
项目年份:2019年设计,2020年7月动工
建筑面积:20575㎡
建筑设计:GWP Architects, 源尚设计咨询(香港)集团有限公司
主持建筑师:张国威 John Zhang
项目投资:东莞实业投资控股集团有限公司
总承建商:东莞市莞城建筑工程有限公司
建筑施工图:东莞建青建筑设计院
主建筑材料:混泥土,GRC,玻璃
主创设计师
Guowei Zhang(John)
GWP事务所合伙人 / 主持建筑师 / 总裁
哈佛大学华南校友会董事
华英会DEC青年设计发展计划主席
设计哲学
以诗意栖居,和谐共生的设计理念,传递源自东方传统文化与现代技术融合的设计研究与实践。从研究中思考设计的深度与广度,从多元化的探索中寻求最好的解决方案,并实现项目综合价值平衡的均好成果!
主持项目曾获奖项
2020美国MUSE建筑设计奖最高奖项-铂金奖(美国)
2020 MUSE Design Award: Platinum Winner (US)
2020 德国标志性设计大奖-创新建筑奖(德国)
2020 ICONIC AWARDS: Innovative Architecture-Winner(Germany)
INSIDE 国际设计奖(荷兰)
INSIDE World Festival of Interiors(Netherlands)
世界室内新闻杂志大奖(英国)
World Interior News Awards(UK)
2019年巴塞罗那设计周最佳设计奖(西班牙)
2019 Barcelona DesignWeek – Best Design(Spain)
REARD 全球地产设计大奖(中国)
REARD Global Design Award(China)
2019年圣彼得堡设计周最佳设计奖(俄罗斯)
St. Petersburg Design Week 2019 – Best Design(Russia)
美国《室内设计》杂志 BOY (Best of Year) 室内设计奖(美国)
BOY(Best of Year) Interior Design Award(US)

BIM建筑网































