项目之所在
在南京市外围,有一个以现代主义绿色梦想为规划的新区——浦口。浦口以现代主义的规划模式,布局了很多大型封闭式的住宅社区,整个区域虽然基础设施和道路完善,但是却和其他同类规划的新区一样缺少丰富多彩的公共生活。BAU所设计的浦口文化中心,将公共空间最大化,借此契机打开了公共生活的大门,力图为浦口打造浓郁的都市氛围。
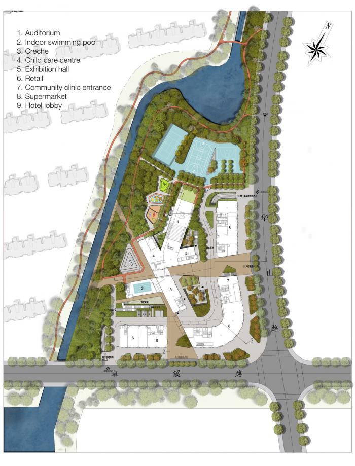
浦口文化中心位于两条主干道交汇处,一条运河围绕着场地,形成后方的边界,这条边界被充分利用、转化成了公共开放空间的绿色网络。
类型提炼
自由演绎的围合式建筑类型构成了此建筑的基本轮廓。建筑的两条边沿着两条街道形成街墙,地块的另外两条则开放,建筑内侧的庭院在主楼的屏障后,远离喧嚣的马路,与更大的公共开放空间网络相连。在沿街的主楼中间各设有一个开阔的入口,提供公众进入庭院的通道,并通向后侧的更大的公共空间。
这种三重式的城市设计肌理为城市贡献了:灵活稳固的底层空间,四层高的中部楼层,以及有点不规则的顶层,共同构成了该项目的形态提取。而内部的庭院空间,一个坡地建筑布置在其中,在保证不减少绿化空间的同时,提供了起伏的特色地景。
浑然一体
将不同的项目整合到一起:在首层沿街设置活跃的零售商铺和服务设施、中部楼层设有一个带有104间客房和办公空间的酒店、顶楼设有2500平方米的育儿园,最后在庭院处建造一个带有报告厅和游泳池的社区中心。这样的浦口文化中心并非只是一个政府服务中心,还是人们心驰神往的地方。
科学建筑
建筑立面由一系列混凝土薄板悬挑形成平台,并在平台装置折叠穿孔的金属遮阳板,回应不同的立面朝向,有效阻挡阳光直射入建筑内部,最大化遮挡了不必要的太阳直射。该建筑良好的通风,充分的自然采光减少了耗能,为员工和访客带来一个惠风和畅的舒适环境。
两者兼得
都说城市设计的作用是即便有一些粗制滥造的建筑,也能确保一个优秀的城市肌理。但我们这个建筑的理念是实现两者的完美结合,不仅为城市做出了积极的贡献,同时也打造了高度舒适的建筑空间和景观绿化。
△ 总平面图
△ 南立面图&东立面图
△ 北立面图&西立面图
△ 剖面图
项目信息
项目状态:2019年竣工
地点:中国,南京,浦口
年份:2016-2019
客户:南京江北新城投资发展有限公司
建筑面积:47,890平方米
建设投资:人民币2.1亿
类型:社区服务中心、办公楼、酒店、商铺、休闲、公共景观
功能项目:能容纳400人的报告厅、市政办公、70间客房的酒店、社区服务中心、早教机构、健身房、游泳池、地下停车场、零售商铺、公共体育和休闲景观等
BAU项目组成员:
建筑组:黄骅、高卫国、Billy Voon、顾佳妮、张德俊、Steve Whitford、James Brearley
景观组:王晨磊、熊娟、陈燕玲、王粲、朱家亮
施工单位:南京江北新城投资开发有限公司
合作设计院:南京金宸建筑设计有限公司
摄影:舒赫

BIM建筑网






















