起:本案位于厦门翔安区大宅火龙果村,由村里3幢不同年代的祖屋和两幢新建建筑组成,3幢祖屋三十年代到七十年代不等,属建筑加室内改造,新的建筑为室内设计。
源:作品重在对儿时记忆的牵绊。屋檐下奶奶的期盼,春天的雷雨,夏天的萤火虫,秋天的晚霞,冬天的凋零,水塘捉泥鳅,四果汤,包粽子,节日里一把凳子等着一场高甲戏或露天电影,晚饭后星夜下纳凉,听着长辈讲着古老的故事。
问:祖屋有两幢已经出现倒塌情况,位置不同,古建大多由老的条石加夯土还有木结构,有趣的是位置不同,留给设计很大的思考,一栋近期古建是闽南传统石条做法,只需加固即可。
思:设计师从小在闽南长大,对于当地的文化与信仰比较熟悉,传统古建如果以修旧如归方式会让建筑过于陈旧,当代生活上已有完全不同的方式,何不顺势而为,以原有倒塌的建筑用一种全新建筑来碰撞,未倒塌进行加固和梳理,比较新的祖屋则进行现场改善与后置灯的植入以达到预期的效果。
解:1号楼倒塌位置为建筑的一进厅和中庭西侧厢房,西侧外墙角石为不规则状态,设计在倒塌处植入一个浅白色墙的小建筑与老建筑形成碰撞,运用几何构成开窗洞,加一把楼梯直达屋顶阳台,仰望星空。原有建筑则采用内套盒钢结构处理,边采用构成手法与结构的巧妙处理形成新墙与老墙的对话。
2号楼倒塌位置为一进门厅和厨房的前半部,原木屋架已快倒,还有一个未倒的大门,中间两处厢房也已倒塌,中间养了一头牛,考虑到建筑位置刚好处于村里的主动线交叉口,设计在一进门厅和右厢房直接套入一钢结构架来支撑原有屋面木构体系,把外部用大玻璃展现以增加通透感的同时,增加邻里关系。中庭天井两处厢房采用1号楼处理方式,简洁明了。
3号楼建筑是以条石和大板石砌筑,设计采用了内套钢结构手法做局部处理和修复,保留最初的感觉,由于石头房子采光不足,采用内置灯光处理以达到家的感觉。三幢古建的室内设计以闽南传承的工艺为主题,打造三栋楼,分别以木、石、瓷为主题植入,增加民俗文化的传承结合。
结语:少年不知乡愁意,再归已是愁乡人。设计师引用闽南民谣为主线,时间是抓不回来的,回忆不回去是本案的主线,通过时空的对话形成的建筑空间来表达思乡之情。
效果图:
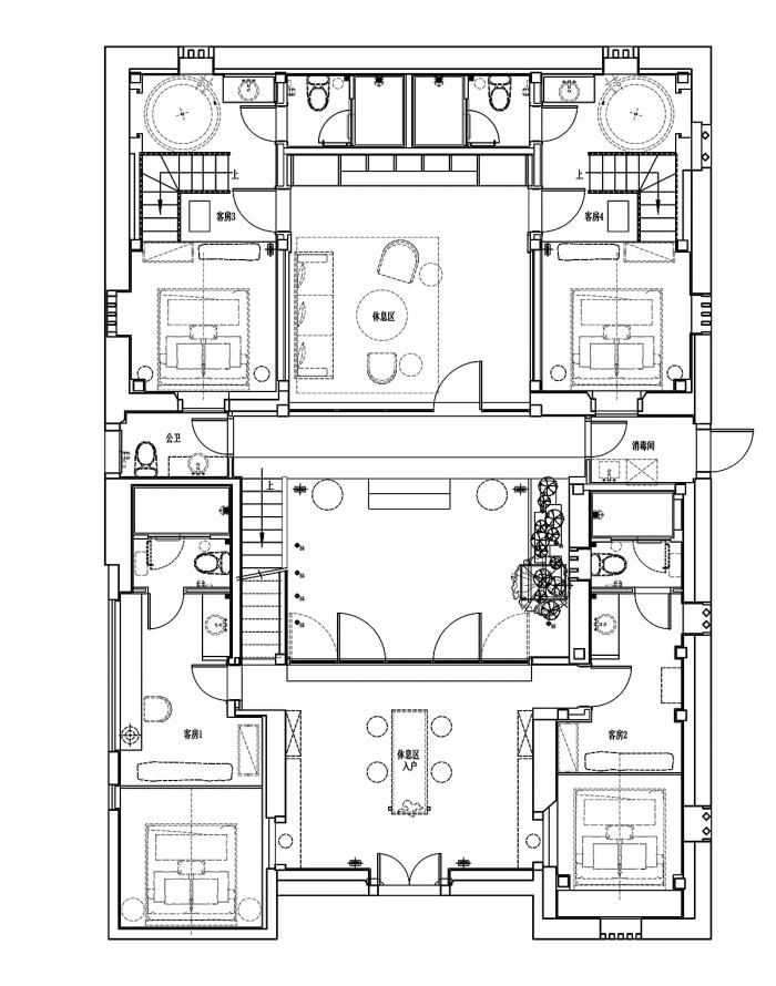
△ 1号楼一层平面
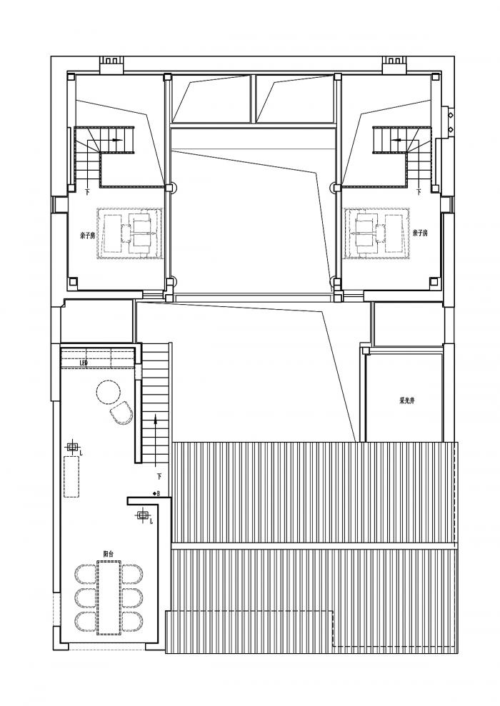
△ 1号楼二层平面
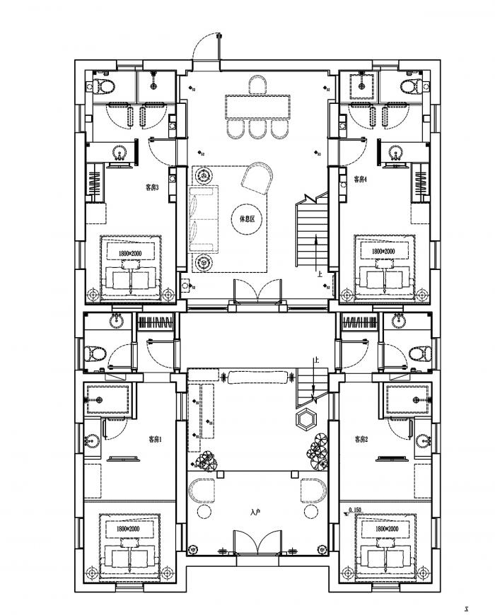
△ 2号楼一层平面
△ 2号楼二层平面
△ 3号楼一层平面
△ 3号楼二层平面
项目信息
项目名称:厦门厢语香苑民宿
建筑事务所:中国美术学院风景建筑设计研究总院有限公司
事务所网站:www.caaladi.com
联系邮箱:[email protected]
主创建筑师:黄志勇
设计团队:林淼,杨建,王杰杰,蒋方鋆
软装设计:林永峰
项目详细地址:福建省厦门市大宅村厦门厢语香苑民宿
项目完成年份:2019年
建筑面积(平方米): 1200平方米
投资单位:象屿集团;翔投集团
施工单位:厦门龙安盛装饰工程有限公司;北闵建设有限公司
摄影师:奥观建筑视觉;科比摄影工作室
灯光顾问:杭州乐翰照明工程有限公司,西顿照明杨萍兰

BIM建筑网

















































