【序】
本项目位于北京市朝阳区东四环,高层旧房,窗户面东,视野开阔,采光较好。
业主是一位阳光帅气的90后单身女孩,一头干净的短发,一身干净的着装,一双干净的眼眸。
面谈当天,当她站在凌乱现场的时候,显得那样的格格不入,还未深入沟通,凭直觉,已经猜到了她想要一个什么样的空间。
有时候,一个人散发的气质,就已传达了微妙的信息——人和空间,气质相匹配才能和谐。
基本的职业素养,还是让我们主动地了解了业主的每一样诉求。她说,房子不大,想要敞亮些,最要紧,客厅要有一壁较大的书架,卫生间可以没有淋浴,但要有一个浴缸,亲朋偶尔会来,有时可能留宿,需有一张简易的能收起来的客床。
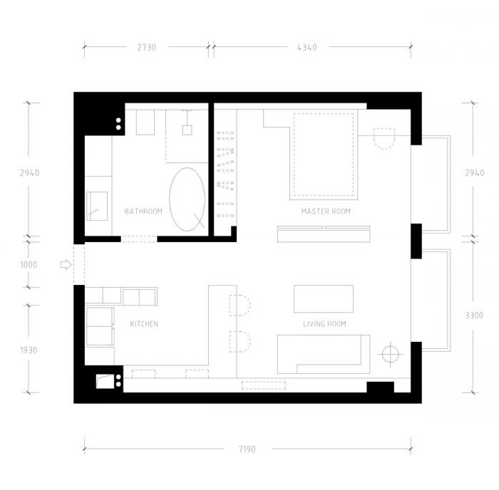
根据业主的诉求,结合现场情况,我们初步梳理出改造前各个功能区的主要问题。
【改造前】
客厅
客厅缺乏收纳柜,物件随意摆放,原来的装修风格缺乏美感,色调过于暗沉,设施已都陈旧。
厨房
厨房与入户区相连,与鞋柜、卫生间相对,界限不明,动静污洁关系暧昧,有入户后需穿过厨房进入客厅的尴尬感,且过于暴露,影响空间整体的秩序感。
卧室
卧室开门即对着衣柜侧面,不仅压迫视线,衣柜还无法做大,进一步导致储物功能不足。
卫生间
卫生间本就狭窄,被入户鞋柜占据部分空间后,显得更为逼仄,功能规划欠佳,进门地上横着一个马桶,使得动线不畅,头顶悬着一个热水器,压抑难当。各种墙体阳角挤压着空间,各种死角藏污纳垢,收纳设计不合理,物品散落各处。就这样已经捉襟见肘,更没法放下一个浴缸。
当然,要解决的不仅仅是以上问题。为了让空间最大化与业主相匹配,我们征得业主的同意后,做了一份针对性的问卷,大到楼盘的基本信息、业主的三观,小到业主有多少本书,多少双鞋,身体十个控制部位尺寸数据、癖好等等,通过这些问卷数据和我们分析得到的数据,我们逐步制定了空间气质类型、平面功能规划、色彩搭配、材料与工艺使用、机电末端点位、自然光与人工照明、储物、人体工学、智能系统等深化设计方案。最终,我们以性价比极高的预算完成了此项目的改造。
△ 改造前平面
【改造后】
门厅
在原始结构的基础上,我们增加门厅,将厨房与卫生间分隔开来,解决了之前污洁区界限暧昧的问题。
客厅
时尚的背光书架,满足客户对书架的诉求,大面积的浅色,使得空间更为敞亮。
业主说亲朋偶尔会来,有时可能留宿,需有一张简易的能收起来的客床,黑色的挂壁床可解决业主对于可收纳这一问题,且不占用地面空间。为了进一步利用,将壁板设计为磁性黑板墙,可供涂鸦贴照片等。朋友来访时,还能放下来与沙发形成转角沙发的围合功效。空调出风设备设计在厨房顶棚上,最大化保证客厅空高。
卧室双移门设计,既能保证睡觉时卧室的私密,又能开放卧室让空间更开阔。双移门不仅为卧室门,同时兼具电视墙后储物架的移门功能,移门吊轨原方案为隐形设计,但是因为其上有梁,为了不降低吊顶形成压迫感,虽然只是几公分,我们也坚持人性化第一位。茶几设计了两个大抽屉,进一步增加储物功能。
厨房
厨房利用鞋柜的一半做了立柜,增加储物的同时遮挡了卫生间的门,卫生间门为隐形门设计,进一步弱化厨卫相邻的冲突感。吧台的设计解决用餐,同时也为空间增加了更多的生活情景模式。
卧室
悬空床设计,增加空间的通透和灵动。
通过卧室门的移位,解决原方案衣柜无法做大的问题,衣柜顶部人手难以够到,做成空调出风口,一丁点也不浪费。
卧室/客厅
卧室与客厅共享空间,视野开阔,动线形成回路,灵活畅通,空间充满意趣。客厅书架与落地灯之间为结构柱,柱子与外墙之间形成一间隙,同样做成储物柜。书架顶端、挂壁床顶部人手难以够到处,供中央空调管线通过,依然不浪费一丁点空间。
卫生间
浴缸作为业主重要的诉求之一,怎能不满足?淋浴房业主说空间如果实在有限可以不要,我们怎么忍心?就算不淋浴,干燥的北京,作为晾衣房又何乐而不为呢?
原始结构中,马桶当道,虽然移位难度极大,但是再难,也会想尽一切办法去解决,人造石和防水门板做成的卫生间储物柜,再多的瓶瓶罐罐也不用担心没地方放,原始结构中开门就压头的热水器,已被隐藏到了吊柜之中,不用担心看到难看的管线。
书架
为了能够对书架透光板后的灯具检修,透光板并不是一整块,每一块都是单独定制,可以单独取下来,工艺再难,也不能将就。
每一个改造作品图文所能呈现的都是冰山一角,还有很多设计和施工上遇到的难题和思考难以表达。
△ 改造后平面图
把握分寸,不失毫厘,是小空间设计该有的尺度;有容乃大,无欲则广,是小空间设计该有的气度。
——蔡浒/无名创想联盟
效果图
△客厅
△卧室
△卧室与客餐厅贯通
项目信息
项目名称:Diao Lei's HOME
项目地点:北京朝阳区
室内面积:46m²
设计单位:无名创想联盟
主案设计:蔡浒
参与设计:王俊、彭轲、汪诗伦
施工单位:太原鼎丰家居

BIM建筑网
































