本案为座落滨海的三层楼独栋建筑,作为度假使用要能让他与三只爱猫一同放松玩乐。为了打造纯粹的粉红空间,我们以粉红色矿物漆作为壁面及天花基底,并挑选偏向自然色调的各种不同粉红材质,去构成混合的风格。
一楼空间属公共区域,作为日常起居及招待朋友使用,为了展示屋主的收藏品,利用玫瑰金不锈钢设计活动层架及其他柜体,在较为粗旷的壁面上能对比出精致质感。客厅与餐听虽有明显分区,但动线与座位的方向能增加使用者在这两区互动的可能性。而料理区上方的天花穹顶,以附机能性的夸张造型和图样去衬托空间的玩味,并将必要的设备及管线隐藏其中。
二楼属私密的空间,有主卧、卫浴和专属的猫房。我们以猫房为中心,让其他空间都能与他有直接或间皆的连结,猫咪房的空间设计尺度围绕着猫与人,透过细节能发现空间家具/家具空间之间的概念转换,比方适合猫走的梯台、结合屋主的写字桌。在这地方主人能做自己喜欢的事,边跟猫咪玩耍,又或睡前能待在主卧观察猫咪在隔壁的举动,另外主卫浴的玻璃能遥控调整透光率,以达到隐私的考量。
风格相异于一、二楼层,多功能的三楼空间是唯一有与户外相连的地方,走到天台能够看见阳光、天空、整齐转动的风力发电机。除了局部的粉红与几何元素之外,我们采用较为宁静简单的设计手法,保留各类材料的原始质感,例如铁件、水泥、木质,以呈现这区特殊的过渡室内外地带。
局部细节
项目图纸
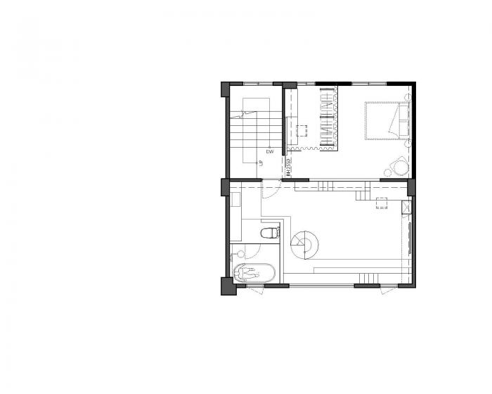
▲ 一层平面图
▲ 二层平面图
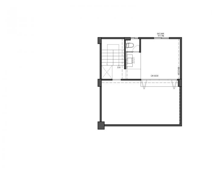
▲ 三层平面图
项目信息
项目类型:别墅室内
室内设计:均汉设计
面积:144.0m²
项目年份:2019
摄影师:Hey! Cheese
主创建筑师:刘冠汉
委托方:叶女士
微信公众号:xuebim
关注建筑行业BIM发展、研究建筑新技术,汇集建筑前沿信息!
← 微信扫一扫,关注我们+

BIM建筑网


























