“给粤港澳大湾区再造一个地标,是一个梦想的寄托,不仅给城市带来记忆,更传递着丰乐核心价值观:求真求诚求善,走正道!丰盛101点燃一个起点,未来更可期!”
—— 李利玲(丰盛101项目甲方负责人,丰乐集团副总裁)
效果图 @ GWP Architects
效果图 @ GWP Architects
-01-
丰盛101
区位分析图 @ GWP Architects
丰盛101项目位于广州增城荔新大道旁,其北侧远眺南香山,南侧遥望广州珠江新城,坐拥粤港澳大湾区和广深创新走廊核心区位优势。该项目与周边交通体系相结合,助力于大湾区一小时生活圈的建设。丰乐集团作为本项目的开发主体,响应大湾区建设需求,秉承着“宜商、宜创、宜居”的理念,致力于打造出一座融合集团总部办公,星级酒店,时尚商业,与花园式居住环境的综合体,为大湾区人才构建一种自由、舒适,优雅的空间载体。
区位分析图 @ GWP Architects
该项目总建筑面积约15万平方米,GWP负责二期200米高的综合体设计,涵盖了酒店、办公、公寓、商业等多种业态。主创建筑师在对话丰乐集团高层时了解到该企业从能源产业的创新突破发展到如今开拓地产和投资等多元化的布局,就像一艘正在扬帆起航的大船,驶向大湾区快速发展建设的历史契机。
-02-
用凝固的建筑展现动态的趋势
“建筑应充满想象力,生命力,和创造力!丰盛101项目从结构体块处理引入延伸至扬帆起航的概念将建筑形态,空间体验,和通风采光等因素协调平衡创造了丰富独特的建筑美感,希望能为当地人们带来空间感知的愉悦和精神的振奋,以及对生活、工作场所的归属感。”
—— 张国威 John Zhang(丰盛101项目主持建筑师,GWP董事合伙人)
概念手稿 @ GWP Architects
GWP提倡“建筑是一种诗意的栖居,以恰到好处的平衡之美营造独特的建筑形象和空间氛围”。设计团队希望在这个地标高层综合体的设计中本着以人为本的出发点,注重采光,通风,与自然生态景观相融合,引入多层次交互开放空间,在建筑形式与结构美学相得益彰的同时,赋予项目丰富的个性和独特的魅力。
概念生成分析图 @ GWP Architects
主创建筑师以扬帆起航的画面为概念灵感,希望用凝固的建筑去描述这种动态的趋势,以更亲近的尺度拉近市民与社区、自然的距离,使之成为融入城市的场所。形态的生成以建筑核心筒为轴心,向南北分成两个体块,东西错开一个柱跨,外立面以“帆”之理念塑造,顺势而下,轻盈落于裙楼之上,形成雨棚空间,巧妙地将建筑的裙楼和塔楼融为整体,以自然有机的形态点缀着城市的天际线。登高远望,崭新的城市面貌与沉淀的自然人文环境将尽收眼底,成为广州乃至粤港澳大湾区一道亮丽的风景。
效果图 @ GWP Architects
效果图 @ GWP Architects
-03-
建筑形态的力学美感
“好的建筑是一个有机的平衡体,优异的设计并不意味着昂贵复杂的设计。丰盛101这个项目不仅创造了充满生命力的建筑造型,同时巧妙的化解了项目最大的结构难题,是一举多得的优秀解决方案.”
—— 廖耘 Leo Liao(丰盛101项目结构负责人,RBS结构总工程师)
雨棚效果图 @ GWP Architect
建筑结构的设计充分利用了建筑形态的力学美感,通过两个互为支撑的建筑体块与核心筒嵌入咬合的关系,与精确地控制建筑与核心筒的高宽比,强化了建筑结构整体的稳定性和抗风能力,同时营造了南北通透的使用空间。外立面和屋顶的曲面处理不仅有效的减少了高层的风压荷载,而且让整栋建筑较传统的塔楼结构方式节省了大量造价。
风荷载示意图 @ GWP Architects
屋顶造型示意图 @ GWP Architects
塔楼扭动结构示意图 @ GWP Architects & RBS
屋顶鸟瞰效果图 @ GWP Architects
-04-
立面曲线的建筑语言
“这个项目因造型的独特性对施工图和设备的配合有一定挑战,需要各专业高频率的沟通讨论解决方案,主创统筹各专业每次会议对细节的严谨把控和沟通是项目得以推进落地的关键,我们期待这座地标的建成。”
—— 钟开健(丰盛101项目施工图负责人,莫伯治建筑设计事务所院长)
天幕结构示意图 @ GWP Architects
天幕空间效果图 @ GWP Architects
立面处理的另一巧妙之处在综合体的塔楼和裙楼之间自然优美的过渡,在空中花园平台与裙楼衔接的地方塔楼外立面顺延而下,形成一个曲面的天幕造型,天幕之下形成了开阔的多功能空间,既可举办婚庆礼仪、亦可作为餐饮、展陈空间、创造了一个理想的公共活动场所。
-05-
会呼吸的生命大楼
“GWP设计成果正是把丰乐想要表达的意思融入到建筑外形上,时尚现代,彰显建筑的艺术之美同时又能体现对人性的尊重,一座会呼吸的生命大楼将会成为城市的封面!”
—— 张大林 (丰盛101项目投资决策人,丰乐集团董事长)
充满生命动感的扭动为建筑带来独特的韵律之美。在设计团队的精心推敲之下,建筑立面在不同角度下都呈现出与周边环境相融合的姿态。项目东侧外立面与紧邻的丰乐能源大厦的立面曲线形成协调统一的建筑语言,丰富了人们在公园的休闲散步的观赏体验。
公园视角效果图 @ GWP Architects
利用错开的建筑体块,主创团队在南北两侧分别设置了空中景观平台,将周边的生态绿地体验延伸至建筑垂直立面,顺势至屋顶花园。郁郁葱葱的绿植形成两道优美的空中绿廊,这里将成为垂直分布的生态空间提升各楼层功能业态的景观体验。
景观平台分析图 @ GWP Architects
鸟瞰效果图 @ GWP Architects
退台效果图 @ GWP Architects
在景观布局上,团队延续了建筑主体的设计概念,以微风拂过的海面呼应建筑扬帆的形态,前广场水景设计以风动片形态打造一种风涌浪起,白帆点点的海韵风情。在铺装、绿化与流线设计上与旁边丰乐能源大厦相呼应。将绿色、生态充分融入商业广场空间中,无缝衔接周边的城市绿地,使之形成整体统一的立体景观环境,为繁忙的城市生活注入大自然的舒适宜人。
景观总平面图 @ GWP Architects
前广场景观效果图 @ GWP Architects
效果图 @ GWP Architects
效果图 @ GWP Architects
现场照片
场地现状航拍图 @ GWP Architects
场地现状航拍图 @ GWP Architects
场地现状航拍图 @ GWP Architects
场地现状航拍图 @ GWP Architects
场地现状航拍图 @ GWP Architects
技术图纸
业态功能分析图 @ GWP Architects
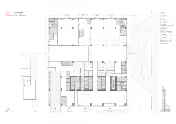
首层平面图 @ GWP Architects
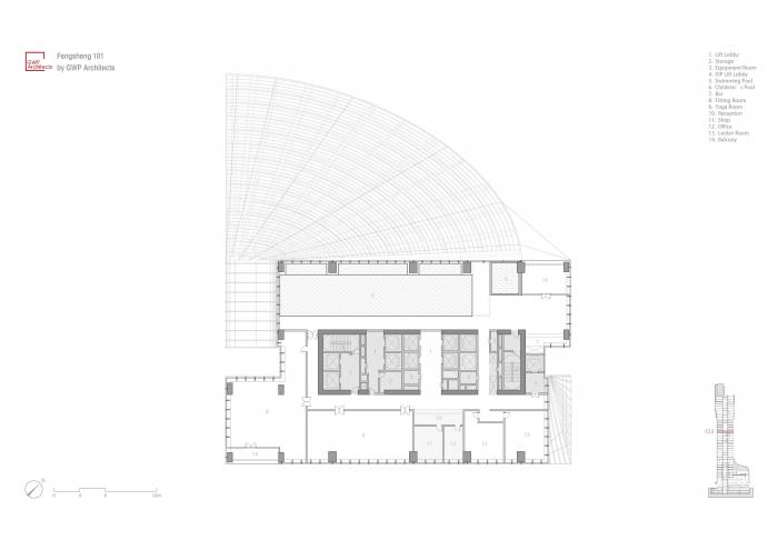
10F 平面图 @ GWP Architects
23F 平面图 @ GWP Architects
30F 平面图 @ GWP Architects
剖面图 @ GWP Architects
立面图 @ GWP Architects
立面图 @ GWP Architects
立面图 @ GWP Architects
立面图 @ GWP Architects
项目信息
项目名称:广州丰盛101
项目地址:中国,广东,广州增城
项目年份:2019年设计,2020年初动工;
投资主体:广州丰盛能源科技发展有限公司
建筑面积:81000㎡
主持建筑师:张国威(John Zhang)
设计团队:John Zhang,Tina Wang,Jackle Luo,Ben Huang,Leo Liao,Vivian Cai,Lei Chang,Ronghua Li, Huven Hua, Jian He, Vensen Zhu, Zerun Mo, Wei Gu, Tao Wei, Shanshan Xu, Yanlin Zhang, Zhenyong Pang, Zongwei Hu, Min Xiang, Peigen Huang, Hanming Tong, Yonghua Xu, Jinglong Yan, Lei Huang, Yuan Liao, Jinbao Zhuo, Xi Li, Wenhui Liang, Dong Xie, Weihua Wu, Yunlian Zhong, Zilan Lin.
建筑设计:GWP Architects, 源尚设计咨询(香港)集团有限公司(GWP)
结构设计:广州容柏生结构设计事务所(RBS)
施工图设计:莫伯治建筑设计事务所 (MBZ)
景观设计:GWP Landscape
设备顾问:艾奕康咨询有限公司(AECOM)
总承建商:中国建筑第二工程局有限公司
酒店管理:洲际假日酒店团队
建筑材料:金属 钢 混凝土 玻璃
网站:www.gwp-architects.com
联系:[email protected]

BIM建筑网









































