▲ 园区南侧远景
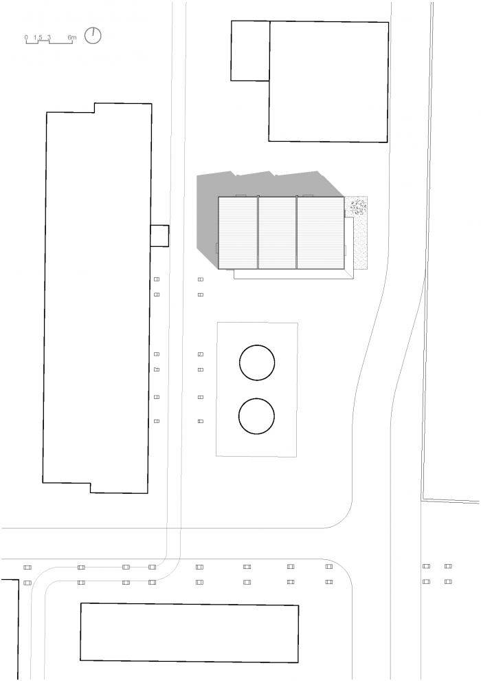
项目位置在北京东五环外,属城市边缘地带。所在文创园区的前身为某化工厂。厂区肌理稀疏,建筑之间的距离较大,构筑物和建筑体量多为简单的几何形体。改造对象位于园区东南侧,属于园区体量较小的建筑,与南侧两个白色的工业罐体围合出一个小型广场。
▲ 场地平面图
▲ 鸟瞰
▲ 园区东南视角
▲ 与罐体形成小型广场
建筑现状为单层建筑,占地160平米,檐口高度为5.8米。高耸的空间尺度,及破损屋面洒下的光感,强烈地吸引着我们,激发了对未来空间的想象;同时我们了解到,园区的定位是将生产性的厂区转换为社区性的文创园,两者合力促使我们将其承租下来作为工作室使用。希望通过设计使孤立的单体对环境氛围能做出积极的回应,使建筑内部与外部社区和外界自然产生多样的空间联系。
▲ 原建筑东北视角
▲ 原建筑东南视角
▲ 原建筑室内由西向东
因是租用的空间,造价控制和简便施工是设计之初的重要考量,分空间操作和材料选择及相关构造设计两点来说明,我们是如何在有限的预算下审慎地打磨设计来达成高品质的工作空间。
设计以最小的动作和最少的元素增加,来调整空间以及人的行为感知。锯齿形屋顶延伸向天空,顶部天窗让阳光洒入室内,光影变幻;建筑四周面对的环境氛围各不相同,四面外墙不同的开口,及雨篷下灰空间和花园带来的空间层次给人停留、交往创造可能性,将原生产性用房转变成社区性建筑。
▲ 园区南侧远景
▲ 东面小花园
▲ 东立面
▲ 天窗
▲ 雨棚
▲ 阳光洒在北侧墙面上
室内一面通高的主隔墙将内部空间做南北划分,北侧高耸的大空间,非日常的尺度有利于人的状态转换,放大的人均空间体量给思维以自由天地;南侧划分为两层,近人的尺度空间靠近小广场一侧,主入口也放在这一侧,表达了期盼交流的基本立场。
▲ 主空间
▲ 室内夜景
▲ 办公空间夜景
▲ 二层会客空间夜景
休息区设在入口处,设置了横向大窗和窗台桌,供临床工作或休息;窗外有出挑雨蓬形成檐下空间;一个窗口,内外两侧不同高度的水平板设置,给对话创造了情境。建筑西侧是园区过道,做了横向展窗,行人路过可看到前景的展品,及空间深处的工作场景。窗高度的设置,需要走近稍微低下头,伴随着脚步就会慢下来,为“看”创造情境。
外墙与屋顶整体呈白灰色,与两个白色罐子在一起,像是由几何体形成的一组“素描静物”,随着日升日落,形成丰富的物体与光影的组合图景。
▲ 茶歇区
▲ 二层办公空间
▲ 西面长展窗
▲ 东南面夜景
▲ 东立面夜景
材料及与之相关的建造方式、人员组织、设备工具、工艺技能等,成为我们挖掘设计潜能的出发点。材料选用普遍的低造价工业建材,方钢、瓦楞夹芯板、聚苯颗粒夹芯板、水泥纤维板等,这些材料在城市边缘地带被大量使用。
▲ 西侧通道视角
▲ 西立面
建筑新增加的元素,皆是轻钢骨架加围护板材的构造系统。简明的构造设计,使得小型的施工队伍,使用简单的设备工具,以手工操作为主便可完成建造工作。
项目图纸
▲ 总平面图
▲ 一层平面图
▲ 二层平面图
▲ 剖面图
▲ 剖面图
▲ 剖透视图
▲ 爆炸轴测图
项目信息
建筑设计:合木建筑工作室 | Atelier Heimat
项目位置:北京市朝阳区豆各庄1号幸福七和文创园
设计团队:刘文娟、张东光、马迪
建筑面积:210平方米
建成时间:2019年9月
摄影:合木建筑工作室| Atelier Heimat
联系方式:[email protected]
总体施工:北京大乐建筑装饰工程有限公司
屋面施工:北京百信诚建筑工程有限公司

BIM建筑网


































