坐落于四川大学内,专研南亚泛喜马拉雅带国家文化及宗教,并展览其艺术品的四川大学喜马拉雅文化及宗教研究中心,以传统中国院落为要素,通过现代建筑空间与自然景观的表意系统,将佛教的精神与物质环境完美融合。
▲总平面图
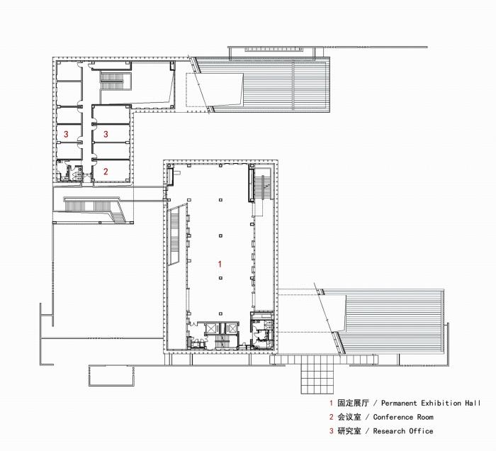
四川大学喜马拉雅文化及宗教研究中心位于四川大学江安校区,包括博物馆、研究中心及综合楼三部分。目前已实施完成的博物馆和研究中心,是四川大学专门研究南亚泛喜马拉雅带国家的文化及宗教,并对其艺术品进行展示的场所。
解题
有趣的题材、特别的区位和不高的容积率为项目的设计发挥创造了较好的条件,同时也带来了不少挑战。在设计之初,如何“契合校园环境、反映项目主题、营造丰富空间、统筹展游观感”这几个问题就被提出,而通过前期的分析和多角度的比较论证,建筑师找到了适宜的方法——以“院落”为要素对项目进行解读。
造院
设计将博物馆和研究中心分别作为单独体量进行组合,以两个“L”形体量结合各自延伸出的围墙,围合出东西两个核心庭院以及建筑中段两个侧院共四个院落。各个庭院彼此独立却又相互串联,与建筑内部相互渗透,在具体设计上被赋予不同的空间特点和风景主题,意图以有限面积,造无限空间。
访客经过建筑与片墙围合形成的东院进入博物馆一层,其整体塑造更偏向于现代几何的造园手法,西院以自然的“柔”对比呼应了东院现代的“刚”. 两个侧院分别为贵宾接待书房和多功能报告厅。
塑形
本项目建筑整体造型采用四川地区传统的坡屋顶符号,通过剪切、变形等手法对其进行现代诠释,使得前后错落、长短不一的坡屋面层层叠叠、高低起伏,形成富有张力的天际轮廓。在中式建筑居多的四川大学江安校区,绵延起伏的坡屋顶既与周边建筑环境实现了风貌上的呼应,又以其独特的抽象形态对四川民居传统坡屋顶文化符号进行隐喻。
取意
建筑师在喜马拉雅博物馆与研究中心材料类型、色彩和质感的选择上,延续了四川传统民居用材质朴的特点,建筑立面处理针对空间朝向的不同特性,被概括为两种模式——博物馆主体形态庄严稳重,立面设计更倾向于古城民居沿街立面虚实相生的构成手法;而面向景观庭院、对各层采光通风有更高要求的研究中心,则借鉴了古城民居落地花格木墙的通透性手法。
设展
建筑与庭院穿插的空间为设置充满趣味的观展游线创造了良机,游园即为观展亦是设计的主旨之一,整个游线、展示设计均考虑与景观充分结合。
访客经过建筑与片墙围合形成的水庭进入博物馆一层,博物馆首层的主体功能为临时展区及多媒体展厅,二层及三层为不同主题的固定展厅,通高明亮的边庭使其形成整体,亦串联组织上下楼梯交通。访客参观完首层临时展区后通过西侧“L”形楼梯上到二层固定展厅,并继而通过东北角楼梯上到三层参观。当访客来到三层精品展区时,转经筒展廊主导的公共空间氛围骤变,之前参观过程中伴随的自然融入、轻松明快的感觉,瞬间被一种黑暗神秘的感官体验所取代,这种氛围上的反差营造出整个观展序列的高潮。
访客在博物馆内游览结束回到首层门厅后,可经由室外游园流线离开博物馆。连接博物馆与研究中心的天桥,不但实现了喜马拉雅研究中心工作人员与展厅之间的便捷联系,亦为人们提供了休闲及俯瞰整个庭院的场所。
项目图纸
▲ 一层平面图
▲二层平面图
▲立面图
▲剖面图
项目信息
项目类型:文化中心
项目地点:成都,中国
设计方:中国建筑西南设计研究院,郑勇工作室
面积:4100.0m²
项目年份:2016
摄影师:存在建筑
主创建筑师:郑勇
设计团队:贾伟、肖迪佳、王立维、张慧东、侯余波、侯剑、董彪、陈艳妍、张彦、刘运娜、刘赣英、杨珂、周渝、刘汉

BIM建筑网




















