在2017年,我们应村书记的邀请对四川彭州小石村进行了一系列的建筑设计与整体规划。如同其他龙门山区震后重建的村落一样,小石村面临着身份重塑的困境。我们看到的是面貌相似的居民点、简陋的沿街砖混建筑、以及空心化的农村社区。
▲ 小石村平面规划总图
四川的偏阴气候,使大多数人喜爱在开敞的室外活动;全年的降水量很大,人们又习惯性地需要遮蔽。当地人和公共环境这种有韧性的相处方式,形成了传统的坡屋顶和大量开敞檐廊的建筑形式,也形成了“共同生活”的场所基础。而现代的快速建筑代替了传统空间形式的同时,也破坏了藉由传统空间而形成的生活习惯,却并未回答:未来的社区应该具有怎样的空间品质?应该如何构建一种共同生活的空间协议?
由此引发了我们最本能的想法:营造一个“包容一切活动的瓦屋顶”,籍此去连接诗性的传统与互联的未来社区。既营造了“同在屋檐下”的一种身份认同,又让人们走出来、让行为发生、从空间层面进行软性的公共治理,从而逐渐孵化出未来的乡村社区模型。
小石村文化大院项目是我们的第一个建筑实验。位于小石村的中心,文化大院包含了日间照料中心、乡村卫生站、乡村夜校、健身房、忠孝文化展厅等多重公共功能,正是一个可以塑造理想的公共空间模式的开端。
文化大院的设计用一个占满用地范围的四坡瓦屋顶来统领结构、材料、细节和功能的发展。我们在屋顶的四坡分别打开四处天井,和一层分居四处的辅助空间相互呼应,为屋檐下的入口营造了看似无意识但十分流畅的进入方式;修茂的竹子从天井中生长出来,为一层核心空间和二层各房间提供景观和与自然的亲密度。
为实现屋檐处8米的悬挑,采用了混凝土梁挑钢梁的形式;屋面下再用处理过的细竹吊顶,提供一种温暖的尺度和微妙的光线折射。与此相对应的,建筑的外墙采用了黑石子水刷石的处理,地面采用素混凝土打磨,目的是将光线控制在一个明净柔和的状态,从而使屋顶的尺度与人的关系更加明确。墙面水磨石的尺度和分格,暗示了竹节的纹样,与屋顶和天井景观构成了自然、人工、抽象,三种竹意向的对话。
从2018年建筑建成起,我们对“同在屋檐下”的公共空间模式持续观察了一年,这里常会成为村民自发活动的中心区,也逐渐成为小石村对外的形象标志物。在我们对村社区未来的规划里,将以此为中心引发一系列互联互通的、结合生产与生活方式的屋顶空间,最终形成我们理想的乡村社区空间模型。
项目图纸
▲ 总平面图
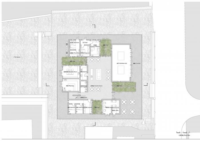
▲ 一层平面图
▲ 二层平面图
▲ 南、北立面图
▲ 东、西立面图
▲ 剖面图
▲ 大样图
项目信息
项目类型:社区中心
项目地址:成都,中国
建筑师:时地建筑工作室
面积:650.0m²
项目年份:2018
摄影师:何炼
主持建筑师:李烨
项目主管/项目建筑师:李烨
设计团队:张苗、王智、岳野、曾宪明、何茜(实习)
结构顾问:赵静涛
机电顾问:郭英明
策划顾问:黄和璐
规划顾问:吴焕
社区治理顾问:岳付飞
驻场建筑师:岳野、曾宪明、张寻、杨丽君
媒体顾问:俞怡人 (Yú多媒体设计工作室)
业主:彭州市小石社区村委会
项目造价:93万

BIM建筑网
























