项目运用现代语汇去和周边乡村住宅对话,借鉴传统经典建筑空间,萃取其原始自洽的空间构成关系;作为主要建筑材料的红砖凝聚了传统手艺和智慧,延续了村落群形态和整体性,顺遂心灵的趋使去回应乡村传统文化,也让建筑空间更加真实和纯粹。
▲ 总图航拍
空间体系
基于两进合院的骨架,不同体块通过分离拉开的手法植入夹巷空间,产生多条洄游路径和复合的空间界面。
▲ 整体鸟瞰
▲ 整体鸟瞰
中心合院—— 一座极限压缩的抽象园林
网师园的集虚斋是合院空间改进的灵感来源,北侧小楼后退形成两个小庭院,以镂空花砖和合院分隔,有效地解决卧室区的隐私问题,化解了给合院所带来的压迫感。
▲ 合院
▲ 一进和二进院
▲ 体块的拉开
以红砖砌筑的半亭更多了折廊意味,破除了庭院空间的方正,池水环绕洞口,可坐可倚,一如网师园“竹外一枝轩”,形成不同角度的框景。
▲ 半亭与院子
▲ 半亭
▲ 二进院透视
一进院与二进院相接处演化了抱印亭或拜亭——游廊向前扩大突出,廊回槛接,增加了院落景深的视觉层次。
▲ 沿街大门
▲ 一进院
▲ 二进院透视
▲ 从合院回望大门
▲ 一进院与二进院之间的门洞透视
合院地面景观采用曼陀罗图案作为概念,中央以红砖砌筑坛城作为主尊,四周一圈溪水作为外道,用鹅卵石镶边,内置部分石块以求自然溪流的野景景象。
▲ 主合院航拍
四周游廊地面向水溪一侧出挑薄板,隐藏视觉边界,溪水在合院四角放大成方池,睡莲静卧,给庭院增添一丝淡泊。
▲ 挑板与卵石镶边的水溪
▲ 方池与庭院
▲ 廊檐庇护
▲ 檐廊
中心合院将一丈天地进行极限压缩,去除假山水池,仅留下抽象的感知,模糊和颠覆园林的定义。
▲ 夕阳打向佛龛
外围园林——一座归园田居之所
客厅、餐厅以及姐姐卧室这组建筑,追求“曲阑斜转小池亭”的悠游意境,以曲折制造迷途,如同明清文人园林里截取出来的一个片段,片段意味着它只是此处的“田居”一隅,淳朴的园田野趣才是氛围的重点,耕种间,悠然见远山。
▲ 园田
▲ 曲折制造迷途
▲ 曲折制造迷途
▲ 合院与远山
▲ 餐厅的虚实对比
▲ 从餐厅看向园田
▲ 餐厅外的复合界面
▲ 餐厅外的复合界面
▲ “梧竹幽居亭“界面关系的反转
▲ 瓦波浪
▲ 从客厅长窗平望远山
▲ 父母书房外小院
▲ 二楼书房阳台平望远山
希望“赵宅“能够在观念和思路上做一定的引导和示范,纠正自发性乡建过度城市化甚至庸俗化的趋向。
▲ 烟囱细节
项目图纸
▲ 总平面图
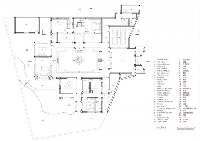
▲ 一层平面图
▲ 二层平面图
▲ 立面图
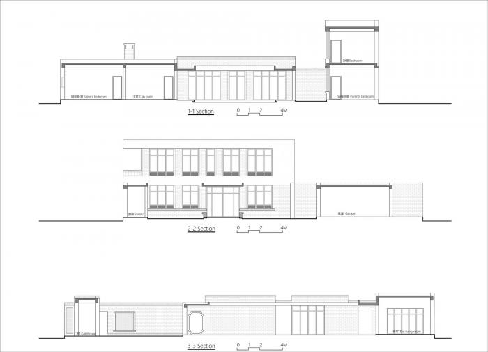
▲ 剖面图
项目信息
项目类型:独立住宅
项目地址:曲靖,中国
建筑设计:青岛川拓建筑设计工作室
面积:395.0m²
项目年份:2018
主创建筑师:青岛川拓建筑设计工作室,王凯
工程:高灿,唐文华(建筑),李恒通(结构),郑祖林(水专业),苏振仪等业主朋友(电专业)
景观设计:青岛川拓建筑设计工作室,王凯
委托方:赵先生(私人)
摄影师:昆明苔原摄影

BIM建筑网







































