所属分类:BIM模型
文件大小:12.05MB
文件格式:.rvt
模型下载
本资料为BIM模型-revit模型-教学楼模型
模型截图
BIM模型-revit模型-教学楼模型
BIM模型-revit模型-教学楼模型
教学楼一层结构平面图
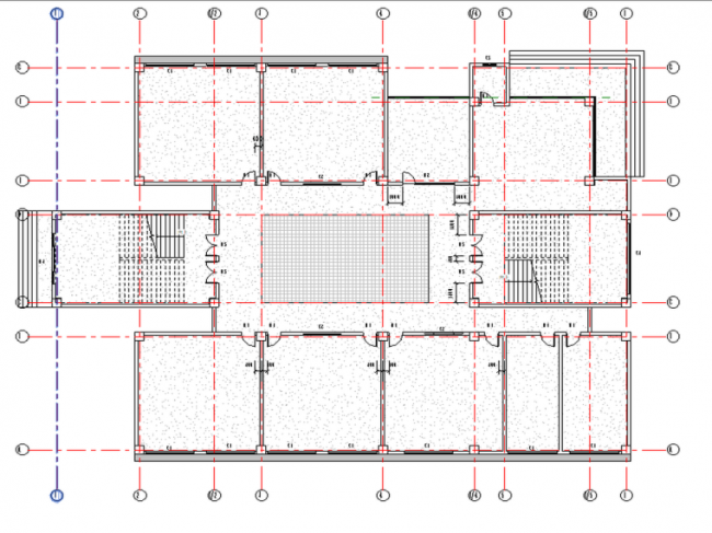
教学楼一层楼层平面图
教学楼北立面图
教学楼东立面图
BIM模型-revit模型-教学楼模型

所属分类:BIM模型
文件大小:12.05MB
文件格式:.rvt
本资料为BIM模型-revit模型-教学楼模型
BIM模型-revit模型-教学楼模型
BIM模型-revit模型-教学楼模型
教学楼一层结构平面图
教学楼一层楼层平面图
教学楼北立面图
教学楼东立面图
BIM模型-revit模型-教学楼模型