项目位于重庆渝北区悦清大道与欣悦路交叉口。该社区中心首先为销售中心临时使用。
▲ 总平面图
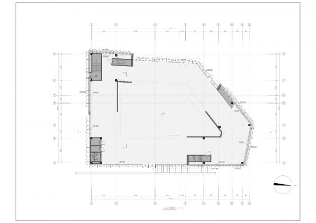
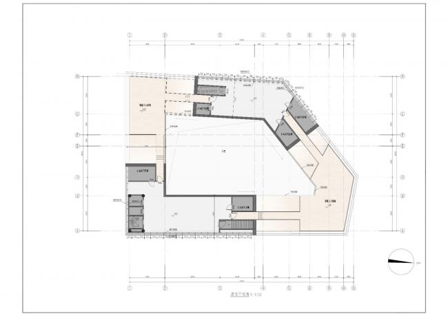
为兼顾前期展示和后期活动空间的需求,我们利用大跨和悬挑的桁架结构,营造出1000多平米的无柱空间,提供服务于周边社区居民的公共城市客厅。流动的结构形体回应了楼梯等交通空间的形式逻辑,并形成了丰富的屋顶平台。
▲ 轴测分析
利用结构表达空间的独特内涵,是对密斯“通用空间”“流动空间”概念的延伸。环绕四周的金属拉伸网通过折角遮挡了炫光为室内空间提供私密氛围,同时又不遮挡平行光线,使室内仍保持通透。结构在拉伸网后影影绰绰,营造出内与外虚实相映的关系。
▲ 一层平面图
▲ 二层平面图
项目信息
主持建筑师:南旭
设计团队:唐慧莲、谭钟瀚、方晓
委托方:香港置地
业主管理:曹子谦
结构设计:何凯(中机中联工程有限公司)
幕墙设计:龙丹(中机中联工程有限公司)
施工图设计:李涵(中机中联工程有限公司)
摄影:田方方
地址:重庆市
项目年份:2019年
建筑面积:2700平方米
材料:钢,铝板, 铝网,玻璃幕墙
微信公众号:xuebim
关注建筑行业BIM发展、研究建筑新技术,汇集建筑前沿信息!
← 微信扫一扫,关注我们+

BIM建筑网















