罗维尼公园大酒店是眺望亚得里亚海美景的观景点。无论你置身酒店何处,你都会产生一种处在公园俯瞰着罗维尼,圣尤菲米亚——圣凯瑟琳的岛屿,以及美丽的海上落日的感觉。酒店坐落于海岸边,靠近游艇停靠区和公园步道,连接市区与蒙特穆里尼的旅游景点。
为了融入现有的森林景观,突出的楼层抵消并顺应了倾斜的场地,形成了大露台、地中海式花园、游泳池和日光浴甲板。带有露台的小酒馆和零点菜单餐馆位于大厅接待区,通过一部中央楼梯与主餐厅相连。
酒店景观的重要意义被赋予给场地上生长了半个多世纪的五棵松树。会议厅通过酒店采用的欧洲最大的玻璃幕墙俯瞰着罗维尼半岛。疗养区包括水疗区、日光浴区和三个游泳池,扩展至两层楼,俯瞰着周围的丛林和城镇。主游泳池被部分置于一座玻璃亭内,玻璃亭在夏季开放,使室内和公园、大海交织在一起。
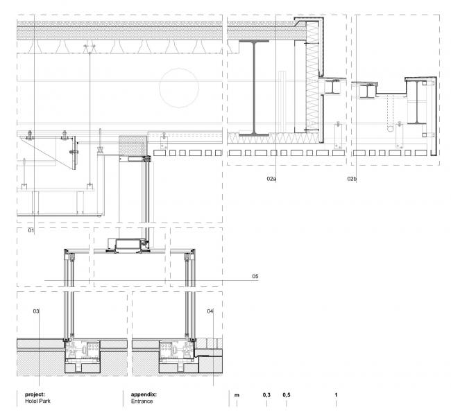
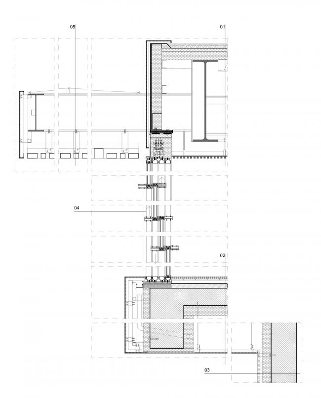
▲ 横向剖面
意大利建筑设计师Piero Lissoni负责室内设计。公共区域以大量的细节、多种风格和特殊制作的家具为特征,尽管它们相互之间有差异性,但共同构成了一个独特的故事。
尤其注意造型。空间里弥漫着泥土的氛围和色彩,与酒店周围蓝色的天空和大海形成对比。
公园步道空间在功能和形式上不同于其他的空间,那是一个拥有各种便利设施的广场,是用于社交聚会的新空间。
水面营造了一种轻松的氛围,精心选择的铺砖和绿化构成了特定的背景,使整个区域迷人而可到达。
项目图纸
▲ 总平面图
▲ 入口层平面图
▲ 二层平面图
▲ 三层平面图
▲ 四层平面图
▲ 五层平面图
▲ 六层平面图
▲ 剖面图A
▲ 剖面图B
▲ 总体透视图
▲ 剖透视图
▲ 入口广场透视图
▲ 双层高餐厅透视图
▲ 餐厅露台透视图
▲ 船坞餐馆透视
▲ 透视图
▲ 游泳池纵向剖透视
▲ 复式套房透视图
▲ 会议厅透视
▲ 绿色屋顶露台透视
▲ 船坞步道透视图
▲ 露台细部
▲ 入口细部
▲ 细部
项目信息
项目类型:酒店
项目地址:罗维尼,克罗地亚
建筑设计:3LHD
面积:46813.0m2
项目年份:2019
摄影师:Jure Živković
制造商:Lift Modus
设计团队:Saša Begović, Marko Dabrović, Tatjana Grozdanić Begović, Silvije Novak, Sanja Jasika Lovrić, Zorislav Petrić, Ivana Šajn, Leon Lazaneo, Krunoslav Szorsen, Maja Milojević, Daša Manojlović, Uršula Juvan, Dragana Šimić, Zrinka Vrkić, Mia Andrašević, Denis Hrvatin, Ines Vlahović Mazinjanin, Goran Mraović, Hrvoje Bilandžić, Vibor Granić, Duje Katić, Kristina Marković, Tomislav Soldo, Deša Ucović
室内设计:Lissoni Architettura
项目团队合作者:Jan Ružić, Branimir Turčić, Boris Goreta, Deša Jelavić, Marta Kolar, Valentina Krekić
室内设计团队:Giorgio Pappas Simone Caimi, Sara Cerboneschi, Pino Caliandro, Patrizia Manconi, Gaia Guarino
3D:Boris Goreta (2011.-2012.), Jan Ružić, Branimir Turčić (2015.)
造型设计:Elisa Ossino Studio
Uniforms:Fashion Designer Carlos Baker / Art direction Samuele Savio per Graph.x
参与艺术家:Art, Veronica Gaido, Roberta Patalani, Predrag Todorović, Marko Tadić
图解:Klara Rusan, Danijel Serdarev, Hana Tintor
音响艺术:Davor Sanvincenti
视觉标识、标牌和环境图形设计:Bruketa&Žinić&Grey
结构工程:Ivan Palijan (Palijan)
暖通空调、燃气安装工程、泳池系统、给排水:Vladimir Paun (Termotehnika)
电气工程及消防系统:Željko Omrčen (Agenor plus)
“trafostanica公园酒店”项目:Željko Omrčen (Agenor plus)
自动喷水灭火装置:Branimir Cindori (Apin sustavi)
给排水和消防栓网络-基础设施:Duško Mičetić (Građevno projektni zavod)
特殊项目-厨房:Zoran Divjak (Dekode)
Landscape design – building, zone around the building
景观设计-建筑,建筑周围区域:Nataša Tiška Vrsalović (Dionaea-vrtovi)
景观设计-更广区域:Katja Sošić (Studio KAPPO)
交通规划:Tomislav Kraljić (C5 Koncept)
建筑物理:Mateo Biluš (AKFZ studio)
噪声防护与声学设计:Mateo Biluš (AKFZ studio)
地理勘测:Sebina Stepančić Salić (Geoistra)
消防安全、工作项目安全:Milan Carević (Inspekting)
岩土工程研究:Milan Mihovilović (GEO-5 d.o.o.)
工程量清单:Lucija Ivas (FOREL projekt)
三维激光扫描:Zlatan Novak (VEKTRA)
总承包商:Kamgrad d.o.o., Radnik d.d., Interijeri Buden d.o.o., Stilles d.o.o.
既有建筑拆除:Eurco
场地勘查:Neven Martinec (PDM savjetovanje d.o.o.)

BIM建筑网























































