学校的设计和建设总是较特别的存在,公立学校不像是是财政,官僚和行政机构,学校希望借助建筑向学生和教师传达开放,清晰,稳定和智慧的氛围。一所好的学校建筑是一个让孩子们学习的绝佳机会,犹如一本好的教科书。
学校的外部设计理念
学校建筑为南北方向,修长的折线结构,教室外墙大多为东西朝向,行政和专科教室分别安排在朝北和朝南的区域。外立面的设计反映了内部空间的使用,所有可用的空间均由垂直或者水平分科的大型玻璃外墙分隔。走廊采用了完全透明的玻璃幕墙,所有的玻璃表面,除了朝北的立面以外全部配备了垂直的遮阳装置,在不透明的外立面覆盖了大型的铝板。屋顶绿化广泛,雨水管道均铺在立面前,使得排查的工作很容易进行。
室内设计理念
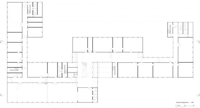
学校建筑通过中央入口区 – 大厅进入。通过大厅的五个楼梯间和一个开放式楼梯可以垂直进入建筑物。学校共有32个不同大小的教室。底楼设有一间可延展的大型多功能厅,相邻的厨房和食品柜台也可作为用餐室。专业的教室,行政房间以及工作和储藏室为学校要求的空间。大厅是学校的心脏,是大家共同聚会场所。所有楼层均位于建筑物中间,连接的方式非常清楚明了。另外五个楼梯间为垂直通道,同时可以帮助大家在需要的时候轻松逃离建筑物。这些楼梯间旁边是必要的辅助和技术室。
综上所述,多功能厅位于一楼大厅旁边的中央,是一个大型公共区域。客人可以直接从大厅前往连接的艺术和音乐室。行政管理则位于北部建筑的底层。
在较高楼层,教室可以直接通往大厅的北部和南部。超宽的走廊展示了空间的重要性和使用的方式,明亮和轻盈的氛围允许自由和友好的交流。色彩对比下的休闲区域更加的出挑,易于被找到,与同样彩色的楼梯间相映成趣。
北部和南部的建筑为图书馆,计算机科学的区域。这里较宽的走廊赋予了这些屋子附加的使用价值。
项目图纸
▲ 总平面图
▲首层平面图
▲二层平面图
▲三层平面图
▲南北立面图
▲东西立面图
▲剖面图
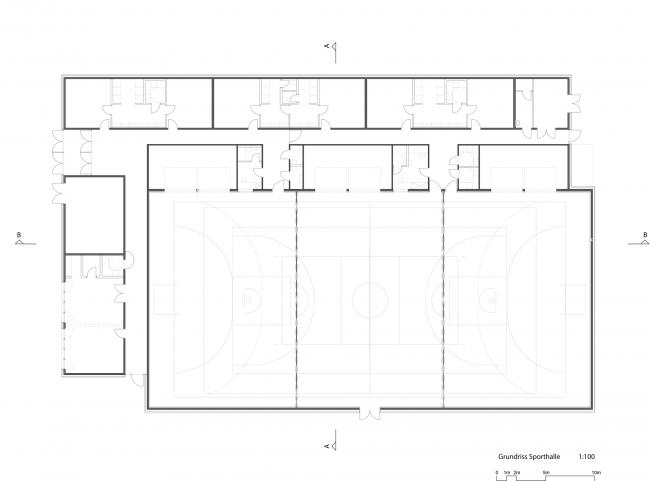
▲体育馆平面图
▲体育馆东北立面
▲体育馆西南立面
▲体育馆剖面图
▲施工方式
▲鸟瞰图
项目信息
设计事务所:NKBAK
地址:柏林,德国
类别:中小学校
主创建筑师:NKBAK
设计团队:Nicole Kerstin Berganski, Andreas Krawczyk, Simon Bielmeier, Shanjun Yu
建筑面积:9360.0 m2
项目年份:2019
摄影师:Thomas Mayer
客户:State of Berlin represented by Senate administration for Urban development and Housing
结构设计:Design Phase: Bollinger + Grohmann Ingenieure, Frankfurt am Main Execution: merz kley partner ZT GmbH, Dornbirn
工程师:Ecotec GmbH, Bremen
景观设计:Franz Reschke Landschaftsarchitektur, (BIM学习)Berlin
防火顾问:Wagner Zeitter Ingenieure, Wiesbaden
场地管理:pcb Architekten, Berlin, Martin Putzmann

BIM建筑网





























