▲深海咖啡馆©王一翔
项目位于云南省昆明市盘龙区张官营路滨江俊园片区。滨江俊园是曾经的张官营村及张官营旧货市场,是昆明二环内最大的城中村之一,现在经过城中村改造,已经成为一个以居住为主的大规划城市住宅区。周边不仅有几个大的城市综合体,也有几个中小学、办公商务区,拥有巨大的年轻消费人群,足够满足一个打造一个全新体验咖啡馆的消费水平。
▲入口门面©王一翔
项目位于公寓底层临街商业,之前是一家美容院,区位上来说并不是一个城市咖啡馆理想的位置,但业主有信心通过一个好的设计与网络营销的方式创造足够大的人流量。
▲一层吧台©王一翔
▲一层空间©王一翔
因为业主确定咖啡馆名字叫“深海”,所以设计师花了心思去思考到底“深海”是什么。不同于常规的思考和正常做设计时搜索参考图片的是,往往这样的设计都是带有蓝色的空间,但“深海”这个名称所带来的概念思考却是,为什么深海是蓝色的?当透过这层思考方式去搜索就会发现,海水之所以是蓝色,是因为天空是蓝色的(原理就不多说了),水体(空间)是透明的,所以深海的蓝色是光和材料本身所产生的而非通过“设计”创造的。带着这样的逻辑,整个空间的设计就很明确了,拆除原有的吊顶,用涂料做成蓝色的“天空”;下面的空间则使用带有反射性/透明性的材料——镜面、金属、亚克力、塑料等,通过这种暧昧的委婉的,而非简单粗暴的方式,让深海的蓝色充满整个空间。
▲二层空间©王一翔
▲二层空间©王一翔
▲二层空间©王一翔
▲二层空间©王一翔
在一层和二层的主要就餐区设计上,我们用蓝色的顶面定出空间的基本色调, 其余的空间则选择:不透明-镜面反射-金属材质反射-半透明材质-材质漫反射-开窗引光-透明家具共同营造出波光海面的效果。因此在空间效果的营造上,对这几个部分的材质选用和做法成为这个设计的核心技术要素。
▲卫生间©王一翔
不透明材质上,白墙使用了最常见的乳胶漆,地面则用了略带反射效果的白色环氧树脂。
反射面材质即金属拉丝铝板,用于材质交接处的封边、踢脚线、吧台等特殊属性构件。
半透明材质方面,设计之初在外窗玻璃上是准备使用玻璃贴膜、楼梯空间部分也准备使用半透明阳光板来突显一些空间的通透但却私密的效果。
镜面材质方面,大面积使用的玻璃镜面增加了空间的延伸感和开阔性,而镜面的安装则在通过多层板固定在墙面,并且镜面外边框则通过多层板开暗槽暗藏了LED灯带创造出镜面悬浮在空中的效果。设计中出现了普通的灰镜以及在楼梯空间部分为了强调反射效果而采用的蓝镜,楼梯空间的大面积镜面配合不同地方的光源、以及蓝色顶面不同层次的漫(BIM工作)反射创造出一种梦幻的效果。
▲楼梯间的蓝镜反射效果©王一翔
▲楼梯间©王一翔
▲楼梯间©王一翔
▲楼梯间©王一翔
除此之外,室内还使用了大量的透明家具,以亚克力、充气塑料、玻璃为主的家具使得室内部分统一地表达出了深海的波光闪烁和透明感。
▲透明家具,结合光线创造波光感和透明感©王一翔
▲室内摆饰增加光影效果和透明感©王一翔
▲室内摆饰增加光影效果和透明感©王一翔
▲墙边设置阅读架©王一翔
一个创新型咖啡馆并不受传统咖啡馆的定义所约束,即这个空间能够容纳不同的当代都市人群的休闲需求:就是这个咖啡馆除了传统意义上的功能定位,更是一个集餐饮、展览、观影、聚会、交流为一体的小型社交空间。在这里,很多想得到的和想不到的事情都可能发生,空间使用具有很大的灵活性和不确定性,所以在空间属性上,我们没有给出明确的定义,也希望通过这种创新空间的营造,提供一个当下都市年轻人的活力据点。
©王一翔
技术图纸
▲ 一层平面布置图
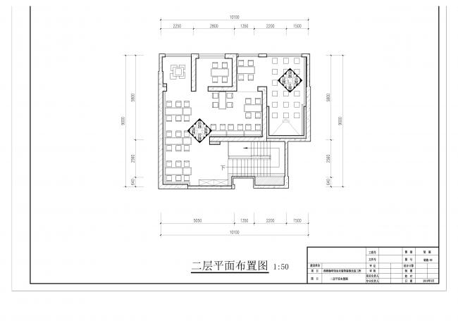
▲ 二层平面布置图
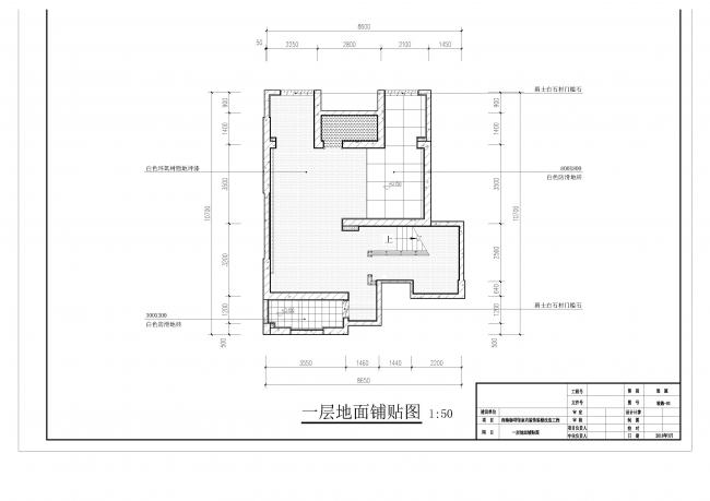
▲ 一层地面铺贴图
▲ 二层地面铺贴图
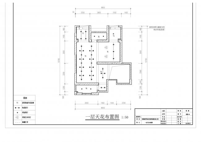
▲ 一层天花布置图
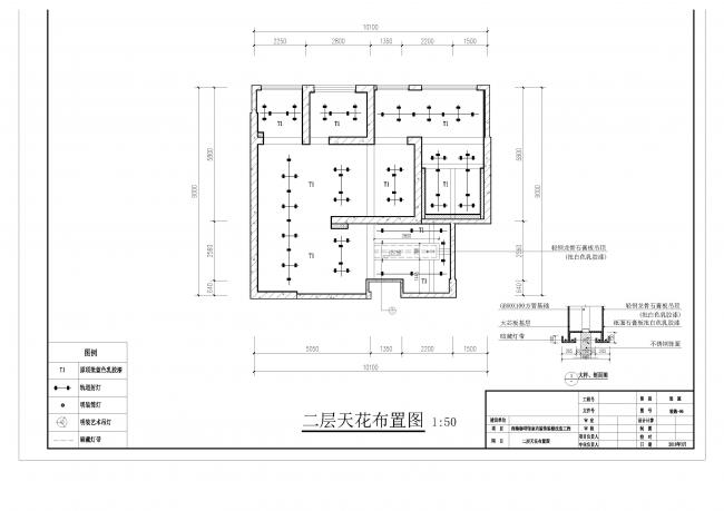
▲ 二层天花布置图
▲ 一层开关布置图
▲ 二层开关布置图
▲ 一层插座平面布置图
▲ 二层插座平面布置图
▲ 一楼立面图
▲ 一楼立面图
▲ 二楼立面图
▲ 二楼立面图
▲ 二楼立面图
▲ 楼梯间立面图
▲ 楼梯井玻璃造型立面图
▲ 楼梯间图纸
▲ 吧台图纸
项目信息
项目名称: 深海咖啡馆
建筑事务所: 平介设计(苏州平介建筑科技有限公司)
事务所网站: www.parallect-design.com
电邮联系方式: [email protected] parallect-design.com
主持设计师 杨楠
设计团队:陆云龙、吴怡、宋正伟、彭敏、高鉴
项目详细地址: 云南省昆明市盘龙区张官营路滨江(BIM教程)俊园25栋10号商铺
项目完成年份: 2018
建筑面积(平方米): 164
摄影师: 王一翔
其他参与者:云南福龙设计事务所有限公司

BIM建筑网








































